Extension Soeknad Enebolig

Riving, tilbygg og fasadeendring på enebolig i Krystallveien 37

📍 Krystallveien 37 , 3478 NÆRSNES

Nøkkelinfo

Sakstype
Tilbygg
Bygningstype
Enebolig
Bruksareal
217 m²
Boenheter
1
Kommune
Asker
Fylke
Akershus
Gnr / Bnr
243 / 398
Saksnummer
26/1143
Fase
Søknad

Om byggesaken

Eksisterende enebolig på Krystallveien 37 gjennomgår omfattende oppgradering med riving av deler av verandaer og takutstikk, samt tilbygg av terrasser og endringer i fasaden med ny kledning og vinduer. Bygget får etterisolering og fasadeendringer som gir et mer moderne uttrykk med brun Møre Royal kledning. Underetasjens to rom endres fra tilleggsdel til hoveddel med bruksendring til soverom, og det bygges en ikke-søknadspliktig hagestue. Terreng justeres for bedre drenering, og det etableres ny terrasse med trapp til terreng. Totalt areal etter tiltaket blir ca. 217 m² med en utnyttelsesgrad på 19,7%.

Produkter og materialer

Vinduer Utskifting av vinduer

Antall: 14

Vinduer skiftes i hele boligen, inkludert fasadeendringer som endrer boligens karakter

Nye vinduer for bedre isolasjon og estetikk

Garasjeport Kledning på garasje

🧱 Møre Royal brun trepanel

Kledning på eksisterende garasje skiftes til samme type som bolig

Oppgradering av garasjens fasade for helhetlig uttrykk

Bruksendring Rombruksendring i underetasje

Antall: 2

Bruksendring fra tilleggsdel til hoveddel for to rom i underetasjen til soverom

Endring av romfunksjon med tilpasning av rømningsvei

Terrasse Terrasse og trapp

Tilbygg av terrasser med trapp til terreng, tilpasset eksisterende terrengnivå

Nye terrasser og trapp for bedre uteareal og tilknytning til terreng

Tak Takutstikk og taktekking

Riving av deler av takutstikk og tak på veranda, samt tilbygg av tak over terrasser

Endring og utvidelse av takflater i forbindelse med tilbygg og riving

Tømrer Tømrerarbeider for tilbygg og riving

Riving av verandaer og takutstikk, bygging av terrasser og tilbygg, samt fasadeendringer

Tømrerarbeid knyttet til riving, tilbygg og fasadeendring

Dører Ytterdører og verandadører

Antall: 7

Nye dører i bolig, inkludert verandadører som endres og tilpasses terreng

Nye ytterdører og verandadører i forbindelse med fasadeendring og tilbygg

Isolasjon Etterisolering av yttervegger

Etterisolering av eksisterende bolig for bedre energiytelse

Isolasjon i yttervegger som del av fasadeendring

Grunnarbeid Terrengjustering og drenering

Fylling av terreng mot huset for bedre drenering, fall ut fra husvegg

Terrengarbeid for å sikre god drenering rundt huset

Fasade Kledning

🧱 Møre Royal brun trepanel

Brun Møre Royal kledning som gir et lunt og tradisjonelt uttrykk, skiftet på bolig og garasje

Ny utvendig kledning på bolig og garasje for fasadeendring og etterisolering

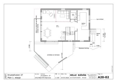
Plantegning

Enebolig 277.5 m²

Etasje 1 91.6 m²

Rom Areal Vinduer Dører
Stue 101 35.2 m² 3 2
Kjøkken 102 10.2 m² 1 1
Sov 1 103 11.9 m² 1 1
Sov 2 104 15.0 m² 1 1
Bad 105 6.3 m² 0 1
Gang 106 13.0 m² 0 2
Trapperom 107 0.0 m² 0 0

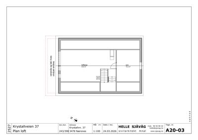
Etasje 2 80.6 m²

Rom Areal Vinduer Dører
Sov 1 201 7.6 m² 1 1
Vask 202 3.5 m² 0 1
Badstu 203 4.2 m² 0 1
WC 204 2.1 m² 0 1
Hobbyrom 205 12.0 m² 1 1
Hall 206 15.0 m² 0 2
Matbod 207 12.0 m² 1 1
Bod 208 14.2 m² 1 1

Etasje 0 105.3 m²

Rom Areal Vinduer Dører
sov 001 7.8 m² 0 1
vask 002 6.4 m² 0 1
bad 003 9.3 m² 0 1
sov 004 10.8 m² 0 1
hall 005 22.0 m² 0 4
sov 006 10.3 m² 0 1
gard. 007 15.4 m² 0 1
bod 008 4.6 m² 0 1
bod 009 5.1 m² 0 1

Fasader

Enebolig

Nordvest
Materiale
Tre
Taktype
Saltak
Vinduer
6
Dører
1
Balkonger
1
Synlige etasjer
2
Sydvest
Materiale
Tre
Taktype
Saltak
Vinduer
4
Dører
1
Balkonger
1
Synlige etasjer
2
Sydøst
Materiale
Tre
Taktype
Saltak
Vinduer
3
Dører
1
Synlige etasjer
2
Nordøst
Materiale
Tre
Taktype
Saltak
Vinduer
6
Dører
0
Synlige etasjer
2

Hendelser

10.04.2026 243/398 Krystallveien 37 - Søknad om tillatelse i ett trinn - Riving, tilbygg, bruksendring og fasadeendring