Extension UnderBehandling Enebolig

Tilbygg til enebolig på Kysnesvegen 612, Kysnesstrand

📍 Kysnesvegen 612 , 5626 KYSNESSTRAND

Nøkkelinfo

Sakstype
Tilbygg
Bygningstype
Enebolig
Bruksareal
159 m²
Boenheter
1
Kommune
Ullensvang
Fylke
Vestland
Gnr / Bnr
350 / 9
Saksnummer
2025/2252
Fase
Under behandling

Om byggesaken

Ny tilbygg på 67 m² BYA (56 m² oppvarmet BRA) til eksisterende enebolig på Kysnesvegen 612. Tilbygget er 16 meter langt og 4,2 meter bredt med flatt og pulttak, og inneholder bislag, inngang, bod, romslig kjøkken med spiseplass og overdekket uteplass. Tilbygget er plassert på baksiden av huset, med lav gesimshøyde mot nordvest og høyere mot sør for å gi utsikt mot fjell. Eksisterende bislag på 17 m² rives. Totalt areal etter tiltaket blir 131 m² BYA og 159 m² BRA. Fasader og materialbruk er tilpasset eksisterende trehus med saltak og grønn farge. Utomhus planlegges omlegging av intern vei og parkeringsplass ved eksisterende garasje og skykkje. Tiltaket er tilpasset terrenget og ivaretar visuelle kvaliteter og naturfarehensyn. Det er gitt dispensasjon fra LNF-arealformål i reguleringsplanen.

Produkter og materialer

Dører Ytterdører

🧱 Tre eller glass, ikke spesifisert

Antall: 3

2 dører i tilbygget, 7 i eksisterende hus

Ytterdører til inngang og uteplass i tilbygget og eksisterende hus

Maling Utvendig maling

🧱 Grønn maling

Grønn farge på trepanel fasade

Maling av utvendig trepanel i grønn farge

Rekkverk Uteplass rekkverk

Rekkverk på overdekket uteplass

Rekkverk for sikkerhet på overdekket uteplass

Ventilasjon Ventilasjonssystem

Ingen løfteinnretninger planlagt, ventilasjon iht. TEK17

Ventilasjon i tilbygget i henhold til TEK17

Gulv Oppvarmet gulvareal

Antall: 56

Oppvarmet BRA på 56 m² i tilbygget

Gulv i tilbygget med oppvarming

Fasade Trepanel fasade

🧱 Tre, malt grønn

Fasader med trepanel, grønn farge, saltak på eksisterende hus, flatt og pulttak på tilbygg

Trepanel til fasader på tilbygg og eksisterende hus, tilpasset eksisterende bygg

Veg Grunnarbeid og vegomlegging

🧱 Grus

Omlegging av intern grusveg på eiendommen

Grunnarbeid og opparbeidelse av ny tilkomstveg til tilbygget

VVS Vann og avløp

Privat vann- og avløpsløsning, ingen økt kapasitet nødvendig

VVS-tilknytning til eksisterende privat vann og avløp

Vinduer Fasadevindu

🧱 Tre eller aluminium, ikke spesifisert

Antall: 3

3 vinduer i tilbygget, 14 i eksisterende hus

Nye vinduer i tilbygget og eksisterende vinduer i huset

Betong Grunnmur

🧱 Plasstøpt betong

Plasstøpt betongkonstruksjoner for grunnmur

Grunnmur i plasstøpt betong for tilbygget

Isolasjon Bygningsisolasjon

Isolasjon iht. TEK17 krav for bolig

Isolasjon i vegger, tak og gulv i tilbygget

Tak Saltak og flatt/pulttak

🧱 Taktekking ikke spesifisert

Eksisterende hus har saltak, tilbygget har flatt tak og pulttak med tilpasset helling

Taktekking for eksisterende saltak og nytt flatt/pulttak på tilbygg

Tømrer Trekonstruksjoner

🧱 Tre

Tømrerarbeid og montering av trekonstruksjoner for tilbygget

Trekonstruksjoner for tilbygget

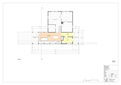
Plantegning

Eksisterende hus 47.4 m²

Etasje 1 47.4 m²

Rom Areal Vinduer Dører
Stue / Kjøkken 101 29.3 m² 3 1
Gang 102 5.2 m² 2 1
Bod 103 6.9 m² 2 1

Fasader

Eksisterende hus

NV
Materiale
Tre
Taktype
Saltak
Høyde
2.5 m
Vinduer
4
Dører
1
Synlige etasjer
2
SV
Materiale
Tre
Taktype
Saltak
Høyde
2.5 m
Vinduer
5
Dører
0
Synlige etasjer
2
Nordvest
Materiale
Tre
Taktype
Saltak
Høyde
2.8 m
Mønehøyde
3.3 m
Vinduer
4
Dører
1
Synlige etasjer
2
Sørvest
Materiale
Tre
Taktype
Saltak
Høyde
2.8 m
Vinduer
4
Dører
1
Synlige etasjer
2
Sørdøst
Materiale
Tre
Taktype
Saltak
Høyde
2.8 m
Mønehøyde
3.3 m
Vinduer
2
Dører
1
Synlige etasjer
1

Tilbygg

Materiale
Tre
Taktype
Flatt tak
Vinduer
3
Dører
2
Synlige etasjer
1
Materiale
Tre
Taktype
Flatt tak
Vinduer
0
Dører
1
Synlige etasjer
1
Sødvest
Materiale
Tre
Taktype
Flatt tak
Høyde
2.8 m
Mønehøyde
3.3 m
Vinduer
0
Dører
0
Synlige etasjer
1
Nordøst
Materiale
Tre
Taktype
Pulttak
Høyde
2.8 m
Mønehøyde
3.3 m
Vinduer
0
Dører
1
Synlige etasjer
1

Hendelser

16.04.2026 Vedtak - Tillatelse til tilbygg - Gnr. 350, bnr. 9 - Kysnesvegen 612
16.04.2026 Vedtak - Dispensasjon fra arealformål - Gnr. 350, bnr. 9 - Kysnesvegen 612
15.04.2026 Svar til søker - Etterspør løypemelding
14.04.2026 Sak 25/2252 - Etterspør svar i saka
17.03.2026 Uttale til søknad om dispensasjon - tilbygg - gnr. 350 bnr. 9 - Kysnesvegen 612 - Ullensvang kommune
13.03.2026 Anmodning om uttale til dispensasjon - Gnr. 350, bnr. 9 - Kysnesvegen 612
13.03.2026 Re: Sak 25/2252 - Etterspør løypemelding
09.03.2026 Etterspør løypemelding
02.03.2026 Søknad om dispensasjon - nabovarsling gjennomført - gnr. 350, bnr. 9 - Kysnesvegen 612
30.01.2026 Gnr. 350, bnr. 9 - Kysnesvegen 612, 5626 Kysnesstrand - Søknad om dispensasjon
22.01.2026 Vedtak - Avvisning av søknad om tilbygg - gnr. 350, bnr. 9 - Kysnesvegen 612
20.01.2026 Svar på spørsmål fra tiltakshaver vedr. arealformål
15.01.2026 Gnr. 350, bnr. 9 - Kysnesvegen 612, 5626 Kysnesstrand - TILSVAR TIL KOMMUNEN SI VURDERING
09.01.2026 Kommunens vurdering av tiltakets forhold til arealformålet - Gnr. 350, bnr. 9 - Kysnesvegen 612
18.12.2025 Gnr. 350, bnr. 9 - Kysnesvegen 612, 5626 Kysnesstrand - Oppdatering byggesak
13.10.2025 Gnr. 350, bnr. 9 - Kysnesvegen 612 - Supplering av søknad
13.10.2025 Informasjon om krav til behandling etter jordlova - Gnr. 350, bnr. 9 - Kysnesvegen 612
09.10.2025 Foreløpig tilbakemelding - Gnr. 350, bnr. 9 - Kysnesvegen 612
05.08.2025 Tilbakemelding - Gnr. 350, bnr. 9 - Kysnesvegen 612
04.08.2025 Gnr. 350, bnr. 9 - Kysnesvegen 612, 5626 Kysnesstrand - Setterlyser svar i saka
19.06.2025 Gnr. 350, bnr. 9 - Kysnesvegen 612, 5626 Kysnesstrand - Søknad om tiltak - ber om mottakskontroll
27.05.2025 Gnr. 350, bnr. 9 - Kysnesvegen 612, 5626 Kysnesstrand - Søknad om tiltak - Utvendig endring av bygg - tilbygg