Extension Avslatt Enebolig

Tilbygg og ny garasje på Landrovågen 26C, Ågotnes

📍 Landrovågen 26C , 5363 ÅGOTNES

Nøkkelinfo

Sakstype
Tilbygg
Bygningstype
Enebolig
Bruksareal
111 m²
Boenheter
1
Kommune
Øygarden
Fylke
Vestland
Gnr / Bnr
24 / 320
Saksnummer
25/28995
Fase
Avslått

Om byggesaken

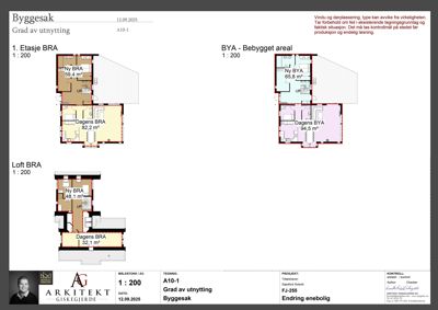
Ny garasje på 45,1 m² med flatt tak og tilbygg til eksisterende enebolig på Landrovågen 26C. Tilbygget er på 66 m² BYA, med en etasje og loft, og øker mønehøyden med ca. 1,4 meter. Eksisterende bod og vinterhage rives for å gi plass til ny garasje og tilbygg. Tilbygget inneholder nye soverom, bad, garderobe og inngangsparti, og gir en funksjonell boligstandard i tråd med vanlig byggeskikk for eneboliger. Fasaden er i tre med saltak og flatt tak, og det er planert og sprengt terreng i tilknytning til tiltaket. Overvann håndteres lokalt med infiltrasjon, regnbed og permeable dekker i henhold til TEK17. Tiltaket er innenfor gjeldende utnyttelsesgrad og uteoppholdsarealkrav. Det foreligger dispensasjon fra plankrav for bruksendring fra fritidsbolig til bolig, men ny dispensasjon for tilbygg og garasje er under behandling. Det er en trapp i boligen og en i garasjen. Totalt areal for boligen er 389,1 m², og garasjen 45,1 m².

Produkter og materialer

Gulv Innvendige gulvflater

Innvendige gulv i tilbygg og eksisterende bolig

Varmepumpe Luft-til-luft varmepumpe

Antall: 1

Montering av varmepumpe er vilkår i tillatelsen for energieffektivitet

Varmepumpe for oppvarming av bolig

Solceller Ingen opplysninger

Ingen solcelleanlegg oppgitt

Betong Fundament og grunnmur

🧱 Betong

Fundament og grunnmur for tilbygg og garasje

Fasade Tre kledning

🧱 Tre

Ny og utskiftet tre kledning på tilbygg og eksisterende bolig

Tre kledning på tilbygg og eksisterende bolig med ny farge

Maling Utvendig og innvendig maling

Ny farge på kledning og innvendige overflater

Maling av fasade og innvendige flater

Ventilasjon Mekanisk avtrekk og ventiler

Eksisterende mekanisk avtrekk og ventiler opprettholdes, med mulighet for åpning av vinduer for lufting

Ventilasjon i bolig med mekanisk avtrekk og ventiler

Vinduer Fasadevindu i tre

🧱 Tre

Antall: 20

Flere vindustyper i tilbygg og eksisterende bolig, inkludert vinduer med mål fra 390x1790 mm til 2290x2090 mm, noen med 35 graders takvinkel

Nye og utskiftede fasadevinduer i tilbygg og eksisterende bolig

Grunnarbeid Planering og sprengning

Planering og noe sprengning på sydøstlig del av tomten innenfor skravert område på utomhusplan

Grunnarbeid med planering og sprengning for tilpasning av tomt til nytt bygg

Tak Saltak og flatt tak

🧱 Takstein og taktekking

Saltak på tilbygg og eksisterende bolig, flatt tak på garasje, ny takstein på bolig

Nytt saltak på tilbygg og flatt tak på garasje, med ny takstein på bolig

Terrasse Terrasse og uteareal

Uteareal med minimum 250 m² uteoppholdsareal, planert og tilrettelagt

Terrasse og uteareal rundt bolig

Bad Bad med våtromsstandard

Antall: 3

Nye bad i tilbygg og eksisterende bolig med våtromsstandard

Bad med sanitærutstyr og fliser

Rekkverk Rekkverk til trapper

Rekkverk til innvendige trapper

VVS Sanitærinstallasjoner

Nye bad og vaskerom i tilbygg med sanitærinstallasjoner

Sanitærinstallasjoner for bad og vaskerom i tilbygg

Elektro Elektriske installasjoner

Elektriske installasjoner i tilbygg og garasje

Trapper Innvendig trapp i bolig og garasje

Antall: 2

En trapp i bolig og en i garasje

Innvendige trapper i bolig og garasje

Garasjeport Garasjeport til ny garasje

Antall: 1

Garasjeport til ny garasje på 45,1 m² med flatt tak

Pipe Pipe i bolig

Antall: 1

Eksisterende pipe i bolig

Pipe til peis/ovn i bolig

Dører Ytterdører i tre

🧱 Tre

Antall: 6

Ytterdører i tilbygg og bolig, inkludert inngangsdør 1010x2100 mm

Nye ytterdører i tilbygg og eksisterende bolig

Fasader

Enebolig

Nord
Materiale
Tre
Taktype
Flatt tak
Høyde
5.5 m
Mønehøyde
8.2 m
Vinduer
4
Dører
0
Synlige etasjer
2
Vest
Materiale
Tre
Taktype
Saltak
Høyde
5.5 m
Mønehøyde
8.2 m
Vinduer
10
Dører
1
Synlige etasjer
2
Sør
Materiale
Tre
Taktype
Flatt tak
Høyde
5.5 m
Mønehøyde
8.2 m
Vinduer
4
Dører
1
Synlige etasjer
2
Øst
Materiale
Tre
Taktype
Saltak
Høyde
5.5 m
Mønehøyde
8.2 m
Vinduer
6
Dører
1
Synlige etasjer
2

Hendelser

17.11.2025 GBNR 24/320 - Avvising av søknad
17.11.2025 GBNR 24/320 - Krav om fråfall av dispensasjon for tiltaket og merknadar til vedtak om avvising av søknad
11.11.2025 GBNR 24/320 - Ber om ny vurdering av dispensasjonssøknad
10.11.2025 GBNR 24/320 - Tilbakemelding
10.11.2025 GBNR 24/320 - Tilbakemelding om manglar
10.11.2025 GBNR 24/320 - Tilbakemelding
03.11.2025 GBNR 24/320 - Søknad om løyve i eitt trinn