Extension Rammetillatelse Enebolig

Tilbygg til enebolig i Laukvikveien 152, Laukvik

📍 Laukvikveien 152 , 8315 LAUKVIK

Nøkkelinfo

Sakstype
Tilbygg
Bygningstype
Enebolig
Bruksareal
49 m²
Boenheter
1
Kommune
Vågan
Fylke
Nordland - Nordlánnda
Gnr / Bnr
66 / 75
Saksnummer
26/740
Fase
Rammetillatelse

Om byggesaken

Ny tilbygg på 49,2 m² BRA fordelt over to eiendommer (gnr./bnr. 66/75 og 66/229) til en eksisterende enebolig i Laukvikveien 152. Tilbygget består av en etasje med stue, kjøkken og bad, og en annen etasje med soverom og bad, med saltak og tre som fasademateriale. Bygget har totalt 14 vinduer og 7 dører, samt en trapp. Tilbygget øker det bebygde arealet med 13,2 m² BYA, og samlet utnyttelsesgrad blir ca. 2,9 % BYA. Bygget skal oppføres i henhold til TEK17 og er plassert i risikoklasse 1.

Produkter og materialer

Gulv Innvendig gulv

Innvendige gulv i tilbygget, antatt standard materialer

Dører Ytterdører og innerdører

Antall: 7

7 dører inkludert ytterdører og innerdører til rom i tilbygget

Isolasjon Bygningsisolasjon

Isolasjon i vegger, tak og gulv for energikrav iht. TEK17

Elektro Elektrisk anlegg

Elektrisk installasjon i tilbygget iht. TEK17 krav

Tømrer Bygging av tilbygg

Tømrerarbeid for oppføring av tilbygget i tre

VVS Sanitærinstallasjoner

Bad med nødvendige sanitærinstallasjoner i tilbygget

Grunnarbeid Fundamentering og grunnmur

Grunnarbeid og fundamentering for tilbygget

Fasade Trepanel

🧱 Tre

Fasade i tre med saltak, takmateriale tegl på sørfasade

Utvendig kledning i tre og saltak med tegl på deler av taket

Maling Utvendig og innvendig maling

Maling av utvendige og innvendige flater i tilbygget

Vinduer Fasadevindu

Antall: 14

Totalt 14 vinduer fordelt på stue, soverom og fasader

Tak Saltak

🧱 Tegl (på sørfasade)

Saltak med tegl på sørfasade

Tak med saltak konstruksjon og tegl som takmateriale

Trapper Innvendig trapp

Antall: 1

Innvendig trapp mellom etasjene i tilbygget

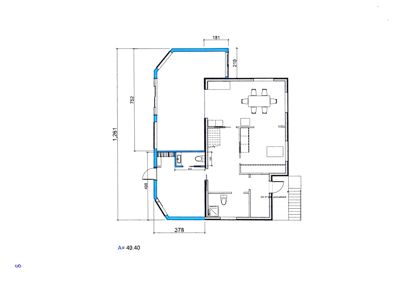
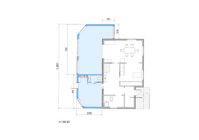
Plantegning

Enebolig 49.4 m²

Etasje 1 49.4 m²

Rom Areal Vinduer Dører
Stue 101 35.2 m² 3 1
Kjøkken 102 14.2 m² 0 1
Bad 103 4.0 m² 0 1
Bad 104 0.0 m² 0 1

Etasje 2 0.0 m²

Rom Areal Vinduer Dører
Soverom 201 0.0 m² 1 1
Soverom 202 0.0 m² 1 1
Bad 203 0.0 m² 0 1
Bad 204 0.0 m² 0 1

Fasader

Enebolig

Nord
Materiale
Tre
Taktype
Saltak
Vinduer
3
Dører
1
Balkonger
1
Synlige etasjer
2
Sør
Materiale
Tre
Taktype
Saltak
Takmat.
Tegl
Vinduer
3
Dører
1
Synlige etasjer
2
Vest
Materiale
Tre
Taktype
Saltak
Vinduer
5
Dører
1
Synlige etasjer
2
Øst
Materiale
Tre
Taktype
Saltak
Vinduer
3
Dører
1
Synlige etasjer
2
Ukjent
Materiale
Tre
Taktype
Saltak
Vinduer
3
Dører
1
Balkonger
1
Synlige etasjer
2

Hovedbygg

Ukjent
Materiale
Tre
Taktype
Saltak
Vinduer
6
Dører
0
Synlige etasjer
2

Hendelser

17.04.2026 Vedlegg plan og byggetegninger 66/75 & 66/229
17.04.2026 Tillatelse til tiltak uten ansvar - Tilbygg til bolig - Laukvikveien 152, Laukvik - gbn 66/75 og 66/229
13.03.2026 Gbn 66/75 - Søknad om tillatelse til tiltak uten ansvarsrett