Extension Rammetillatelse Enebolig

Tilbygg med ny entre til enebolig i Linerleveien 11

📍 Linerleveien 11 , 3142 VESTSKOGEN

Nøkkelinfo

Sakstype
Tilbygg
Bygningstype
Enebolig
Bruksareal
22 m²
Boenheter
1
Kommune
Færder
Fylke
Vestfold
Gnr / Bnr
13 / 206
Saksnummer
2026/2764
Fase
Rammetillatelse

Om byggesaken

Ny tilbygg på 21,6 m² BYA til eksisterende enebolig i Linerleveien 11, bestående av en ny entre som kobler til eksisterende kjøkken, soverom og gang. Tilbygget har saltak og tre som fasademateriale, og inngår i bærende konstruksjon som krever riving av deler av eksisterende yttervegger på nordlige og vestre fasader. Eksisterende bolig har flatt og valmtak, og tilbygget har gesimshøyde på 4,3 meter. Bygget er planlagt med 1 etasje og inkluderer nye vinduer og dører i tilbygget. Arealet på eksisterende bolig er ca. 141,5 m² BYA, og total BYA etter tilbygg blir 236 m². Tiltaket er godkjent med ansvarsrett og følger krav i TEK17.

Produkter og materialer

Isolasjon Vegger og tak

Isolasjon iht. TEK17 krav for yttervegger og tak i tilbygget

Isolasjon for nytt tilbygg

Tak Saltak

Antall: 1

Saltak på tilbygget med gesimshøyde 4,3 m

Nytt saltak på tilbygget

Dører Ytterdør

Antall: 1

1 ytterdør i tilbyggets vestfasade

Ny ytterdør til entre i tilbygget

Dører Innvendige dører

Antall: 1

Innvendig dør til entre i tilbygget

Innvendig dør i tilbygget

Grunnarbeid Fundamentering

Fundamentering for nytt tilbygg, inkludert plassering og toleranser for støping

Grunnarbeid og fundamentering for tilbygget

Elektro El-installasjon

Elektriske installasjoner i tilbygget, inkludert ny el for rehabilitering

Elektroarbeid i tilbygget

Fasade Tre kledning

🧱 Tre

Tilbygg med tre som fasademateriale, saltak

Utvendig kledning i tre på tilbygget

Tømrer Bærende konstruksjon

🧱 Tre/stål (ikke spesifisert)

Bærende konstruksjoner i tilbygget, inkludert riving av deler av eksisterende yttervegger

Tømrerarbeid for bærende konstruksjon i tilbygget

Vinduer Fasadevindu

🧱 Tre eller PVC (ikke spesifisert)

Antall: 2

2 vinduer i tilbyggets vestfasade

Nye fasadevinduer i tilbygget

Gulv Innvendig gulv

Nytt gulv i tilbyggets entre

Innvendig gulv i tilbygget

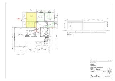
Plantegning

Enebolig 120.5 m²

Etasje 1 120.5 m²

Rom Areal Vinduer Dører
Entre 01 13.2 m² 1 2
Sov 02 7.6 m² 1 1
Sov 03 11.1 m² 1 1
Gang 04 11.5 m² 0 4
Bad 05 4.8 m² 0 1
Stue STUE 43.0 m² 2 1
Kjøkken KJOKKEN 9.0 m² 1 1
Sov SOV 6.8 m² 1 1
Sov SOV 6.6 m² 1 1
Bad BAD 3.0 m² 0 1

Fasader

Enebolig

Sør
Materiale
Tre
Taktype
Flatt tak
Høyde
2.4 m
Vinduer
4
Dører
2
Synlige etasjer
1
Vest
Materiale
Tre
Taktype
Valmtak
Vinduer
1
Dører
1
Synlige etasjer
1
Øst
Materiale
Tre
Taktype
Valmtak
Vinduer
4
Dører
0
Synlige etasjer
1
Nord
Materiale
Tre
Taktype
Flatt tak
Vinduer
2
Dører
0
Synlige etasjer
1

Tilbygg

Vest
Materiale
Tre
Taktype
Saltak
Høyde
4.3 m
Vinduer
2
Dører
1
Synlige etasjer
1

Hendelser

14.04.2026 Gbnr 13/206 - Linerleveien 11 - Tilbygg til bolig - Informasjon om BRA
08.04.2026 Gbnr 13/206 - Linerleveien 11 - Tilbygg til bolig - Ett-trinnstillatelse med ansvarsrett
25.03.2026 Gbnr 13/206 - Linerleveien 11 - Tilbygg til bolig - Supplerende dokumentasjon
24.03.2026 Gbnr 13/206 - Linerleveien 11 - Tilbygg til bolig - Søknad om tillatelse i ett trinn
19.03.2026 Gbnr 13/206 - Linerleveien 11 - Tilbygg til bolig - Behov for supplering
12.03.2026 Gbnr 13/206 - Linerleveien 11 - Tilbygg til bolig - Søknad mottatt
11.03.2026 Gbnr 13/206 - Linerleveien 11 - Tilbygg til bolig - Søknad om tillatelse til tiltak uten ansvarsrett