Extension Ferdigattest Enebolig

Tilbygg, bod, fasadeendring og terrasse i Lønneveien 22

📍 Lønneveien 22B , 3229 SANDEFJORD

Nøkkelinfo

Sakstype
Tilbygg
Bygningstype
Enebolig
Bruksareal
184 m²
Boenheter
1
Kommune
Sandefjord
Fylke
Vestfold
Gnr / Bnr
46 / 329
Saksnummer
2017/1971
Fase
Ferdigattest

Om byggesaken

Ny utvidelse av enebolig med tilbygg på ca. 18 m² inkludert overbygget terrasse i 1. etasje og underliggende boder i underetasjen. Det er etablert markterrasser med utvendige boder og ny fasade med skifting av panel, tilpasset boligens funksjonalistiske stil fra 1964. Terrassene har glassrekkverk og murrekkverk med buet avslutning, og det er etablert blomsterbed for estetisk oppgradering. Totalt areal etter tiltaket er ca. 184 m² med 2 etasjer, flatt tak og trepanel i fasaden. Bygget har ett trappetrinn, flere boder, bad, kjøkken og oppholdsrom. Tiltaket er ferdigstilt og godkjent med ferdigattest.

Produkter og materialer

Dører Ytterdører og terrassedører

Dører til boder, terrasser og inngangspartier i tre og glass

Ytterdører og terrassedører i tilbygg og eksisterende bygg

Fasade Trepanel

🧱 Liggende og stående trepanel

Skifting av panel, kombinasjon av liggende panel og slett murinspirerte flater, farge tilpasset eksisterende

Ny fasadekledning i trepanel, liggende og stående, tilpasset funkisstil fra 1964

VVS Sanitærinstallasjoner

Rehabilitering av innvendige sanitæranlegg i bad og vaskerom

Sanitærinstallasjoner i tilbygg og eksisterende bygg

Vinduer Glassfelt skyvevinduer

🧱 6 mm herdet enkeltglass i sort ramme

Antall: 12

Skyvbare glassfelt i sort ramme på terrasse, 6 stk felt på hver side av midtstolpe

Skyvbare glassfelt som kan åpnes sammenhengende

Tak Flatt tak

Flatt tak på tilbygg og eksisterende bygg

Flatt tak på hele bygget, inkludert tilbygg og terrasseoverbygg

Betong Støpt veranda og fundamenter

🧱 Betong

Støpt veranda mot sørøst, markterrasse med mur

Betongkonstruksjoner for veranda og markterrasse

Grunnarbeid Graving og fundamentering

Graving for tilbygg, terrasse og boder, fundamentering i henhold til godkjente tegninger

Grunnarbeider for tilbygg og terrasser

Maling Utvendig og innvendig maling

Maling av fasadepanel og innvendige overflater

Maling for fasade og innvendige flater

Gulv Innvendige gulv

Gulv i tilbygg og eksisterende bygg, inkludert boder og oppholdsrom

Innvendige gulv i bolig og tilbygg

Tømrer Bygging av tilbygg og boder

🧱 Treverk

Tømrerarbeid for tilbygg, boder, terrasseoverbygg og fasadeendring

Tømrerarbeid for konstruksjon og kledning

Elektro Elektriske installasjoner

Elektriske installasjoner i tilbygg og eksisterende bygg

El-installasjoner i henhold til gjeldende forskrifter

Terrasse Overbygget terrasse og markterrasse

🧱 Glassrekkverk, mur med syrefaste rør

Overbygget terrasse på 15,1 m², markterrasse med glassrekkverk og buet murrekkverk, blomsterbed på 13,3 m²

Terrasser med rekkverk i glass og mur, tilpasset estetikk og sikkerhet

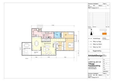
Plantegning

Enebolig 184.1 m²

Etasje 0 17.6 m²

Rom Areal Vinduer Dører
Krypkjeller KRY 22.4 m² 0 1
Bod BOD 6.7 m² 0 1
Teknisk rom TEKN 0.9 m² 0 0
Bad BAD 3.7 m² 0 1
Garderobe GARD 5.8 m² 0 1
Bod-BRA BOD-BRA 2.4 m² 0 1
Krypkjeller og utv. bod KRY-UTV 17.6 m² 0 1
Bod 001 6.9 m² 0 1
Bod 002 3.4 m² 0 1
Bod og vvs 003 7.7 m² 0 1
Bad 004 3.6 m² 0 1
VF-gard 005 5.9 m² 0 1
Kjellerstue-gang-trapp 006 23.3 m² 0 1
Gang 007 4.8 m² 0 1
Sov.4 008 9.0 m² 1 1
Sov.5 009 12.6 m² 1 1
Krypkjeller 010 0.0 m² 0 0

Etasje 1 166.5 m²

Rom Areal Vinduer Dører
Stue 101 29.0 m² 1 1
Kontor 102 8.6 m² 0 1
Sov.1 103 14.7 m² 1 1
Sov.2 104 9.9 m² 1 1
Bad 105 5.9 m² 0 1
Kjøkken 106 18.0 m² 0 1
Vaskerom 107 1.2 m² 0 0
Gang 108 14.4 m² 0 1
Terrasse 109 15.1 m² 0 1
Altan 110 6.0 m² 0 0
Trapp 111 5.0 m² 0 0
Altan 112 5.7 m² 0 0
Hagestue 113 15.1 m² 0 0

Fasader

Enebolig

Nordvest
Materiale
Tre
Taktype
Flatt tak
Høyde
3.0 m
Vinduer
3
Dører
0
Synlige etasjer
1
Sør
Materiale
Panel
Taktype
Flatt tak
Høyde
3.0 m
Mønehøyde
3.0 m
Vinduer
3
Dører
1
Synlige etasjer
1
Sørvest
Materiale
Tre
Taktype
Flatt tak
Høyde
4.2 m
Vinduer
10
Dører
2
Balkonger
1
Synlige etasjer
2
Materiale
Tre
Taktype
Flatt tak
Vinduer
4
Dører
1
Synlige etasjer
1
SV
Materiale
Tre
Taktype
Flatt tak
Vinduer
11
Dører
2
Balkonger
1
Synlige etasjer
2
NV
Materiale
Tre
Taktype
Flatt tak
Vinduer
2
Dører
0
Synlige etasjer
2
Materiale
Tre
Taktype
Flatt tak
Vinduer
0
Dører
2
Balkonger
1
Synlige etasjer
1
Nordøst
Materiale
Tre
Taktype
Flatt tak
Høyde
2.7 m
Mønehøyde
2.7 m
Vinduer
6
Dører
1
Synlige etasjer
1

Hovedbygg

Sør
Materiale
Betong
Taktype
Flatt tak
Høyde
3.0 m
Vinduer
3
Dører
0
Synlige etasjer
1

Uthus

Sør
Materiale
Betong
Taktype
Flatt tak
Høyde
2.0 m
Vinduer
0
Dører
0
Synlige etasjer
1

Hendelser

16.04.2026 Gbnr 46/329 - Lønneveien 22 B - Tilbygg og fasadeendringer - Ferdigattest
15.04.2026 Gbnr 46/329 - Lønneveien 22B - Søknad om ferdigattest - Revidert - Tilbakemelding
10.04.2026 Gbnr 46/329 - Lønneveien 22B - Søknad om ferdigattest - Tilbakemelding
17.03.2026 Gbnr 46/329 - Lønneveien 22 B - Tilbygg og fasadeendringer - Søknad om ferdigattest
21.02.2017 Gbnr 46/329 - Lønneveien 22 B - Tilbygg og fasadeendringer - Vedtak
03.02.2017 Gbnr 46/329 - Lønneveien 22 B - Søknad om tillatelse til tiltak