Extension UnderBehandling Enebolig

Vinterhage og terrasseutvidelse på enebolig i Lurdalsveien 354

📍 Lurdalsveien 354 , 3614 KONGSBERG

Nøkkelinfo

Sakstype
Tilbygg
Bygningstype
Enebolig
Bruksareal
44 m²
Boenheter
1
Kommune
Øvre Eiker
Fylke
Buskerud
Gnr / Bnr
133 / 10
Saksnummer
2026/3031
Fase
Under behandling

Om byggesaken

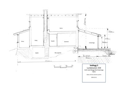
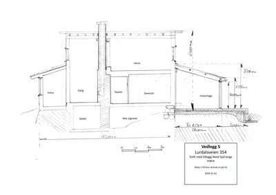
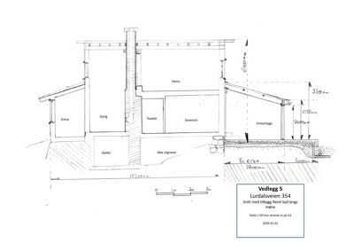
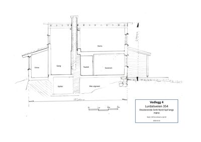
Ny vinterhage på 26 m² og utvidelse av terrasse på 18 m² plasseres på sørsiden av eksisterende enebolig i Lurdalsveien 354. Vinterhagen bygges som et tilbygg med mulighet for to alternativer for gulvhøyde, enten med 40 cm lavere gulv med trappetrinn eller i samme gulvhøyde som eksisterende rom. Bygningen er av tre med saltak tekket med teglstein, og vinterhagen tilpasses eksisterende takvinkel og takutstikk. Terrassen utvides i tilknytning til vinterhagen. Tiltaket er innenfor LNF-sone 3 og har fått dispensasjon fra byggegrense mot fylkesvei med krav til avstand og adkomst. Bygningen er eldre, oppført før 1850, men vurdert med lav verneverdi. Det er én trapp i bygget, og fasadene har flere vinduer og dører i tre.

Produkter og materialer

Dører Ytterdører i tre

🧱 Tre og glass

Antall: 3

Dører på sør, øst og vest fasade til vinterhage og terrasse.

Ytterdører i tre med glassfelt til vinterhage og terrasse.

Fasade Vinterhage fasadeelementer

🧱 Tre og glass

Tilbygg vinterhage med fasade i tre, tilpasset eksisterende saltak med teglstein. Fasade sør med 6 vinduer og 1 dør, fasade øst med 5 vinduer, 1 dør og 1 balkong.

Fasadeelementer for vinterhage tilpasset eksisterende enebolig med saltak og teglstein.

Tømrer Bygging av tilbygg og terrasse

🧱 Tre

Tømrerarbeid for oppføring av vinterhage og terrasseutvidelse i tre.

Tømrerarbeid for konstruksjon av tilbygg og terrasse.

Vinduer Fasadevindu i tre

🧱 Tre og glass

Antall: 11

6 vinduer på sørfasade, 5 vinduer på østfasade i vinterhagen.

Vinduer til vinterhage i tre med glass.

Tak Saltak med teglstein

🧱 Teglstein

Tak på vinterhage tilpasses eksisterende saltak med teglstein.

Taktekking for vinterhage med teglstein i saltakstil.

Trapper Innvendig trapp

🧱 Tre

Antall: 1

Trapp med 2 trinn ned fra vinterhage til eksisterende gulvnivå i alternativ 1, eller nivå lik eksisterende gulv i alternativ 2.

Trapp for nivåforskjell mellom vinterhage og eksisterende rom.

Grunnarbeid Fundamentering og drenering

Fundamentering for vinterhage og terrasseutvidelse, inkludert drenering og grunnarbeid.

Grunnarbeid for tilbygg og terrasse.

Terrasse Utvidet terrasse

🧱 Tre

Utvidelse av terrasse på 18 m² på sørsiden av huset i tilknytning til vinterhagen.

Utvidelse av eksisterende terrasse i tre.

Plantegning

Enebolig 0.0 m²

Etasje 1 0.0 m²

Rom Areal Vinduer Dører
Entre 101 0.0 m² 0 1
Bad 102 0.0 m² 0 1
Garderobe 103 0.0 m² 0 1
Gang 104 0.0 m² 0 2
Kjøkken 105 0.0 m² 0 1
Spisestue 106 0.0 m² 0 1
Bod 107 0.0 m² 0 1
Soverom 108 0.0 m² 0 1
Bad 109 0.0 m² 0 1
Bibliotek 110 0.0 m² 0 1
Stue 111 0.0 m² 0 1
Vinterhage 112 0.0 m² 0 1
Terrasse 113 0.0 m² 0 0

Fasader

Enebolig

Nord
Materiale
Tre
Taktype
Saltak
Takmat.
Tegl
Høyde
6.5 m
Mønehøyde
8.2 m
Vinduer
5
Dører
0
Synlige etasjer
2
Sør
Materiale
Tre
Taktype
Saltak
Takmat.
Tegl
Høyde
6.5 m
Mønehøyde
8.2 m
Vinduer
6
Dører
1
Synlige etasjer
2
Øst
Materiale
Tre
Taktype
Saltak
Takmat.
Tegl
Vinduer
5
Dører
1
Balkonger
1
Synlige etasjer
2
Vest
Materiale
Tre
Taktype
Saltak
Takmat.
Tegl
Høyde
2.4 m
Mønehøyde
3.3 m
Vinduer
2
Dører
1
Synlige etasjer
1

Hendelser

10.04.2026 Kulturminnefaglig uttalelse - Vinterhage og utvidelse av terrasse - gbnr 133/10 - Lurdalsveien 354, Kongsberg
10.04.2026 Gbnr 133/10 - Landbruks- og miljøfaglig uttalelse til vinterhage og utvidelse av terrasse
10.04.2026 Anmodning om uttalelse - Vinterhage og utvidelse av terrasse - gbnr 133/10 - Lurdalsveien 354, Kongsberg
09.04.2026 Anmodning om uttalelse - Vinterhage og utvidelse av terrasse - gbnr 133/10 - Lurdalsveien 354, Kongsberg
09.04.2026 Anmodning om uttalelse - Vinterhage og utvidelse av terrasse - gbnr 133/10 - Lurdalsveien 354, Kongsberg
07.04.2026 Søknad uten ansvarsrett - Vinterhage og utvidelse av terrasse - gbnr 133/10 - Lurdalsveien 354, Kongsberg
30.03.2026 Vedtak om dispensasjon fra byggegrense til fylkesvei - vinterhage - gbnr 133/10 - Lurdalsveien 354, Kongsberg