Extension Rammetillatelse Enebolig

Takoverbygg på 17 m² til bolig i Mælen 155, Drammen

📍 Mælen 155 , 3039 DRAMMEN

Nøkkelinfo

Sakstype
Tilbygg
Bygningstype
Enebolig
Bruksareal
17 m²
Boenheter
1
Kommune
Drammen
Fylke
Buskerud
Gnr / Bnr
56 / 31
Saksnummer
25/41982
Fase
Rammetillatelse

Om byggesaken

Takoverbygg på 17 m² BYA er oppført over en eksisterende godkjent platting på sørfasaden av eneboligen i Mælen 155, Drammen. Tilbygget er et mindre overdekket uteareal som forbedrer bokvalitet og funksjonalitet uten å endre eiendommens karakter eller arealbruk. Bygget er i tre med saltak tekket med teglstein, tilpasset eksisterende bolig som har to etasjer og totalt 237,5 m². Tiltaket er visuelt underordnet hovedbygget og plassert 15,5 meter fra nærmeste eiendomsgrense. Det er gitt dispensasjon fra arealformål LNFR, og tiltaket har ingen negativ påvirkning på landbruksinteresser eller naturverdier. Søknaden er ferdigbehandlet med tillatelse og det er søkt om ferdigattest.

Produkter og materialer

Tømrer Montering av trekonstruksjoner

🧱 Tre

Utførelse av takoverbygg i trekonstruksjoner

Tømrerarbeid for oppføring av takoverbygg i tre

Tak Saltak med teglstein

🧱 Teglstein

Antall: 1

Saltak tekket med teglstein, tilpasset eksisterende bolig

Takoverbygg på 17 m² med saltak tekket med teglstein

Vinduer Fasadevindu

Antall: 0

Ingen nye vinduer i takoverbygg

Takoverbygg har ingen nye vinduer

Grunnarbeid Platting

🧱 Godkjent platting under takoverbygg

Antall: 1

Eksisterende godkjent platting på 17 m² som takoverbygg er plassert over

Underlag for takoverbygg er eksisterende godkjent platting

Fasade Trepanel

🧱 Tre

Trepanel på vegger og himling i takoverbygg

Fasade og himling i takoverbygg utført i trepanel, tilpasset eksisterende trehus

Dører Skyvedør eller ytterdør

Antall: 0

Ingen nye dører i takoverbygg

Takoverbygg har ingen nye dører

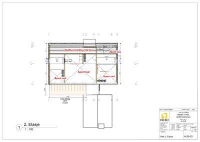
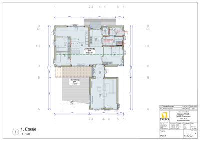
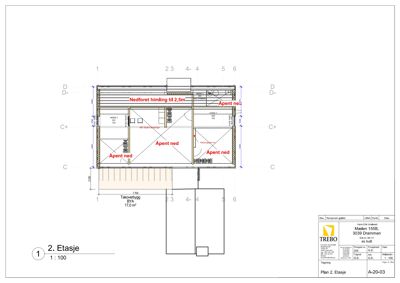
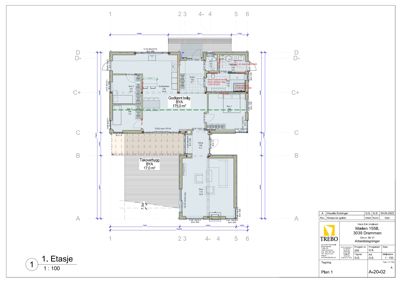
Plantegning

Enebolig 237.5 m²

Etasje 2 62.5 m²

Rom Areal Vinduer Dører
Soverom 201 9.9 m² 1 1
Soverom 202 8.8 m² 1 1
Teknisk rom 203 0.0 m² 0 0

Etasje 1 175.0 m²

Rom Areal Vinduer Dører
Stue 110 32.6 m² 1 1
Gang 109 5.3 m² 0 2
Sutkjøkken 106 45.8 m² 1 1
Sov 2 107 8.9 m² 1 1
Sov 3 108 7.9 m² 1 1
Sov 1 104 14.7 m² 1 1
WC 101 2.0 m² 0 1
Bad 102 4.8 m² 0 1
Bad 103 7.8 m² 0 1

Fasader

Hovedbygg

Øst
Materiale
Tre
Taktype
Saltak
Takmat.
Tegl
Vinduer
4
Dører
2
Synlige etasjer
2
Nord
Materiale
Tre
Taktype
Saltak
Takmat.
Tegl
Vinduer
3
Dører
1
Synlige etasjer
2
Vest
Materiale
Tre
Taktype
Saltak
Takmat.
Tegl
Vinduer
3
Dører
2
Synlige etasjer
2
Sør
Materiale
Tre
Taktype
Saltak
Takmat.
Tegl
Vinduer
2
Dører
1
Synlige etasjer
2

Hendelser

14.04.2026 Mælen Søknad om ferdigattest 56/31
14.04.2026 Mælen 155, tillatelse til oppføring av tilbygg med dispensasjon fra arealformål LNFR
16.03.2026 Sv: BYGG-25/02104 - Mælen 155b
10.03.2026 Mælen 155, bruksendring, etterspør status på saken
05.03.2026 Mælen 155, Uttalelse til dispensasjon for takoverbygg over eksisterende platting
16.02.2026 Mælen 155B, supplerende opplysninger
12.02.2026 Mælen 155, anmodning om uttalelse
10.02.2026 Mælen 155B, supplering av søknaden
09.02.2026 Mælen 155, vi trenger flere opplysninger for å behandle søknaden din
09.02.2026 Mælen 155B, etterspør status på søknad
20.01.2026 Mælen 155B, informasjon om innsendt søknad
19.01.2026 Mælen Søknad om tillatelse i ett trinn 56/31
11.12.2025 Mælen 155, Forespørsel om fristutsettelse for innsending av komplett søknad, samt ber om samtale for rask avklaring vedr nabovarsel
11.12.2025 Mælen 155, mottatt melding om tilbygg/takoverbygg er søknadspliktig tiltak - vi trenger flere opplysninger for å behandle søknaden
06.12.2025 Mælen 155, melding om mottatt søknad
12.11.2025 Mælen 155, ettersending av tegninger