Extension UnderBehandling Enebolig

Bruksendring, fasadeendring og tilbygg på enebolig i Nedre Brøholtlia 4

📍 Nedre Brøholtlia 4 , 3430 SPIKKESTAD

Nøkkelinfo

Sakstype
Tilbygg
Bygningstype
Enebolig
Bruksareal
192 m²
Boenheter
1
Kommune
Asker
Fylke
Akershus
Gnr / Bnr
280 / 128
Saksnummer
26/622
Fase
Under behandling

Om byggesaken

Eksisterende enebolig på Nedre Brøholtlia 4 gjennomgår en bruksendring i underetasjen fra tilleggsdel til hoveddel, med tilhørende fasadeendringer som nye vinduer og ytterdør i underetasjen. Det bygges et tilbygg under eksisterende terrasse som fungerer som bod. Bygget har saltak med teglstein, trekledning og to etasjer. Underetasjen inneholder flere soverom, bad, bod og gangarealer, mens hovedetasjen har stue, kjøkken, vaskerom, bad og soverom. Det er én intern trapp som forbinder etasjene, og boligen forblir én boenhet. Tiltaket inkluderer dispensasjon fra regulert byggegrense mot vei og er tilpasset krav til støy og sikkerhet innenfor hensynssone for brann- og eksplosjonsfare.

Produkter og materialer

Tak Saltak med teglstein

🧱 Teglstein

Eksisterende saltak med teglstein opprettholdes

Taktekking med teglstein på saltak

Isolasjon Vegger og tak i tilbygg og underetasje

🧱 Mineralull eller tilsvarende

Isolasjon for å oppfylle krav til energibruk og lydisolasjon

Isolasjon i tilbygg og bruksendret underetasje

Tømrer Innvendige vegger og tak i tilbygg

🧱 Tre og isolasjon

Innvendige konstruksjoner i tilbygg og fasadeendring

Tømrerarbeid for tilbygg og fasadeendring

Vinduer Fasadevindu i underetasje

🧱 Tre med 3-lags energiglass

Antall: 5

Nye vinduer i underetasje, krav til dagslys og støyisolasjon iht. TEK17 §13-7

Nye fasadevinduer i underetasjen for bruksendring og fasadeendring

Fasade Trekledning

🧱 Tre

Fasade i tre med saltak og teglstein, tilpasning til eksisterende fasade

Fasadeendring med ny kledning og tilpasning til eksisterende bygg

Elektro Elektrisk anlegg i tilbygg og underetasje

Nye elektriske installasjoner i tilbygg og endret underetasje

Elektroarbeid for tilbygg og bruksendring

Tilbygg Bod under terrasse

🧱 Trekonstruksjon med isolasjon og kledning

Antall: 1

Tilbygg under eksisterende terrasse som bod, med tilpasning til eksisterende huslinje

Tilbygg under terrasse for bod, inkludert fundament og drenering

Trapper Innvendig trapp

🧱 Tre eller betong

Antall: 1

Eksisterende intern trapp opprettholdes som forbindelse mellom etasjer

Innvendig trapp i enebolig

Dører Ytterdør i underetasje

🧱 Tre eller tilsvarende isolert ytterdør

Antall: 1

Ny ytterdør i underetasjen som del av fasadeendring

Ny ytterdør i underetasjen for fasadeendring

VVS Sanitærinstallasjoner i bad og bod

Oppgradering og tilpasning av bad og bod i underetasje i forbindelse med bruksendring

VVS-arbeid for bad og bod i underetasje

Grunnarbeid Fundament og drenering for tilbygg

🧱 Betong og drensrør

Fundamentering og drenering under tilbygg, inkl. sikring av skråning med betongmur boltet til fjell

Grunnarbeid for tilbygg under terrasse

Gulv Innvendige gulv i tilbygg og underetasje

🧱 Parkett eller fliser

Nye gulv i tilbygg og bruksendret underetasje

Gulvlegging i tilbygg og underetasje

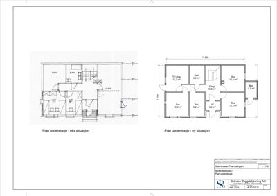
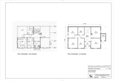
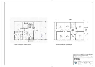
Plantegning

Enebolig 192.1 m²

Etasje 0 100.5 m²

Rom Areal Vinduer Dører
Sov U01 12.3 m² 1 1
Bad U02 6.5 m² 0 1
Sov U03 13.8 m² 1 1
Gang U04 15.8 m² 0 3
Bod U05 3.7 m² 1 1
Sov U06 12.2 m² 1 1
Sov U07 8.2 m² 1 1
VF U08 3.2 m² 0 1
Bod U09 3.7 m² 0 1
Bod 001 11.9 m² 1 1
Bad 002 4.5 m² 0 1
Sov 1 003 11.5 m² 1 1
Sov 2 004 6.8 m² 1 1

Etasje 1 91.6 m²

Rom Areal Vinduer Dører
Stue 101 39.2 m² 3 1
Kjøkken 102 11.5 m² 1 1
Vaskerom 103 4.2 m² 0 1
Gang 104 5.8 m² 0 2
Bad 105 4.5 m² 0 1
Sov 1 106 11.5 m² 1 1
Sov 2 107 11.9 m² 1 1

Fasader

Enebolig

Nord
Materiale
Tre
Taktype
Saltak
Takmat.
Tegl
Høyde
6.5 m
Mønehøyde
8.2 m
Vinduer
5
Dører
1
Balkonger
1
Synlige etasjer
2
Sør
Materiale
Tre
Taktype
Saltak
Takmat.
Tegl
Høyde
6.5 m
Mønehøyde
8.2 m
Vinduer
4
Dører
1
Synlige etasjer
2
Øst
Materiale
Tre
Taktype
Saltak
Takmat.
Tegl
Høyde
6.5 m
Mønehøyde
8.2 m
Vinduer
3
Dører
0
Balkonger
1
Synlige etasjer
2
Vest
Materiale
Tre
Taktype
Saltak
Takmat.
Tegl
Høyde
6.5 m
Mønehøyde
8.2 m
Vinduer
2
Dører
1
Synlige etasjer
2
Nordvest
Materiale
Tre
Taktype
Saltak
Vinduer
6
Dører
2
Balkonger
1
Synlige etasjer
2
Nordøst
Materiale
Tre
Taktype
Saltak
Vinduer
2
Dører
1
Synlige etasjer
2
Sørvest
Materiale
Tre
Taktype
Saltak
Vinduer
3
Dører
0
Balkonger
1
Synlige etasjer
2

Garasje

Sørvest
Materiale
Tre
Taktype
Saltak
Vinduer
2
Dører
1
Balkonger
1
Synlige etasjer
2

Hendelser

15.04.2026 280/128 Nedre Brøholtlia 4 - Supplering av søknad
23.03.2026 280/128 Nedre Brøholtlia 4 - Uttalelse angående søknad om bruksendring, tilbygg og fasadeendring
17.03.2026 280/128 Nedre Brøholtlia 4 - Uttalelse om bruksendring, tilbygg og fasadeendring
06.03.2026 280/128 Nedre Brøholtlia 4 - Ufullstendig søknad - Bruksendring, fasadeendring og underbygg
06.03.2026 280/128 Nedre Brøholtlia 4 - Anmodning om uttalelse - Bruksendring, tilbygg og fasadeendring
26.02.2026 280/128 Nedre Brøholtlia 4 - Søknad om tillatelse i ett trinn - Bruksendring, fasadeendring og tilbygg