Facade
Fasadetegning som viser utsiden av en bygning sett fra flere vinkler.
1 / 3
Extension
Unknown
Enebolig
Tilbygg
📍 Øksningvegen 32 , 7970 KOLVEREID
Nøkkelinfo
- Sakstype
- Tilbygg
- Bygningstype
- Enebolig
- Kommune
- Nærøysund
- Fylke
- Trøndelag - Trööndelage
- Gnr / Bnr
- 57 / 48
- Saksnummer
- 2026/1670
- Fase
- Unknown
Om byggesaken
Søknad om tillatelse for et tilbygg på eiendommen Øksningvegen 32.
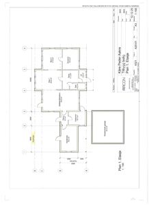
Plantegning
Tilbygg bolig 168.7 m²
Etasje 1 168.7 m²
| Rom | Areal | Vinduer | Dører |
|---|---|---|---|
| Garderobe 101 | 18.2 m² | 0 | 1 |
| Gang 102 | 4.0 m² | 0 | 2 |
| Vaskerom 103 | 10.0 m² | 0 | 1 |
| Kjøkken/Spisestue 104 | 33.5 m² | 2 | 2 |
| Stue 1 105 | 22.8 m² | 2 | 1 |
| Stue 2 106 | 17.9 m² | 2 | 1 |
| Gang 107 | 11.3 m² | 0 | 3 |
| Bad 108 | 4.2 m² | 0 | 1 |
| Soverom 109 | 14.9 m² | 1 | 1 |
| VF 110 | 3.6 m² | 0 | 1 |
Fasader
Enebolig
Vest
- Materiale
- Tre
- Taktype
- Saltak
- Vinduer
- 4
- Dører
- 0
- Synlige etasjer
- 2
Øst
- Materiale
- Tre
- Taktype
- Saltak
- Vinduer
- 4
- Dører
- 0
- Synlige etasjer
- 2
Nord
- Materiale
- Tre
- Taktype
- Saltak
- Vinduer
- 6
- Dører
- 1
- Synlige etasjer
- 2
Sør
- Materiale
- Tre
- Taktype
- Saltak
- Vinduer
- 8
- Dører
- 1
- Synlige etasjer
- 2
Hendelser
15.04.2026
57/48 - Kåre Aakre - Søknad om tiltak - Tilbygg - Øksningvegen 32 - gnr 57 bnr 48