Extension Ferdigattest Enebolig

Ny våningshus med vinterhage i Museumsveien 100

📍 Oreveien 61 , 4560 VANSE

Nøkkelinfo

Sakstype
Tilbygg
Bygningstype
Enebolig
Bruksareal
450 m²
Boenheter
1
Kommune
Farsund
Fylke
Agder
Gnr / Bnr
100 / 1
Saksnummer
23/01587
Fase
Ferdigattest

Om byggesaken

Ny våningshus på totalt 450 m² BRA fordelt på tre etasjer med ett trapperom. Første etasje inneholder vaskerom, grovkjøkken, stor stue/kjøkken og vinterhage som mellombygg, samt entre og WC. Andre etasje har fire soverom, kontor/gjest, to bad, walk-in-closet og gangarealer. Tredje etasje består av loftsrom, bod og kott. Bygget har saltak med takvinkel tilpasset eksisterende låve på ca. 37,5°. Fasader er tegnet mot alle himmelretninger. Prosjektet inkluderer riving av eldre hus og miljøsanering, samt ny grunnarbeid, ventilasjon, sanitærinstallasjoner og tømrerarbeid.

Produkter og materialer

Vinduer Fasadevinduer og takvinduer

Antall: 18

Vinduer i soverom, stue, vaskerom og vinterhage, totalt 18 vinduer

Vinduer til alle etasjer, inkludert store vindusflater i vinterhage

Tømrer Trekonstruksjoner for våningshus

🧱 Trelast

Montering av trekonstruksjoner for nytt våningshus og vinterhage

Tømrerarbeid for oppføring av ny bolig med vinterhage

Annet Miljøsanering og avfallshåndtering

Miljøsanering og sortering av bygge- og rivingsavfall

Miljøsanering og avfallshåndtering i forbindelse med riving

Dører Ytter- og innerdører

Antall: 22

Ytterdører og innerdører til rom og etasjer i våningshuset

Dører til soverom, bad, bod, entre, vinterhage og øvrige rom

Ventilasjon Ventilasjons- og klimainstallasjoner

Ventilasjonsanlegg for bolig og vinterhage

Ventilasjon og klima for nytt våningshus

Maling Innvendig og utvendig maling

Maling av fasader og innvendige overflater

Overflatebehandling av vegger og tak innvendig og utvendig

Gulv Innvendige gulvflater

Gulv i alle etasjer, inkludert stue, soverom, gang og vinterhage

Innvendige gulvflater i våningshus

Betong Fundament og grunnmur

Betongfundament og grunnmur for nytt bygg

Betongarbeider for fundament og grunnmur

Grunnarbeid Grunnarbeider for nybygg

Omfatter riving, miljøsanering og grunnarbeid for nytt våningshus

Grunnarbeid inkludert riving og miljøsanering av eksisterende bygg

VVS Sanitærinstallasjoner

Sanitærinstallasjoner for bad, WC, vaskerom og grovkjøkken

VVS-installasjoner for våningshusets våtrom og kjøkken

Tak Saltak med takvinkel ca 37,5°

Antall: 1

Takvinkel tilpasses eksisterende låve, ca 37,5°

Saltak for våningshus og vinterhage

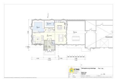
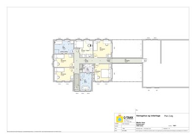
Plantegning

Våningshus 449.9 m²

Etasje 2 178.4 m²

Rom Areal Vinduer Dører
Soverom 201 12.2 m² 1 1
Soverom 202 11.2 m² 1 1
Soverom 203 11.2 m² 1 1
Soverom 204 13.3 m² 1 1
Kontor / Gjest 205 11.2 m² 0 1
WIC 206 4.2 m² 0 1
Bad 207 11.2 m² 0 1
Bad 208 9.8 m² 0 1
Gangbro 209 7.9 m² 0 1
Gang 209 19.4 m² 0 3

Etasje 1 189.6 m²

Rom Areal Vinduer Dører
Vaskerom 101 17.0 m² 3 1
Grovkjøkken 102 9.2 m² 1 0
Stue / Kjøkken 103 69.1 m² 4 2
Vinterhage 104 53.6 m² 4 2
Entre 105 10.1 m² 0 3
WC 106 1.5 m² 0 1

Etasje 3 81.9 m²

Rom Areal Vinduer Dører
Loftsrom 301 21.7 m² 1 1
Loftsrom 302 24.4 m² 1 1
Bod 303 4.5 m² 0 1
Kott 304 22.3 m² 1 0
Kott 304 29.5 m² 0 0

Hendelser

14.04.2026 23/01587-27 Logger for sak BYGG-23/00272
21.01.2026 23/01587-25 DOK-analyse - 100/1/0/0
21.01.2026 23/01587-26 Ferdigattest - riving av våningshus og oppføring av nytt våningshus, samt vinterhage som mellombygg 100/1, Oreveien 61
15.01.2026 23/01587-24 Søknad om ferdigattest - riving og nybygg våningshus - 100/1, Brastad
20.12.2024 23/01587-23 Midlertidig brukstillatelse - våningshus - 100/1 Oreveien 61
18.11.2024 23/01587-21 Oppdatert søknad om midlertidig brukstillatelse for bolighus - 100/1, Brastad
18.11.2024 23/01587-22 Foreløpig svar på søknad om midlertidig brukstillatelse - 100/1
13.11.2024 23/01587-20 Foreløpig svar på søknad om midlertidig brukstillatelse - 100/1
25.10.2024 23/01587-19 Søknad om midlertidig brukstillatelse bolig - 100/1, Museumsveien