Extension Ferdigattest Enebolig

Tilbygg med garasje til enebolig i Øvergrendsvegen 181, Lom

📍 Øvergrendsvegen 181 , 2686 LOM

Nøkkelinfo

Sakstype
Tilbygg
Bygningstype
Enebolig
Bruksareal
153 m²
Boenheter
1
Kommune
Lom
Fylke
Innlandet
Gnr / Bnr
34 / 20
Saksnummer
2025/329
Fase
Ferdigattest

Om byggesaken

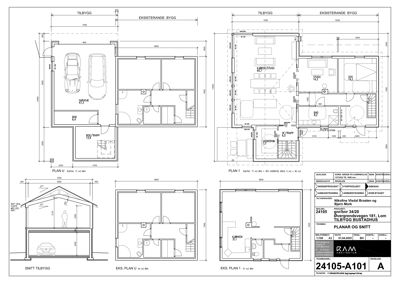
Ny to-etasjes tilbygg på 153 m² BRA til en eksisterende enebolig i Øvergrendsvegen 181, Lom. Underetasjen inneholder en garasje på 47,3 m², bod og bod/trapperom, mens første etasje har kjøkken/stue, stue, soverom, bad og vaskerom. Bygget oppføres i tre med saltak og takvinkel på 27 grader, og har brannskiljekonstruksjon REI30 der avstand til nabobygg er mindre enn 8 meter. Fasader er i tre med kombinasjon av saltak og flate tak, og det er pipe og garasjeport. Tilbygget har 2 trapper, flere vinduer og dører tilpasset eksisterende bygg. Det er etablert ny innkjørsel og snuplass på egen tomt.

Produkter og materialer

Garasjeport Garasjeport

Antall: 1

Garasjeport på nordfasade til garasjerommet på 47,3 m²

Garasjeport til tilbyggets garasje

Vinduer Fasadevindu

🧱 Tre/aluminium ikke spesifisert

Antall: 14

Vinduer i fasader, totalt 14 stk fordelt på stue, kjøkken, soverom

Fasadevindu til tilbygget

VVS Sanitærinstallasjon

Sanitærinstallasjon i tilbygget utført av KL Rørleggerbedrift AS

VVS-installasjoner for bad og vaskerom

Tømrer Tømrerarbeid og montering av trekonstruksjoner

🧱 Tre

Utført av Aktiv Trefiberisolering AS, inkludert montering av takstoler, vegger og limtre

Tømrerarbeid for tilbygget

Gulv Innvendige gulv

Gulv i kjøkken, stue, soverom, bad og vaskerom, materialer ikke spesifisert

Innvendige gulv i tilbygget

Grunnarbeid Tomtearbeid og fundamentering

Grunnarbeider utført av Nordal Maskin AS

Grunnarbeid og fundamentering for tilbygget

Pipe Pipe og ildsted

Antall: 1

Pipe tilknyttet tilbygget, utført av Aktiv Trefiberisolering AS

Pipe for ildsted i tilbygget

Dører Ytterdører og garasjeport

Antall: 6

Ytterdører i tilbygget, inkludert garasjeport på nordfasade

Ytterdører og garasjeport til tilbygget

Elektro Elektriske installasjoner

Elektriske installasjoner for varme og belysning, inkludert elektriske panelovner og varmekabler

Elektroinstallasjoner i tilbygget

Betong Fundament og garasjegulv

Betongarbeid inkludert fundament og garasjegulv

Betongarbeid for tilbygget og garasje

Kjøkken Kjøkkeninnredning

Antall: 1

Kjøkken på 31,1 m² i tilbyggets første etasje

Kjøkken i tilbygget

Isolasjon Trefiberisolasjon

🧱 Trefiber

Isolasjon utført av Aktiv Trefiberisolering AS

Isolasjon av vegger og tak i tilbygget

Tak Saltak og flatt tak

🧱 Taktekking ikke spesifisert, saltak med 27 graders takvinkel

Saltak på deler av tilbygget, flatt tak på andre deler, takvinkel 27 grader

Taktekking for tilbygget med saltak og flate tak

Fasade Trepanel

🧱 Tre

Fasader i tre, tilpasset eksisterende bygg

Utvendig kledning i tre for tilbygget

Trapper Innvendige trapper

Antall: 2

To trapper i tilbygget, en i bod/trapp-rom og en i hoveddel

Innvendige trapper mellom etasjer

Bad Bad med sanitærutstyr

Antall: 1

Bad på 8,2 m² med sanitærinstallasjoner

Bad i tilbyggets første etasje

Plantegning

Tilbygg Bustadhus 153.0 m²

Etasje 0 71.0 m²

Rom Areal Vinduer Dører
Garasje GARASJE 47.3 m² 0 1
Bod BOD 6.4 m² 0 1
Bod/Trapp BOD/TRAPP 13.9 m² 0 1

Etasje 1 82.0 m²

Rom Areal Vinduer Dører
Kjøken/Stugu KJØKEN/STUGU 60.7 m² 2 1
Stugu STUGU 14.3 m² 1 1
Soverom SOV 14.2 m² 1 1
Bad BAD 8.2 m² 0 1
Vaskerom VASKEROM 7.7 m² 0 1

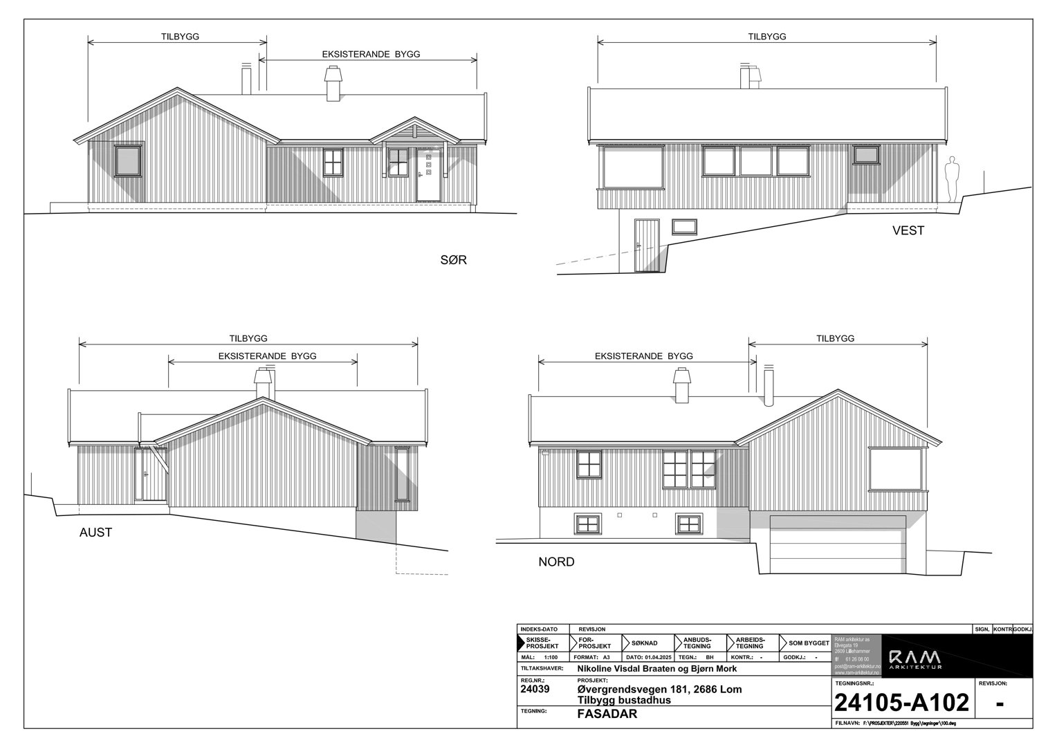
Fasader

Tilbygg bustadhus

Sør
Materiale
Tre
Taktype
Saltak
Vinduer
3
Dører
1
Synlige etasjer
1
Vest
Materiale
Tre
Taktype
Flatt tak
Vinduer
4
Dører
1
Synlige etasjer
1
Øst
Materiale
Tre
Taktype
Flatt tak
Vinduer
1
Dører
1
Synlige etasjer
1
Nord
Materiale
Tre
Taktype
Saltak
Vinduer
6
Dører
0
Synlige etasjer
2

Hendelser

14.04.2026 Ferdigattest
13.04.2026 Dykkar ref.nr. 2025/329 gnr/bnr 34/20 Øvergrendsvegen 181, tilbygg til bustadhus Søknad om ferdigattest
22.04.2025 Løyve til tiltak - Tilbygg bustadhus / garasje
22.04.2025 Søknad om dispensasjon - byggegrense mot veg
15.04.2025 Søknad om dispensasjon frå byggegrense mot veg.
10.04.2025 Søknad om løyve til tiltak
10.04.2025 Stadfesting søknad motteken