Extension Rammetillatelse Enebolig

Hovedombygging og tilbygg på enebolig i Øverslåttveien 104

๐Ÿ“ Øverslåttveien 104 , 9303 SILSAND

Nรธkkelinfo

Sakstype
Tilbygg
Bygningstype
Enebolig
Bruksareal
255 mยฒ
Boenheter
1
Kommune
Senja
Fylke
Troms - Romsa - Tromssa
Gnr / Bnr
235 / 14
Saksnummer
2026/1637
Fase
Rammetillatelse

Om byggesaken

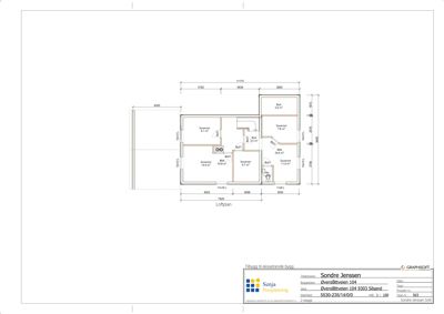
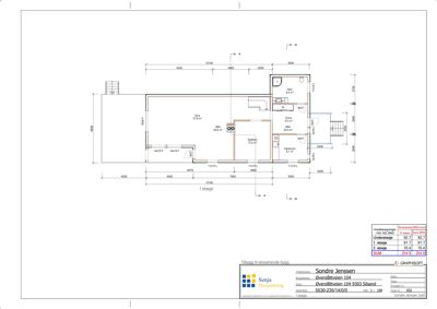
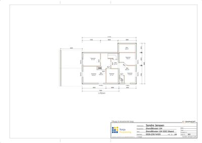
Prosjektet omfatter et tilbygg til en eksisterende enebolig på Øverslåttveien 104 i Silsand. Tilbygget gir økt bruksareal over underetasje, 1. og 2. etasje, med tilpasning til eksisterende bygningsvolum, takform og materialbruk. Underetasjen inneholder lager og garasje på til sammen ca. 65,5 m², 1. etasje utvides med stue, entré, bad, vaskerom og noe kjøkken, mens 2. etasje får flere soverom, boder og WC. Totalt tilbygg har et bruksareal på ca. 43,8 m² i loftsplan, 64,8 m² i 1. etasje og 65,5 m² i underetasje. Bygget oppføres med samme takform og tilpassede fasader, og tiltaket innebærer ingen vesentlige terrenginngrep. Eksisterende adkomst og uteområder videreføres. Prosjektet inkluderer dispensasjon fra LNFR-område og TEK17-krav, med fokus på å oppnå en balansert løsning med hensyn til funksjonalitet, sikkerhet og økonomi.

Produkter og materialer

Ventilasjon Montering av ventilasjonssystem

Montering av komplett ventilasjonssystem og tilhørende komponenter

Ventilasjonsarbeid i tilbygg

Bad Bad og WC innredning

Bad og WC med sanitærutstyr og overflater

Innredning og utstyr til bad og WC i tilbygg

Fasade Kledning og overflater

Fasader tilpasses eksisterende bolig med samme materialvalg og uttrykk

Fasadearbeid for tilbygg

Gulv Innvendige gulvflater

Gulv i stue, soverom, boder og andre rom i tilbygg

Innvendige gulvflater i tilbygg

Vinduer Fasadevindu

Nye vinduer tilpasset fasade og takform i tilbygg

Vinduer for tilbyggets fasader

Kjøkken Kjøkkeninnredning

Noen mindre endringer på kjøkken i 1. etasje

Oppgradering og tilpasning av kjøkken i tilbygg

Grunnarbeid Fundamentering og utvendig VA-arbeid

All grunnarbeid inkl. utvendig VA arbeider 1 m utenfor grunnmur

Fundamentering av tilbygg og tilhørende grunnarbeid

Tømrer Fundament, isolasjon og innvendige overflater

Fundamentarbeid, isolasjon og innredning av innvendige overflater utføres av selvbygger

Innvendige arbeider og fundamentering utført av tiltakshaver

VVS Sanitæranlegg

Sanitæranlegg i tilbygg, inkludert bad, vaskerom og WC

Installasjon av sanitæranlegg i tilbygg

Tømrer Råbygg, tak og taktekking

Oppføring av råbygg, tak og taktekking, innvendig og utvendig tømrerarbeid unntatt fundament, isolasjon og innvendige overflater som selvbygger utfører

Tømrerarbeid for tilbyggets konstruksjon og tak

Garasje Garasje i underetasje

Antall: 25

Garasje på 25 m² i underetasjen av tilbygget

Garasjeareal i tilbyggets underetasje

Dører Ytterdører og innerdører

Dører tilpasset tilbyggets fasade og interiør

Ytter- og innerdører i tilbygg

Hendelser

14.04.2026 Tillatelse til tiltak med ansvarsrett - tilbygg - dispensasjon fra KPA - Øverslåttveien 104 - gbnr. 235/14
31.03.2026 Bekreftelse på mottatt søknad - tilbygg - Øverslåttveien 104 - gbnr. 235/14
18.02.2026 Ett-trinns søknad - endring av bygg - hovedombygging og utvendig tilbygg større enn 50 m² - Øverslåttveien 104 - gbnr. 235/14