Extension UnderBehandling Enebolig

Tilbygg og fasadeendring på enebolig, Øvre Eikervei 154, Drammen

📍 Øvre Eikervei 154 , 3048 DRAMMEN

Nøkkelinfo

Sakstype
Tilbygg
Bygningstype
Enebolig
Bruksareal
10 m²
Boenheter
1
Kommune
Drammen
Fylke
Buskerud
Gnr / Bnr
101 / 14
Saksnummer
26/00409
Fase
Under behandling

Om byggesaken

Ny enebolig med et mindre tilbygg på ca. 10 m² på sørfasaden, utformet som en naturlig videreføring av eksisterende bolig med tilsvarende takform og kledning. Tilbygget inneholder nytt kjøkken med forbindelse til eksisterende stue, og eksisterende kjøkken omdisponeres til spisestue for bedre utnyttelse av utsikt. Fasadeendringene er moderate og tilpasses byggets eksisterende uttrykk. Kjelleretasjen gjennomgår bruksendring fra tilleggsdel til hoveddel uten etablering av ny boenhet. Bygget har saltak og flatt tak, tre som fasademateriale, og pipeløp. Eiendommen ligger innenfor gul støysone, med dokumenterte tilfredsstillende støynivåer og sikkerhet mot naturfare. Tiltaket krever dispensasjon fra byggegrense mot fylkesvei og vassdrag, som er søkt og begrunnet.

Produkter og materialer

Vinduer Fasadevindu i tre

🧱 Tre

Antall: 1

Vinduer tilpasses eksisterende utforming og materialbruk

Nye fasadevinduer til tilbygget og fasadeendring

Dører Ytterdør i tre

🧱 Tre

Antall: 1

Dør til inngangsparti og tilbygget i tre, tilpasset eksisterende stil

Ytterdører for tilbygget og fasadeendring

Gulv Innvendige gulvflater

Oppgradering av gulv i tilbygg og kjeller i henhold til dagens standard

Gulvbelegg og overflater i tilbygg og kjeller

Tømrer Trekonstruksjoner

🧱 Tre

Tømrerarbeid og montering av trekonstruksjoner utføres av tiltakshaver som selvbygger

Tømrerarbeid for tilbygg og fasadeendring

Rekkverk Rekkverk til lysgrav

Rekkverk tilpasset lysgrav ved kjellervinduer

Sikkerhetsrekkverk ved lysgrav for kjeller

Maling Innvendig og utvendig maling

Maling av fasade og innvendige flater i tilbygg og kjeller

Overflatebehandling for fasade og innvendige rom

Fasade Ytterkledning i tre

🧱 Tre

Tilbygget skal ha ytterkledning tilsvarende eksisterende bolig

Trebasert ytterkledning for tilbygget og fasadeendringer

Tak Saltak og flatt tak

Saltak på tilbygget og flatt tak på deler av eksisterende bygg

Taktekking og konstruksjon for tilbygget og fasadeendring

Ventilasjon Lydisolert ventilasjon

Ventilasjonsløsning med balansert anlegg eller lydisolerte ventiler for å sikre tilfredsstillende lydnivå innendørs

Ventilasjon for tilbygg og kjeller i henhold til TEK17

VVS Oppgradering av kjøkken og bad

Oppgradering av VVS-installasjoner i tilbygg og bruksendret kjeller

VVS-installasjoner for nytt kjøkken og bad

Grunnarbeid Fundamentering og grunnmur

Grunnarbeid for tilbygg, tilpasset eksisterende bygningsmasse

Fundamentering og grunnmur for tilbygget

Elektro Elektriske installasjoner

Elektriske installasjoner i tilbygg og bruksendret kjeller

Elektriske anlegg for nytt kjøkken og øvrige rom

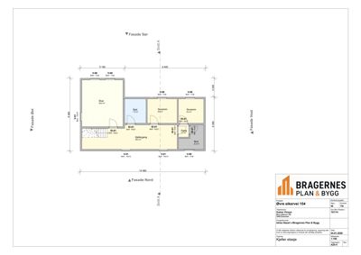
Plantegning

Enebolig 275.4 m²

Etasje 1 154.9 m²

Rom Areal Vinduer Dører
Stue 101 30.6 m² 1 1
Kjøkken 102 12.5 m² 1 1
Soverom 103 6.8 m² 1 1
Soverom 104 8.5 m² 1 1
Soverom 105 9.0 m² 1 1
Gang 106 5.7 m² 0 0
Inngangsparti 107 3.7 m² 0 1
Bad 108 4.9 m² 0 0
Spisestue 109 7.1 m² 1 0
Vask 110 4.0 m² 0 0
STUE STUE 36.0 m² 1 1
SOV SOV 62.0 m² 1 1
KJØK KJØK 10.0 m² 0 1
ARB ARB 41.0 m² 1 1
ENTRE ENTRE 0.0 m² 0 0
BAD BAD 0.0 m² 0 1
WC WC 0.0 m² 0 1
VF VF 0.0 m² 0 1

Etasje 0 120.5 m²

Rom Areal Vinduer Dører
Stue 101 26.0 m² 2 1
Bad 102 7.0 m² 0 1
Soverom 103 9.6 m² 1 1
Soverom 104 8.4 m² 1 1
Kjellergang 105 29.5 m² 2 4
Gang 106 1.7 m² 0 1
Bod 107 6.3 m² 1 1

Hovedbygg 0.0 m²

Etasje 0 0.0 m²

Rom Areal Vinduer Dører
HOBBY HOBBY 0.0 m² 1 1
M.T. M.T. 0.0 m² 1 1
BOD BOD 0.0 m² 2 1
BRENSSEL BRENSSEL 0.0 m² 2 1

Fasader

Enebolig

Nord
Materiale
Tre
Taktype
Saltak
Høyde
2.0 m
Vinduer
5
Dører
1
Synlige etasjer
1
Vest
Materiale
Tre
Taktype
Saltak
Vinduer
1
Dører
1
Synlige etasjer
1
Sør
Materiale
Tre
Taktype
Flatt tak
Høyde
2.0 m
Vinduer
4
Dører
1
Synlige etasjer
1
Øst
Materiale
Tre
Taktype
Saltak
Vinduer
1
Dører
1
Synlige etasjer
1

Hendelser

21.04.2026 Øvre Eikervei 154 Supplering av søknad 101/14
14.04.2026 Øvre Eikervei 154, vi trenger flere opplysninger for å behandle søknaden din
10.04.2026 Øvre Eikervei 154, ber om status i saken
24.03.2026 Øvre Eikervei 154, dispensasjon fra byggegrense - svar på anmodning om uttalelse
19.03.2026 Øvre Eikervei 154, anmodning om uttalelse fra Buskerud fylkeskommune
09.03.2026 Øvre Eikervei 154 Supplering av søknad 101/14
09.01.2026 Øvre Eikervei 154, vi trenger flere opplysninger for å behandle søknaden din
07.01.2026 Øvre Eikervei 154, melding om mottatt søknad
06.01.2026 Øvre Eikervei 154 Søknad om tillatelse i ett trinn 101/14