Extension Rammetillatelse Enebolig

Nytt tilbygg med loft på enebolig i Parkveien 11, Arendal

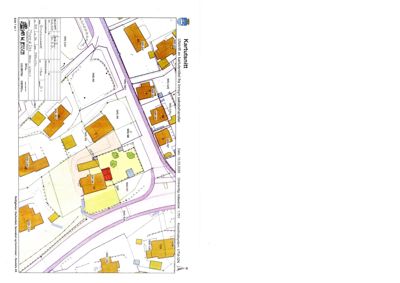
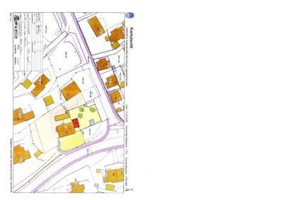
📍 Parkveien 11 , 4838 ARENDAL

Nøkkelinfo

Sakstype
Tilbygg
Bygningstype
Enebolig
Bruksareal
32 m²
Boenheter
1
Kommune
Arendal
Fylke
Agder
Gnr / Bnr
505 / 56
Saksnummer
2025/13725
Fase
Rammetillatelse

Om byggesaken

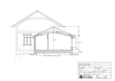
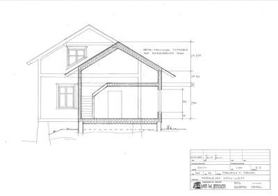
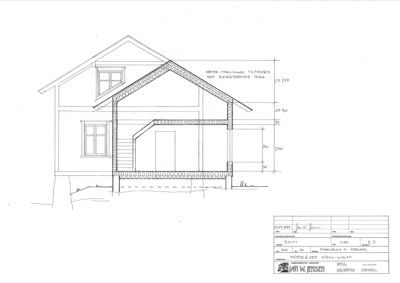
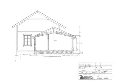
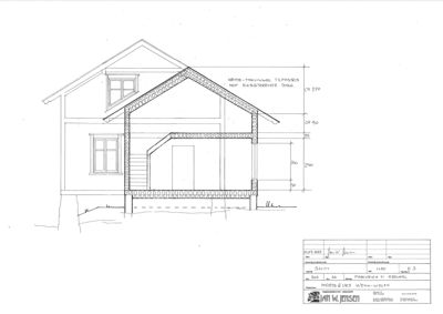
Nytt tilbygg med loft oppføres på enebolig i Parkveien 11, Arendal, som erstatter et eksisterende tilbygg fra 1970-tallet. Tilbygget får et bebygd areal på ca. 32 m² og bruksareal på 27 m², med to etasjer og glassveranda-inspirert vindusdesign. Bygget får saltak med glasert sort takstein, og vegg mot øst bygges som tett vegg for støybeskyttelse. Tilbygget plasseres innenfor byggegrensen og tilpasses eksisterende hus med profilskjærte sperreender og gesimskasser. Prosjektet er tilpasset reguleringsplanens krav om bevaring, men har vært gjenstand for kulturminnefaglige vurderinger og omprosjektering for å ivareta opprinnelig fasadeutforming og kulturminneverdier.

Produkter og materialer

Gulv Innvendige gulv

Innvendige gulv i nytt tilbygg, antatt i henhold til standard boligkrav

Isolasjon Vegger og tak

Isolasjon i vegger og tak for nytt tilbygg i henhold til TEK

Dører Ytterdører og innerdører

Dører til nytt tilbygg, inkludert ytterdør og innerdører

VVS Vann og avløp

Tilknytning til offentlig avløpsanlegg, overvann føres til terreng

VVS-installasjoner for nytt tilbygg, inkludert tilknytning til offentlig avløp

Tømrer Bygging av tilbygg med loft

🧱 Tre

Oppføring av tilbygg i to etasjer med loft, med profilskjærte sperreender og gesimskasser

Tømrerarbeid for nytt tilbygg med loft, tilpasset eksisterende bygg og reguleringsplan

Tak Saltak med glasert takstein

🧱 Glasert sort takstein

Saltak med glasert sort takstein som videreføres fra eksisterende hus

Taktekking med glasert sort takstein i saltakform, tilpasset eksisterende bygg

Ventilasjon Mekanisk eller naturlig ventilasjon

Ventilasjon i nytt tilbygg i henhold til TEK

Elektro Elektrisk installasjon

Elektrisk anlegg for nytt tilbygg med loft

Fasade Trepanel kledning

🧱 Tre

Kledning og vindusomramming som er opprinnelig til huset, med profilskjærte sperreender og store gesimskasser

Trepanel kledning og detaljer tilpasset eksisterende hus og reguleringsplanens bevaringskrav

Vinduer Glassveranda-vinduer

Relativt stor vindusflate med utforming som glassveranda, inkludert to 2-rams vinduer i gavl

Vinduer med stor glassflate for å gi preg av glassveranda, i tråd med kulturminnehensyn

Grunnarbeid Fundamentering på pilarer

🧱 Betong og eternitrør

Fundamentering på pilarer av eternitrør med betong

Grunnarbeid og fundamentering for nytt tilbygg

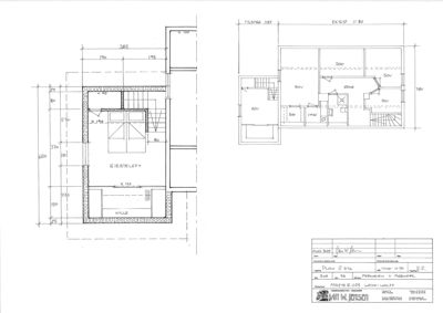
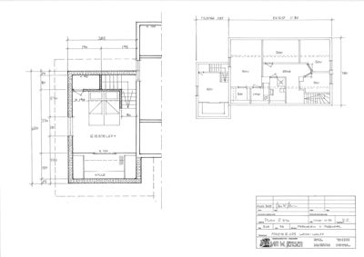
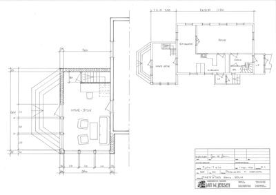
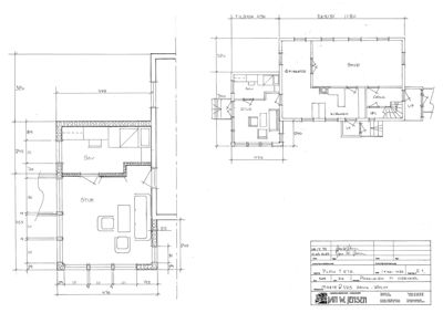
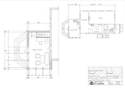
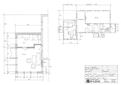
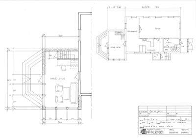
Plantegning

Enebolig 97.3 m²

Etasje 1 54.7 m²

Rom Areal Vinduer Dører
Stue STUE 29.8 m² 3 1
Sov SOV 14.8 m² 2 1
Spisestue SPISESTUE 10.0 m² 3 2
Stue 101 32.0 m² 3 2
Sov 102 16.1 m² 1 1
Kjøkken 103 10.0 m² 0 1
Gang 104 3.5 m² 0 2
WC 105 2.0 m² 0 1
VF 106 0.0 m² 1 1
WC 107 0.0 m² 0 1

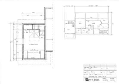
Etasje 2 42.6 m²

Rom Areal Vinduer Dører
Gjesteloft 201 34.2 m² 0 1
Hylle 202 8.4 m² 0 0
Gjesteloft GJESTELOFT 30.4 m² 2 1
Hylle HYLLE 8.1 m² 0 0

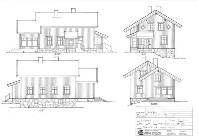
Fasader

Enebolig

Vest
Materiale
Tre
Taktype
Saltak
Vinduer
5
Dører
1
Synlige etasjer
2
Sør
Materiale
Tre
Taktype
Saltak
Vinduer
4
Dører
1
Synlige etasjer
2
Øst
Materiale
Tre
Taktype
Saltak
Vinduer
4
Dører
0
Synlige etasjer
2
Nord
Materiale
Tre
Taktype
Saltak
Vinduer
4
Dører
1
Synlige etasjer
2

Hendelser

13.04.2026 Tillatelse til tiltak - Parkveien 11, rive eksisterende og oppføre nytt tilbygg
13.04.2026 505/56 - BRA/BYA - Parkveien 11
13.04.2026 Fakturagrunnlag
11.03.2026 BYGG-25/00856-14 - 505/56 - BRA/BYA - Parkveien 11
02.03.2026 505/56 - Viser til brev 12.02.2026
12.02.2026 Oversender uttalelse - 505/56/0/0 - Parkveien 11 - rive eksisterende og oppføre nytt tilbygg med loft
10.02.2026 505/56 - Kulturminnefaglig uttalelse til reviderte tegninger - rive eksisterende og oppføre nytt tilbygg med loft
27.01.2026 Ber om uttalelse på reviderte tegninger - 505/56/0/0 - Parkveien 11 - rive eksisterende og oppføre nytt tilbygg med loft
27.01.2026 Foreløpig svar - Parkveien 11 Supplering av søknad 505/56
21.01.2026 Parkveien 11 Supplering av søknad 505/56
31.10.2025 Oversender uttalelse for kommentar mv. - 505/56/0/0 - Parkveien 11 - rive eksisterende og oppføre nytt tilbygg med loft
22.09.2025 505/56 - Uttalelse fra avdeling for kulturarv Agder FK
18.09.2025 Foreløpig tilbakemelding - Parkveien 11 Søknad om tillatelse til tiltak uten ansvarsrett 505/56
18.09.2025 Ber om uttalelse - 505/56/0/0 - Parkveien 11 - rive eksisterende og oppføre nytt tilbygg med loft
20.08.2025 Parkveien 11 Søknad om tillatelse til tiltak uten ansvarsrett 505/56
10.06.2025 Foreløpig svar - 505/56/0/0 - Parkveien 11 - rive eksisterende og oppføre nytt tilbygg med loft
13.05.2025 Parkveien 11, melding om mottatt søknad
12.05.2025 Parkveien 11 Søknad om tillatelse til tiltak uten ansvarsrett 505/56