Extension Ferdigattest Enebolig

Fasadeendring, tilbygg og anneks i Ramsvikveien 13B, Asker

📍 Ramsvikveien 13B , 3482 TOFTE

Nøkkelinfo

Sakstype
Tilbygg
Bygningstype
Enebolig
Bruksareal
40 m²
Boenheter
1
Kommune
Asker
Fylke
Akershus
Gnr / Bnr
338 / 330
Saksnummer
22/1182
Fase
Ferdigattest

Om byggesaken

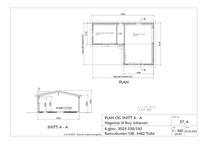
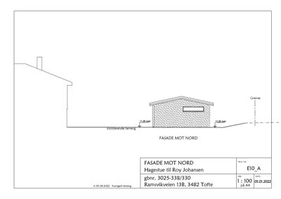
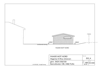
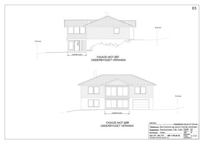
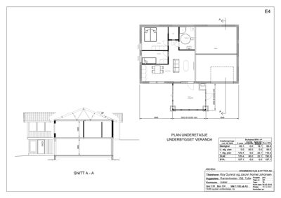
Ny enetasjes hagestue/anneks på 40,5 m² BYA med soverom og stue/barbecue-rom, oppført på betongplate på mark i tilknytning til eksisterende enebolig. Annekset har ikke innlagt vann- og avløp, og baderommet oppfyller ikke krav til hovedfunksjon, slik at det ikke regnes som selvstendig boenhet. Det er også utført innkledning under eksisterende veranda som fungerer som vindfang til hybelleilighet. Bygget har saltak med teglstein og fasader i tre og pusset overflate. Tiltaket er plassert ca. 13 meter fra et nedgravd vassdrag (Ramsvikbekken) og har fått dispensasjon fra byggegrense mot vassdrag. Det er gjennomført nabovarsling og mottatt merknader som er vurdert i saken. Tiltaket er ferdigstilt og det er gitt midlertidig brukstillatelse og ferdigattest.

Produkter og materialer

Elektro Ingen innlagt strøm

Hagestue uten tilkobling til strøm

Ingen elektrisk installasjon i hagestue

Dører Ytterdør og terrassedør

🧱 Tre/glass

Antall: 3

Dører i fasader mot sør (1), øst (1), og hagestue (1)

Ytterdører og terrassedører i hagestue og underbygget veranda

Fasade Trepanel og pusset fasade

🧱 Tre og puss

Fasader i tre og pusset overflate, fasader mot sør og øst i tre, vest og nord pusset

Fasade med trepanel og pusset overflate

VVS Avløpsledning

Antall: 1

Avløpsledning tilknyttet eksisterende sanitærabonnement, godkjent sanitærmelding

Avløpsledning for hagestue uten innlagt vann

Grunnarbeid Terrengjustering og oppfylling

🧱 Massedeponering, jord, plen

Terreng senket og flatet ut, oppfylling mot nabogrense, plen og beplantning

Terrengarbeid for tilpasning av hagestue og veranda

Gulv Innvendig gulv

🧱 Ikke spesifisert

Innvendige gulv i anneks og underbygget veranda

Maling Utvendig maling

🧱 Maling for trepanel og puss

Maling av fasader i tre og puss

Utvendig maling av fasader

Ventilasjon Naturlig ventilasjon

Ingen mekanisk ventilasjon oppgitt, naturlig ventilasjon antatt

Ventilasjon i anneks og veranda

Tak Saltak med teglstein og flatt tak med teglstein

🧱 Teglstein

Saltak på hagestue med teglstein, flatt tak med teglstein på deler av bygget

Tak med teglstein, saltak og flatt tak

Betong Betongplate på mark

🧱 Betong

Antall: 1

Betongplate 40,5 m² som fundament for anneks

Betongplate på mark som fundament for anneks

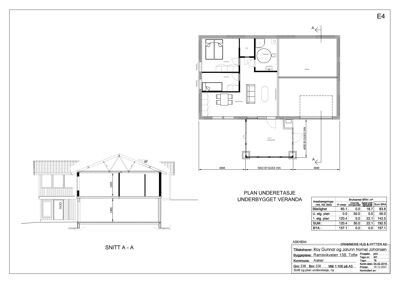
Tømrer Innbygging under veranda

🧱 Tre

Antall: 1

Innbygging av rom under eksisterende veranda som vindfang til hybelleilighet

Innbygging under veranda med nye fasader og vinduer

Vinduer Fasadevindu

🧱 Tre/aluminium

Antall: 7

Vinduer i fasader mot sør (2), vest (2), øst (2), nord (1)

Fasadevinduer i hagestue

Plantegning

Enebolig 50.0 m²

Etasje 0 50.0 m²

Rom Areal Vinduer Dører
Vindfang U01 17.6 m² 0 1
Garasje U02 32.4 m² 0 0

Fasader

Hagestue

Sør
Materiale
Tre
Taktype
Saltak
Takmat.
Tegl
Vinduer
2
Dører
1
Synlige etasjer
1
Vest
Materiale
Pusset
Taktype
Flatt tak
Takmat.
Tegl
Vinduer
2
Dører
0
Synlige etasjer
1
Øst
Materiale
Tre
Taktype
Flatt tak
Takmat.
Tegl
Vinduer
2
Dører
1
Synlige etasjer
1
Nord
Materiale
Pusset
Taktype
Saltak
Vinduer
1
Dører
0
Synlige etasjer
1

Hendelser

21.04.2026 338/330 Ramsvikveien 13B - Ferdigattest - Fasadeendring og tilbygg - Innkledning under veranda og oppføring av anneks på plate på mark
13.04.2026 338/330 Ramsvikveien 13B - Søknad om ferdigattest
02.07.2025 338/330 Ramsvikveien 13B - Ber om forlenget frist for søknad om ferdigattest
15.10.2024 338/330 Ramsvikveien 13B - Midlertidig brukstillatelse - Fasadeendring og tilbygg - Innkledning under veranda og oppføring av anneks
30.09.2024 338/330 Ramsvikveien 13B - Søknad om midlertidig brukstillatelse
22.12.2023 338/330 Ramsvikveien 13 B - Statsforvalterens vedtak i klagesak - kommunens vedtak av 120623 opprettholdes
10.10.2023 338/330 Statsforvalterens melding om saksbehandlingstid i klagesak
05.10.2023 338/330 Ramsvikveien 13 B Oversendelse klagesak oppføring anneks - Omgjøringsvedtak med dispensasjon
08.09.2023 338/330 Etterlyser tilbakemelding - Fasadeendring og tilbygg - Innkledning under veranda og oppføring av anneks på plate
17.08.2023 338/330 Merknader til klage på vedtak - Fasadeendring og tilbygg - Innkledning under veranda og oppføring av anneks
02.08.2023 338/330 Kvittering mottatt klage - Fasadeendring og tilbygg
02.08.2023 338/330 Oversendelse klage for uttalelse - Fasadeendring og tilbygg
04.07.2023 338/330 Klage på endringsvedtak - Fasadeendring og tilbygg - Innkledning under veranda og oppføring av anneks på plate på mark
12.06.2023 338/330 Omgjøringsvedtak med innvilget dispensasjon - Innkledning under veranda og oppføring av anneks på plate på mark
25.05.2023 338/330 Tilleggsmerknader til dispensasjonssøknad - Fasadeendring og tilbygg
16.05.2023 338/330 Ber om status - Fasadeendring og tilbygg - Innkledning under veranda og oppføring av anneks på plate på mark
24.04.2023 338/330 Anmodning etter uttalelse fra Statsforvalteren - Fasadeendring og tilbygg - Anneks på plate på mark
14.04.2023 338/330 Statsforvalterens uttalelse til søknad om dispensasjon - Anneks på plate på mark
31.03.2023 338/330 Komplettering av dispensasjonssøknad - Fasadeendring og tilbygg - Innkledning under veranda og oppføring av anneks
17.03.2023 338/330 Merknad til oversendelse av dispensasjonssøknad til Statsforvalteren - Fasadeendring og tilbygg
13.03.2023 338/330 Anmodning om uttalelse til oppføring av anneks på plate på mark
20.02.2023 338/330 Søknad om dispensasjon - Fasadeendring og tilbygg - Innkledning under veranda og oppføring av anneks på plate på mark
30.01.2023 338/330 Svar på spørsmål om krav til nabovarsling av dispensasjonssøknad
26.01.2023 338/330 Svar på mangelbrev av 220123 - Fasadeendring og tilbygg
22.01.2023 338/330 Ufullstendig søknad om dispensasjon - avstand til vassdrag
09.01.2023 338/330 Bildedokumentasjon - Fasadeendring og tilbygg - Innkledning under veranda og oppføring av anneks på plate på mark
29.12.2022 338/330 Tilsvar til søknad om dispensasjon
29.12.2022 338/330 Søknad om dispensasjon for avstand fra anneks til nedgravd vassdrag
29.12.2022 338/330 Supplerende opplysninger - Fasadeendring og tilbygg
29.12.2022 338/330 Tilleggsopplysninger til klage - Fasadeendring og tilbygg mm.
23.12.2022 338/330 Varsel om omgjøring av vedtak datert 23.11.2022 vedrørende dispensasjon fra avstand til vassdrag
14.12.2022 338/330 Klage på tillatelse til tiltak - Fasadeendring og tilbygg
23.11.2022 338/330 Tillatelse til tiltak i ett trinn til fasadeendring og tilbygg, innkledning under veranda og oppføring av anneks
17.11.2022 338/330 Etterspurt dokumentasjon / informasjon - Fasadeendring og tilbygg - Innkledning under veranda og oppføring av anneks
24.10.2022 338/330 Svar - Forespørsel om utsatt frist - Innkledning under veranda og oppføring av anneks på plate på mark
21.10.2022 338/330 Ber om utsatt frist for komplettering - Fasadeendring og tilbygg - Innkledning under veranda og oppføring av anneks
26.08.2022 338/330 Etterspør flere opplysninger
08.08.2022 338/330 Svar på kompletteringskrav - Fasadeendring og tilbygg
02.07.2022 338/330 Ufullstendig søknad om fasadeendring og tilbygg - Innkledning under veranda og oppføring av anneks på plate på mark
22.04.2022 338/330 Kompletterende dokumentasjon - Fasadeendring og tilbygg - Innkledning under veranda og oppføring av anneks på plate
01.04.2022 338/330 Kvitteringsbrev - Fasadeendring og tilbygg - Innkledning under veranda og oppføring av anneks på plate på mark
31.03.2022 338/330 Søknad om fasadeendring og tilbygg - Innkledning under veranda og oppføring av anneks på plate på mark