Extension Ferdigattest Enebolig

Tilbygg til enebolig på Renen 6A, Bergen

📍 Renen 6A , 5099 BERGEN

Nøkkelinfo

Sakstype
Tilbygg
Bygningstype
Enebolig
Bruksareal
161 m²
Boenheter
1
Kommune
Bergen
Fylke
Vestland
Gnr / Bnr
10 / 224
Saksnummer
BYGG-2023/11260
Fase
Ferdigattest

Om byggesaken

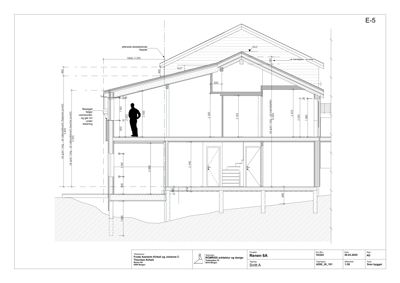
Tilbygg til eksisterende enebolig på Renen 6A i Bergen med totalt 161,1 m² bygningsareal fordelt på to etasjer. Tilbygget inkluderer nye rom som stue, kjøkken, soverom, bad, gangarealer, bod og kjellerstue, samt utvendige elementer som altan, takterrasse og balkonger. Bygget har trekledning og saltak med gesimshøyde rundt 6-6,5 meter og mønehøyde 8-8,2 meter. Det er installert nye vinduer og dører, inkludert terrassedør, og det er gjennomført mindre justeringer i vindusstørrelser og planløsning uten bruksendring. Bygget har pipe og garasjeport på østfasade. Prosjektet er fullført i henhold til godkjente tegninger og med dokumentasjon for forvaltning, drift og vedlikehold overlevert.

Produkter og materialer

Gulv Innvendige gulv

Gulv i tilbyggets rom, sannsynligvis parkett eller fliser

Dører Ytterdører og terrassedør

Antall: 7

Nye ytterdører og terrassedør med mindre justeringer i størrelse

Dører til inngang, terrasser og innvendige rom

Fasade Trekledning

🧱 Tre

Trekledning på fasader sør, nord, vest og øst

Utvendig trekledning på tilbygg og eksisterende fasade

Betong Fundament og dekker

Betongfundament og dekker for tilbygg

Elektro El-installasjoner

Elektriske installasjoner i tilbygg

Trapper Innvendig trapp

Antall: 1

Innvendig trapp mellom etasjer

Tak Saltak

🧱 Taktekking ikke spesifisert

Saltak med gesimshøyde 6-6,5 m og mønehøyde 8-8,2 m

Saltak på tilbygg og eksisterende bygg

Garasjeport Garasjeport

Antall: 1

Garasjeport på østfasade

Balkong Altan og takterrasse

Antall: 3

Altan 13,3 m², takterrasse 12 m² og balkonger på fasader

Utendørs balkong- og terrassearealer tilknyttet tilbygg

Vinduer Fasadevindu

Antall: 11

Mindre justeringer i vindusstørrelser, totalt 11 vinduer på fasader

Nye og justerte fasadevinduer i tilbygg og eksisterende bygg

Bad Sanitærutstyr og fliser

Antall: 2

Bad med sanitærutstyr og flislagte overflater

Mur Grunnmur

Grunnmur for tilbygg

Pipe Murt pipe

🧱 Mur

Antall: 1

Pipe på bygget

Tømrer Trekonstruksjoner

🧱 Tre

Montering av trekonstruksjoner for tilbygg

Tømrerarbeid for reisverk, takstoler og innvendige konstruksjoner

Kjøkken Kjøkkeninnredning

Antall: 1

Kjøkkeninnredning i tilbygg

VVS Ventilasjon og klimainstallasjoner

Ventilasjons- og klimainstallasjoner i tilbygg

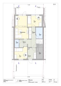
Plantegning

Enebolig 161.1 m²

Etasje 2 88.3 m²

Rom Areal Vinduer Dører
Stue 12 31.5 m² 1 1
Sov 13 8.7 m² 1 1
Kjøkken 101 12.5 m² 0 1
Gang 102 2.3 m² 0 2
Takterrasse 103 12.0 m² 0 0
Altan 104 13.3 m² 0 0

Etasje 1 72.8 m²

Rom Areal Vinduer Dører
Entre 01 5.4 m² 0 1
Bod 02 5.5 m² 0 1
Gang 03 7.6 m² 0 2
Gang 04 4.5 m² 0 1
Bad 05 4.4 m² 0 1
Sov 06 8.9 m² 1 1
Kjellerstue 07 17.3 m² 1 1
Bad 08 2.0 m² 0 1
Sov 09 8.9 m² 1 1

Fasader

Enebolig

Sør
Materiale
Tre
Taktype
Saltak
Høyde
6.0 m
Mønehøyde
8.0 m
Vinduer
0
Dører
0
Balkonger
1
Synlige etasjer
2
Nord
Materiale
Tre
Taktype
Saltak
Høyde
6.0 m
Mønehøyde
8.0 m
Vinduer
0
Dører
0
Synlige etasjer
2

Renen 6A

Vest
Materiale
Tre
Taktype
Saltak
Høyde
6.5 m
Mønehøyde
8.2 m
Vinduer
6
Dører
1
Balkonger
1
Synlige etasjer
2
Øst
Materiale
Tre
Taktype
Saltak
Høyde
6.5 m
Mønehøyde
8.2 m
Vinduer
3
Dører
1
Balkonger
1
Synlige etasjer
2

Hendelser

13.04.2026 Ferdigattest, 10/224, Renen 6A
13.04.2026 Renen 6A Søknad om ferdigattest 10/224
23.04.2024 Igangsettingstillatelse
19.04.2024 Renen 6A Søknad om igangsettingstillatelse 10/224
28.12.2023 Svar på henvendelse - 10/224/0/0 Renen 6A, tilbygg bolig mm
25.09.2023 Purring på svar - 10/224/0/0 Renen 6A, tilbygg bolig mm
07.06.2023 Spørsmål til sak - 10/224/0/0 Renen 6A, tilbygg bolig mm
10.05.2023 Spørsmål til sak - 10/224/0/0 Renen 6A, tilbygg bolig mm
25.04.2023 Orientering- 10/224/0/0 Renen 6A, tilbygg bolig mm
01.03.2023 ubw ordre 20609168
27.02.2023 Renen 6A, vedtak tilbygg bolig mm
24.02.2023 Bekreftelse på mottatt søknad
24.02.2023 Sjekkliste 2
22.02.2023 Søknad - 10/224/0/0 Renen 6A, tilbygg bolig mm