Extension Rammetillatelse Enebolig

Tilbygg, bruksendring og konstruksjonsendring i Røykenveien 189C

📍 Røykenveien 189C , 1386 ASKER

Nøkkelinfo

Sakstype
Tilbygg
Bygningstype
Enebolig
Bruksareal
154 m²
Boenheter
2
Kommune
Asker
Fylke
Akershus
Gnr / Bnr
61 / 140
Saksnummer
25/3559
Fase
Rammetillatelse

Om byggesaken

Prosjektet omfatter en omfattende oppgradering av en eksisterende enebolig med sokkelleilighet i Røykenveien 189C. Det bygges to tilbygg: ett på nordsiden med takterrasse og utvidet entre, og ett underbygg på sørsiden under eksisterende veranda som omgjøres til to soverom i en hybelleilighet. Kjelleretasjen endres fra tilleggsdel til hoveddel med etablering av vaskerom, kjellerstue, soverom og bad. Det gjøres endringer i bærende konstruksjoner for nye dører og vinduer, samt fasadeendringer. En eksisterende støyskjerm oppgraderes og en ny støyskjerm oppføres for å tilfredsstille støykrav. Det etableres også en biloppstillingsplass tilknyttet hybelleiligheten. Totalt areal for tilbygg er ca. 28,6 m² BRA, og hybelleiligheten får et BRA på 51 m². Tiltaket inkluderer også ettergodkjenning av tidligere utførte tiltak og rehabilitering av boligen til dagens standard.

Produkter og materialer

Grunnarbeid Biloppstillingsplass

🧱 Grus eller asfalt

Antall: 1

Ny oppstillingsplass for bil tilknyttet hybelleilighet på eksisterende brukt område

Biloppstillingsplass på egen eiendom

Terrasse Takterrasse

🧱 Tre og membran

Antall: 1

Utvidet og oppgradert takterrasse over tilbygg nord

Utendørs oppholdsareal på takterrasse

Dører Ytterdør og verandadør

🧱 Isolert dør med lydreduksjon

Antall: 3

Ny ytterdør, verandadør i nord, og dør i bærevegg i kjeller

Dører tilpasset fasadeendringer og lydkrav

Tak Saltak og flatt tak

🧱 Tre med taktekking iht. eksisterende og nytt tilbygg

Saltak på eksisterende bolig og tilbygg, flatt tak på veranda og takterrasse

Taktekking for eksisterende og nye bygningsdeler

Grunnarbeid Fundamentering og underbygg

🧱 Betongfundamenter og bjelkelag

Fundament for tilbygg under veranda og nytt tilbygg nord

Grunnarbeid for nye bygningsdeler

Tømrer Innvendige vegger og bærende konstruksjoner

🧱 Tre og stålbjelker

Endringer i bærende konstruksjoner med innsetting av bjelke og nye vegger

Oppgradering og endring av bærende konstruksjoner

VVS Vann, avløp og ventilasjon

Vann- og avløpsinstallasjoner til kjøkken, bad og vaskerom, ventilasjon i hybelleilighet

Tekniske installasjoner for nytt og oppgradert areal

Vinduer Åpningsbare vinduer i fasade øst, nord, sør og vest

🧱 Tolags energiglass med lydreduksjon Rw + Ctr 25-33 dB avhengig av fasade

Antall: 12

Vinduer tilpasset støykrav, større vinduer i østfasade, nye vinduer i kjeller og 1. etasje

Vinduer med lydisolasjon for å oppnå tilfredsstillende innendørs støynivå

Garasjeport Eksisterende garasje

Antall: 1

Eksisterende garasje opprettholdes, med bod for sykkelparkering

Parkering for hovedbolig

Elektro Elektrisk anlegg

Oppgradering av elektrisk anlegg i tilbygg og hybelleilighet

Elektrisk installasjon iht. gjeldende forskrifter

Gulv Innvendige gulv i hybelleilighet og tilbygg

🧱 Parkett, fliser og betong

Oppgradering av gulv i kjeller og tilbygg

Gulvbelegg tilpasset boligstandard

Bad Bad og vaskerom

🧱 Fliser, våtromsmembran, sanitærutstyr

Antall: 3

Bad i kjeller, bad i hybelleilighet og vaskerom oppgradert

Oppgradering av våtrom til dagens standard

Fasade Støyskjerm

🧱 Tett støyskjerm i tre og/eller annet lydisolerende materiale

Antall: 2

Oppgradering av eksisterende støyskjerm og ny støyskjerm på ca. 28,5 m lengde, høyde kote 124,9 m

Støyskjerm for å tilfredsstille støykrav i gul støysone

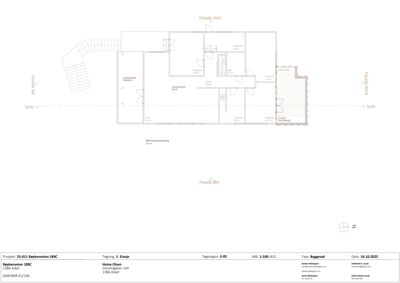
Plantegning

Enebolig 110.0 m²

Etasje 0 0.0 m²

Rom Areal Vinduer Dører
Bod 001 0.0 m² 0 1
Bod 002 0.0 m² 0 1
Badstu 003 0.0 m² 0 1
Hobby 004 0.0 m² 0 1
Entré 005 0.0 m² 0 1
Peisestue 006 0.0 m² 0 1
Kjøkken 007 0.0 m² 0 1
W.C. 008 0.0 m² 0 1
I.U. 009 0.0 m² 0 0
Nedsenket gulv 010 0.0 m² 0 0
I.U. 011 0.0 m² 0 0

Etasje 1 0.0 m²

Rom Areal Vinduer Dører
Veranda 101 0.0 m² 0 1
Stue 102 0.0 m² 0 1
Sov. 103 0.0 m² 0 1
Gang 104 0.0 m² 0 1
Soverom 105 0.0 m² 0 1
Vaskerom 106 0.0 m² 0 1
Soverom 107 0.0 m² 0 1
Bad 108 4.5 m² 0 1
Veranda 109 0.0 m² 0 1
Takterrasse 110 0.0 m² 0 1

Etasje 2 110.0 m²

Rom Areal Vinduer Dører
Stue 201 30.0 m² 2 1
Kjøkken 202 18.0 m² 1 1
Gang 203 10.0 m² 0 2
Bad 204 7.0 m² 0 1
Soverom 205 18.0 m² 1 1
Soverom 206 17.0 m² 1 1
Soverom 207 16.0 m² 1 1
Vaskerom 208 4.0 m² 0 1

Fasader

Enebolig

Øst
Materiale
Tre
Taktype
Saltak
Vinduer
5
Dører
0
Balkonger
1
Synlige etasjer
2
Sør
Materiale
Tre
Taktype
Saltak
Vinduer
2
Dører
1
Balkonger
1
Synlige etasjer
2
Nord
Materiale
Tre
Taktype
Saltak
Høyde
2.6 m
Mønehøyde
4.2 m
Vinduer
3
Dører
1
Synlige etasjer
2
Vest
Materiale
Tre
Taktype
Flatt tak
Vinduer
2
Dører
1
Synlige etasjer
1

Hendelser

21.04.2026 61/140 Røykenveien 189C - Nabomerknad
24.03.2026 61/140 Røykenveien 189C - Svar på spørsmål om klage - e-postkorrespondanse
19.03.2026 61/140 Røykenveien 189C - Ber om status
06.03.2026 61/140 Røykenveien 189C - Nabomerknad og utsendt kvittering på klage - Oppklaring
05.03.2026 61/140 Røykenveien 189C - Tilsvar - Anmodning om uttalelse til klage
05.03.2026 61/140 Røykenveien 189C - Kvittering på mottatt klage, behov for utfyllende informasjon
05.03.2026 61/140 Røykenveien 189C - Anmodning om uttalelse til klage
26.02.2026 61/140 Røykenveien 189C - Klage på nabovarsel
11.11.2025 61/140 Røykenveien 189C - Supplering av søknad
11.11.2025 61/140 Røykenveien 189C - Tillatelse til tiltak i ett trinn for bruksendring, endring i bærende konstruksjoner og tilbygg
17.10.2025 61/140 Røykenveien 189C - Søknad om bruksendring, endring i bærende konstruksjoner, tilbygg