Extension UnderBehandling Enebolig

Endring av enebolig med støttemur i Ruglandveien 10C, Jar

📍 Ruglandveien 10A , 1358 JAR

Nøkkelinfo

Sakstype
Tilbygg
Bygningstype
Enebolig
Bruksareal
120 m²
Boenheter
1
Kommune
Bærum
Fylke
Akershus
Gnr / Bnr
37 / 86
Saksnummer
2023/26341
Fase
Under behandling

Om byggesaken

Prosjektet omfatter endring av en eksisterende rammetillatelse for en enebolig på Ruglandveien 10C, Jar. Endringene inkluderer flytting av hovedbygget 3 meter mot nordøst, ny plassering av garasje i tomtens sørvestlige hjørne, og endring av takform på kort tverrfløy til saltak. Langfasaden mot sydøst får et stort trekantet vindu i overetasjen, som erstatter tre mindre vinduer, noe som gir økt innsyn. Bygget har to etasjer med saltak, trevegger og pipe, og et totalt areal på ca. 120,5 m². Det er én trapp i bygget. Endringene påvirker naboforhold, blant annet med redusert avstand til nabobygning og økt innsyn, noe som har medført nabomerknader. Prosjektet inkluderer også oppføring av støttemur i tilknytning til boligen.

Produkter og materialer

Maling Innvendig og utvendig maling

Maling av fasader og innvendige flater

Overflatebehandling av trepanel og innvendige vegger

Trapper Innvendig trapp

Antall: 1

Innvendig trapp mellom etasjer

Trapp for intern adkomst mellom hoved- og overetasje

Dører Ytterdører og terrassedører

Antall: 6

6 dører i eneboligen, inkludert inngangsdør og terrassedører

Dører for adkomst og utgang til uteområder

Betong Plasstøpte betongkonstruksjoner

Plasstøpte betongkonstruksjoner for fundamenter og støttemur

Betongarbeid for fundamentering og mur

Grunnarbeid Terrengarbeid og fundamentering

Grunnarbeid for ny plassering av bolig og garasje, samt støttemur

Grunnarbeid for fundamentering og terrengtilpasning

VVS Varme- og kuldeinstallasjoner

Varme- og kuldeinstallasjoner i bolig

Oppvarming og klimakontroll i bolig

Vinduer Store fasadevindu, trekantet

Antall: 1

Stort trekantet vindu ca. 4x4 meter i overetasje mot sydøst, erstatter tre mindre vinduer

Store vinduer i overetasje for økt lysinnslipp og utsikt

Tak Saltak

Saltak på hovedbygget og kort tverrfløy

Tak med saltakform på hele bygget, inkludert endring fra tidligere takform på kort fløy

Ventilasjon Ventilasjon- og klimainstallasjoner

Ventilasjons- og klimainstallasjoner i bolig

Luftbehandling og ventilasjon i bolig

Elektro Elektriske installasjoner

Elektriske installasjoner i bolig

El-installasjoner for belysning, strøm og tekniske systemer

VVS Sanitærinstallasjoner

Sanitærinstallasjoner i bolig, inkludert bad og vaskerom

VVS-installasjoner for vann og avløp i bolig

Fasade Trepanel

🧱 Tre

Fasade i tre med horisontalpanel

Yttervegger i trepanel for eneboligen

Gulv Innvendige gulv

Innvendige gulv i bolig, materialer ikke spesifisert

Gulv i stue, kjøkken, soverom og øvrige rom

Mur Støttemur

Oppføring av støttemur i tilknytning til eneboligen

Støttemur for terrengtilpasning ved eneboligen

Vinduer Vanlige fasadevinduer

Antall: 10

Totalt 10 vinduer i eneboligen fordelt på stue, kjøkken, soverom og vaskerom

Standard vinduer i boligens fasader

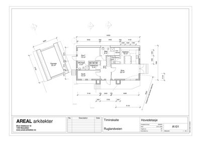
Plantegning

Enebolig 120.5 m²

Etasje 1 120.5 m²

Rom Areal Vinduer Dører
Stue 101 22.0 m² 3 2
Kjøkken 102 16.0 m² 1 1
Bad 103 8.0 m² 0 1
Tekniskrom/bod 104 0.0 m² 0 1
Sov6 105 10.0 m² 1 1
Sov7 106 15.0 m² 1 1
WC/bad 107 5.0 m² 0 1
Vaskerom 108 5.0 m² 3 1

Fasader

Enebolig

Nordøst
Materiale
Tre
Taktype
Saltak
Høyde
3.1 m
Mønehøyde
9.8 m
Vinduer
2
Dører
0
Synlige etasjer
2
Sørøst
Materiale
Tre
Taktype
Saltak
Høyde
3.1 m
Mønehøyde
9.8 m
Vinduer
4
Dører
1
Synlige etasjer
2

Hendelser

15.04.2026 Uttalelse Vann og avløp - Ruglandveien 10 C - enebolig - støttemur
15.04.2026 Intern oversendelse - Ruglandveien 10 C - enebolig - støttemur
31.03.2026 Foreløpig svar på søknad om igangsetting- Ruglandveien 10 C - enebolig - støttemur
31.03.2026 Opphør av ansvarsrett - Ruglandveien 10 C - enebolig - støttemur
05.03.2026 Igangsettingssøknad - Ruglandveien 10 C - enebolig - støttemur
29.01.2026 Søknad om endring av gitt tillatelse - Ruglandveien 10 C - enebolig - støttemur