Extension Ferdigattest Enebolig

Tilbygg med verandaer på enebolig i Ryggaveien 15

📍 Ryggaveien 15 , 7140 OPPHAUG

Nøkkelinfo

Sakstype
Tilbygg
Bygningstype
Enebolig
Bruksareal
44 m²
Boenheter
1
Kommune
Ørland
Fylke
Trøndelag - Trööndelage
Gnr / Bnr
178 / 74
Saksnummer
2025/3257
Fase
Ferdigattest

Om byggesaken

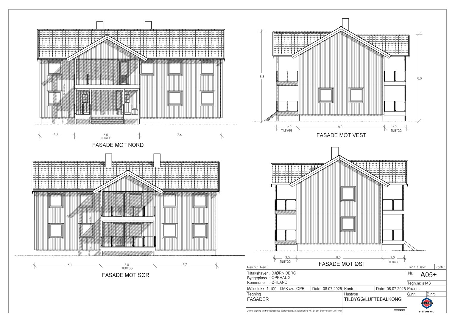
To nye tilbygg med veranda/luftebalkonger i to etasjer bygges på en eksisterende enebolig i Ryggaveien 15. Tilbygget på nordsiden har et BYA på 12 m² og BRA på ca. 24 m², mens tilbygget på sørsiden har et BYA på 10 m² og BRA på ca. 20 m². Begge tilbyggenes takvinkel og gesimshøyde tilpasses eksisterende bygg, med mønehøyder på henholdsvis 8,3 meter og 8 meter. Bygget er i tre med saltak tekket med tegl, og fasadene har flere vinduer og balkonger. Tiltaket er plassert med god avstand til eiendomsgrense og fylkesvei, med dispensasjon gitt for byggegrense mot vei. Prosjektet inkluderer også nødvendige tekniske og ansvarsrettslige tiltak.

Produkter og materialer

Tak Saltak med tegl

🧱 Tegl

Antall: 2

Saltak med teglstein, mønehøyde 8 og 8,3 meter, tilpasset eksisterende bygg

Taktekking for tilbyggenes saltak med teglstein

Vinduer Fasadevindu

🧱 Tre/annet ikke spesifisert

Antall: 4

Vinduer i tilbyggenes fasader, tilpasset eksisterende bygg

Nye fasadevinduer i tilbyggenes vegger

Maling Utvendig treverk

🧱 Maling

Maling av trefasader på tilbygget for å matche eksisterende bygg

Overflatebehandling av trefasader på tilbygget

Grunnarbeid Fundamentering

Grunnarbeid for tilbygg, ikke i konflikt med vann- og avløpsledninger

Grunnarbeid og fundamentering for tilbygg

Tømrer Bygningskonstruksjon

🧱 Tre

Tømrerarbeid for oppføring av tilbygg og verandaer, tiltaksklasse 1

Tømrerarbeid for bygging av tilbygg og verandaer

Fasade Veranda/luftebalkong

🧱 Tre

Antall: 2

Verandaer i to etasjer som tilbygg på nordsiden og sørsiden, tilpasset eksisterende bygg med samme takvinkel og gesimshøyde

To verandaer/luftebalkonger som tilbygg til enebolig, med tilpasning til eksisterende fasade og tak

Dører Balkongdør/ytterdør

🧱 Tre/annet ikke spesifisert

Antall: 4

Dører til veranda/luftebalkong og eventuelle ytterdører i tilbygget

Dører til veranda og utvendig bruk i tilbygget

Fasader

Enebolig

Nord
Materiale
Tre
Taktype
Saltak
Takmat.
Tegl
Høyde
6.0 m
Mønehøyde
8.3 m
Vinduer
5
Dører
2
Balkonger
1
Synlige etasjer
2
Sør
Materiale
Tre
Taktype
Saltak
Takmat.
Tegl
Høyde
6.0 m
Mønehøyde
8.3 m
Vinduer
5
Dører
2
Balkonger
1
Synlige etasjer
2
Vest
Materiale
Tre
Taktype
Saltak
Takmat.
Tegl
Høyde
6.0 m
Mønehøyde
8.3 m
Vinduer
2
Dører
0
Balkonger
2
Synlige etasjer
2
Øst
Materiale
Tre
Taktype
Saltak
Takmat.
Tegl
Høyde
6.0 m
Mønehøyde
8.3 m
Vinduer
2
Dører
0
Balkonger
2
Synlige etasjer
2

Hendelser

22.04.2026 Ryggaveien 15 Søknad om ferdigattest 178/74
08.11.2025 Tillatelse til tiltak - Gnr 178 bnr 74 - Ryggaveien 15 - Tilbygg til våningshus
06.11.2025 Fakturagrunnlag - Gnr 178 bnr 74 - Ryggaveien 15 - Tilbygg til våningshus
21.08.2025 Bekrefter mottak av søknad om oppføring av verandaer som tilbygg til bolig på gnr. 178 bnr. 74 - Sak fordelt til saksbehandler
21.08.2025 Supplering av søknad 178/74 - Ryggaveien 15
18.08.2025 Søknad om tillatelse i ett trinn 178/74 - Ryggaveien 15