Extension Igangsettingstillatelse Enebolig

Tilbygg til enebolig i Sandbakkveien 3, Rognan

📍 Sandbakkveien 3 , 8250 ROGNAN

Nøkkelinfo

Sakstype
Tilbygg
Bygningstype
Enebolig
Bruksareal
23 m²
Boenheter
1
Kommune
Saltdal
Fylke
Nordland - Nordlánnda
Gnr / Bnr
43 / 436
Saksnummer
2026/10979
Fase
Igangsettingstillatelse

Om byggesaken

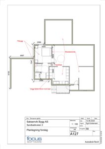
Ny enetasjes tilbygg på ca. 23 m² bruksareal og 8,2 m² bebygd areal til eksisterende enebolig i Sandbakkveien 3, Rognan. Tilbygget oppføres i samme stil som eksisterende bolig, og eksisterende carport rives og bygges opp igjen i opprinnelig størrelse. Tilbygget medfører en økning i utnyttelsesgrad til 23,5 %, med dispensasjon til 25 % fra gjeldende reguleringsplan. Prosjektet inkluderer endring av fasade og planløsning, med blant annet flytting av vegg 60 cm mot bad. Bygget har flere rom som stue, gang, kjøkken, bad, toalett, vaskerom, sovegang og soverom, med totalt 46,5 m² areal i en etasje.

Produkter og materialer

Tak Taktekking for tilbygg

Antall: 1

Tak uten takterrasse, tilpasset eksisterende bygg

Taktekking for tilbygg

Gulv Gulvbelegg

Gulv i tilbygg og tilknyttede rom, type ikke spesifisert

Gulvbelegg i tilbygg

VVS Sanitærinstallasjon

Sanitærinstallasjon for bad, toalett og vaskerom i tilbygg

VVS-installasjon i tilbygg

Vinduer Fasadevindu

Antall: 1

1 vindu i soverom i tilbygg

Nye fasadevinduer i tilbygg

Dører Innvendige dører

Antall: 10

10 dører i tilbygg og eksisterende bolig (inkl. stue, gang, kjøkken, bad, toalett, vaskerom, sovegang, soverom)

Innvendige dører i tilbygg og tilknyttede rom

Tømrer Tilbygg konstruksjon

Tilbygg på 23 m² bruksareal, inkludert veggflytting 60 cm mot bad

Tømrerarbeid for oppføring av tilbygg og riving/oppbygging av carport

Grunnarbeid Gravearbeid på tomt

Gravearbeid for fundamentering av tilbygg

Grunnarbeid for tilbygg

Fasade Tilbygg fasade i samme stil som eksisterende

Antall: 1

Tilbygg i en etasje, tilpasset eksisterende fasade uten takterrasse

Fasadeendring for nytt tilbygg i en etasje

Hendelser

09.04.2026 Oversendelsesbrev
19.03.2026 Sandbakkveien 3. Søknad om tillatelse i ett trinn. Gnr. 43/436