Extension Soeknad Enebolig

Påbygg, tilbygg og ny garasje i Selhaugvegen 18, Florø

📍 Selhaugvegen 18 , 6907 FLORØ

Nøkkelinfo

Sakstype
Tilbygg
Bygningstype
Enebolig
Bruksareal
317 m²
Boenheter
1
Kommune
Kinn
Fylke
Vestland
Gnr / Bnr
26 / 46
Saksnummer
2026/1595
Fase
Søknad

Om byggesaken

Prosjektet omfatter påbygg av en ekstra etasje og tilbygg til en eksisterende enebolig fra 1960-tallet i Selhaugvegen 18, Florø. Eneboligen rehabiliteres og ombygges for å forbedre funksjonalitet og standard, med totalt fem soverom fordelt på kjeller, første og andre etasje. Det planlegges også en ny frittstående garasje på 41 m² med saltak og trepanel. Påbygget øker mønehøyden til ca. 9 meter, noe som krever dispensasjon fra gjeldende kommunedelplan. Fasadeendringer inkluderer større vinduer for bedre dagslys og et mer moderne uttrykk. Totalt areal etter tiltaket blir ca. 317 m² BRA, inkludert garasje. Prosjektet legger vekt på arkitektonisk kvalitet, tilpasning til eksisterende boligområde og bærekraftig oppgradering.

Produkter og materialer

Tømrer Påbygg og tilbygg

🧱 Tre, isolasjon, kledning

Påbygg av ekstra etasje og tilbygg til eksisterende bolig, etterisolering og ny kledning

Bygningsarbeider for påbygg og tilbygg, inkludert isolasjon og kledning

Trapper Innvendig trapp

🧱 Tre

Antall: 1

Trapp i teknisk rom/trapp i kjeller og til påbygg

Innvendig trapp mellom etasjer

Bad Bad og vaskerom

Antall: 2

Nytt bad/vaskerom i påbygg og oppgradering av eksisterende bad

Sanitærinstallasjoner og flislegging på bad og vaskerom

Grunnarbeid Fundamentering og drenering

Grunnarbeid for nytt tilbygg og garasje, inkludert fundamentering og drenering

Grunnarbeider for påbygg, tilbygg og garasje

Gulv Innvendige gulv

Oppgradering av gulv i bolig, ikke spesifisert materiale

Innvendige gulv i påbygg og tilbygg

Fasade Vinduer

🧱 Tre/Aluminium

Antall: 6

Større vinduer i fasaden for bedre dagslys og moderne uttrykk

Nye større fasadevinduer for oppgradering og bedre lysforhold

Tak Saltak

🧱 Tegl

Takheving med saltak, mønehøyde ca. 9 meter

Nytt tak på påbygg med saltak og tegl takmateriale

Elektro Elektrisk anlegg

Oppgradering av elektrisk anlegg i bolig og garasje

Elektriske installasjoner i påbygg, tilbygg og garasje

Terrasse Terrasse

Antall: 1

Eksisterende terrasse på 36,8 m² opprettholdes

Terrasse tilknyttet bolig

Maling Utvendig og innvendig maling

Maling av ny kledning og innvendige flater

Overflatebehandling av fasade og innvendige vegger

VVS Sanitær og varme

Oppgradering av VVS-anlegg i forbindelse med påbygg og tilbygg

VVS-installasjoner for nytt bad, kjøkken og vaskerom

Garasje Frittstående garasje

🧱 Tre, saltak med tegl

Antall: 1

Garasje på 41,2 m² med saltak, trepanel, garasjeport

Ny frittstående garasje med saltak og trepanel

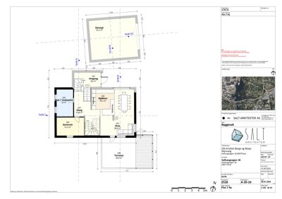
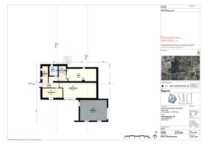
Plantegning

Enebolig 202.4 m²

Etasje 0 81.9 m²

Rom Areal Vinduer Dører
Soverom 001 8.0 m² 1 1
Kjellerstue 002 21.9 m² 2 1
Bod 003 15.0 m² 0 1
Teknisk/trapp 004 4.7 m² 0 1
Bad 005 3.4 m² 0 1
Kjøkken 006 3.9 m² 1 1
Gang 007 5.6 m² 0 2
Garasje 008 23.4 m² 2 1
Garasje Garasje 41.2 m² 0 0

Etasje 1 120.5 m²

Rom Areal Vinduer Dører
Inngang 101 8.6 m² 0 1
Kjøkken 102 10.1 m² 0 0
Bad / Vaskerom 104 10.0 m² 0 1
Soverom 105 11.3 m² 1 1
Gang 107 15.8 m² 0 2
Terrasse 108 36.8 m² 0 1
Stue 101 28.6 m² 1 1

Fasader

Garasje

Nord
Materiale
Tre
Taktype
Saltak
Høyde
5.1 m
Mønehøyde
14.0 m
Vinduer
2
Dører
1
Synlige etasjer
1
Vest
Materiale
Tre
Taktype
Saltak
Høyde
5.1 m
Mønehøyde
14.0 m
Vinduer
0
Dører
0
Synlige etasjer
1
Øst
Materiale
Tre
Taktype
Saltak
Takmat.
Tegl
Høyde
4.9 m
Mønehøyde
6.6 m
Vinduer
0
Dører
1
Synlige etasjer
1
Sør
Materiale
Tre
Taktype
Flatt tak
Takmat.
Tegl
Høyde
4.9 m
Mønehøyde
8.2 m
Vinduer
0
Dører
1
Synlige etasjer
1

Hendelser

21.04.2026 Trekking av søknad søknad - gbnr 26/46
13.04.2026 Svar på mellombels tilbakemelding gbnr 26/46
08.04.2026 Mellombels tilbakemelding på søknad om påbygg, tilbygg, fasadeendring og ny garasje
02.02.2026 Søknad om rammetillatelse gbnr 26/46