Extension Rammetillatelse Enebolig

Tilbygg i to etasjer på enebolig, Seljordvegen 1214

📍 Seljordvegen 1214 , 3803 BØ I TELEMARK

Nøkkelinfo

Sakstype
Tilbygg
Bygningstype
Enebolig
Bruksareal
37 m²
Boenheter
1
Kommune
Midt-Telemark
Fylke
Telemark
Gnr / Bnr
28 / 22
Saksnummer
26/7187
Fase
Rammetillatelse

Om byggesaken

Tilbygg til en eksisterende enebolig på Seljordvegen 1214 består av et to-etasjes påbygg mot nord på 26,6 m² og et ett-etasjes påbygg mot vest på 11,5 m², inkludert en bod og overbygg over inngang. Bygget har tømmerkledning malt hvit og svart takstein med saltak. Tilbygget øker boligens totale BYA fra 55,8 m² til 95 m² og total BRA til 164 m². Innvendig romfordeling inkluderer blant annet stue, kjøkken, bad, toalett, vaskerom og flere soverom. Bygget har totalt 2 trapper og flere vinduer fordelt på fasadene. Tiltaket er innenfor regulert areal og krever ferdigattest før bruk.

Produkter og materialer

Dører Ytterdører og innerdører

Antall: 11

Ytterdører og innerdører i tilbygg og eksisterende bygg

Elektro Elektrisk anlegg

Elektrisk anlegg for belysning og strøm i tilbygg

Fasade Tømmerkledning

🧱 tømmer, malt hvit

Kledning er tømmermann malt hvit

Utvendig kledning av tømmer malt hvit på tilbygg

Isolasjon Vegger og tak

Isolasjon i vegger og tak for energieffektivitet og komfort

Trapper Innvendige trapper

Antall: 2

To innvendige trapper i eneboligen inkludert tilbygg

Betong Fundament og støttemurer

Betongfundament for tilbyggets konstruksjon

Vinduer Fasadevindu

Antall: 10

Totalt 10 fasadevinduer fordelt på tilbyggets fasader

Gulv Innvendige gulv

Innvendige gulv i tilbygg og eksisterende bolig

Maling Innvendig og utvendig maling

Maling av innvendige og utvendige flater i tilbygg

VVS Sanitærinstallasjoner

VVS-installasjoner for bad, toalett og vaskerom i tilbygg

Tak Saltak med takstein

🧱 takstein, svart

Takstein er svart, saltak

Saltak med svart takstein på tilbygg

Grunnarbeid Fundamentering og grunnarbeid

Tiltaket må ivareta sikkerhet mot flom (200 års flomnivå) iht. TEK17 kapittel 7

Grunnarbeid med nødvendige sikringstiltak mot flom og naturpåkjenninger

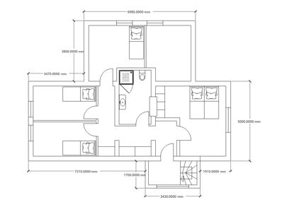
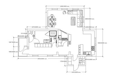
Plantegning

Enebolig 69.8 m²

Etasje 1 69.8 m²

Rom Areal Vinduer Dører
Stue 101 35.2 m² 2 1
Kjøkken 102 12.5 m² 0 1
Gang 103 4.8 m² 0 2
Bad 104 3.2 m² 0 1
Toalett 105 1.5 m² 0 1
Vaskerom 106 2.6 m² 0 1
Påbygg 107 26.6 m² 1 0

Etasje 2 0.0 m²

Rom Areal Vinduer Dører
Soverom 201 0.0 m² 1 1
Soverom 202 0.0 m² 1 1
Soverom 203 0.0 m² 1 1
Gang 204 0.0 m² 0 1
Gang 205 2.4 m² 0 0
Bad 206 6.8 m² 0 1
Gang 207 11.6 m² 0 2
Gang 208 4.5 m² 0 1

Fasader

Hovedbygg

Øst
Taktype
Saltak
Vinduer
4
Dører
0
Synlige etasjer
2

Enebolig

Nord
Taktype
Saltak
Vinduer
5
Dører
0
Synlige etasjer
2

Hendelser

21.04.2026 Arealer
21.04.2026 Tillatelse til tiltak - 28/22 - Seljordvegen 1214 - Tilbygg til våningshus
16.04.2026 Arealer i tekst
16.04.2026 Plantegninger med arealer
08.04.2026 Søknad om tillatelse til tiltak uten ansvarsrett på gbnr 28/22