Extension UnderBehandling Enebolig

Tilbygg av soverom på enebolig, Siris Myr 3, Arendal

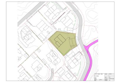
📍 Siris myr 3 , 4823 NEDENES

Nøkkelinfo

Sakstype
Tilbygg
Bygningstype
Enebolig
Bruksareal
15 m²
Boenheter
1
Kommune
Arendal
Fylke
Agder
Gnr / Bnr
431 / 136
Saksnummer
2025/14266
Fase
Under behandling

Om byggesaken

Ny tilbygg på under 15 m² som skal fungere som et ekstra soverom til en eksisterende enebolig på Siris Myr 3 i Arendal. Tilbygget bygges i én etasje, lavere enn eksisterende bygg, med plassering inntil eksisterende bolig. Prosjektet krever dispensasjon fra regulert byggegrense i reguleringsplanen, og det er behov for avstandserklæring fra naboer som ligger nærmere enn 4 meter. Tilbygget vil øke boligarealet og gi bedre romforhold for familien på fem personer. Det er gjennomført nabovarsling, og tiltaket er planlagt med hensyn til reguleringsplanens krav og estetikk.

Produkter og materialer

Grunnarbeid Fundamentering for tilbygg

🧱 betongfundament

fundament for tilbygg, tilpasset eksisterende grunnforhold

Grunnarbeid og fundamentering for tilbyggets bærekonstruksjon

Vinduer Fasadevindu til soverom

🧱 3-lags energiglass

Antall: 1

vindu til soverom i tilbygget, energiglass for isolasjon

Ett vindu til soverommet i tilbygget for dagslys og ventilasjon

Tømrer Bærekonstruksjon og reisverk

🧱 tre

reisverk for tilbyggets vegger og tak

Tømrerarbeid for oppføring av tilbyggets bærende konstruksjon

Elektro Elektrisk anlegg i tilbygg

belysning, stikkontakter og eventuelle brytere i tilbygg

Elektrisk installasjon for belysning og strøm i tilbygget

Fasade Tilbygg yttervegger

🧱 trepanel eller tilsvarende kledning

tilbygg på inntil 15 m², lavere enn eksisterende bygg, tilpasset eksisterende fasade

Yttervegger for tilbygg som skal harmonere med eksisterende boligfasade

Dører Innvendig dør til soverom

🧱 tre eller tilsvarende

Antall: 1

standard innvendig dør til soverom

Dør mellom eksisterende bolig og tilbygg for soverom

Isolasjon Vegger og tak isolasjon

🧱 mineralull eller tilsvarende

isolasjon for vegger og tak i tilbygget for energibesparelse

Isolasjon for å sikre god varmeisolasjon i tilbygget

Gulv Gulv i soveromstilbygg

🧱 parkett eller laminat

standard gulvbelegg for soverom

Gulvbelegg i tilbygget til soverommet

Tak Saltak tilbygg

🧱 takstein eller tilsvarende

saltak, lavere enn eksisterende bygg, tilpasset eksisterende tak

Tak for tilbygg med saltak som matcher eksisterende bolig

Maling Innvendig og utvendig maling

🧱 maling og grunning

maling av vegger, tak og utvendig kledning

Overflatebehandling av tilbygg både innvendig og utvendig

Plantegning

Enebolig 110.0 m²

Etasje 1 68.5 m²

Rom Areal Vinduer Dører
Stue 101 37.3 m² 2 1
Gang 102 11.6 m² 0 3
Kjøkken 103 25.0 m² 1 1
Bad/Vask 104 10.3 m² 0 1
Garderobe 105 3.0 m² 0 1
Bod 106 13.0 m² 0 1
V.F. 107 3.3 m² 0 1
Sov 108 11.2 m² 1 1

Etasje 2 41.5 m²

Rom Areal Vinduer Dører
Stue 201 23.6 m² 2 1
Gang 202 4.5 m² 0 3
Kjøkken 203 10.8 m² 1 1
Bad/Vaskerom 204 2.6 m² 0 1
Garderobestue 205 0.4 m² 0 1

Etasje 0 0.0 m²

Rom Areal Vinduer Dører
Kjeller 001 0.0 m² 0 0
Bad/Vask 002 0.0 m² 0 1
Garderobe 003 0.0 m² 0 1
Bod 004 0.0 m² 0 1
Gang 005 0.0 m² 0 0
Stue 006 0.0 m² 1 0
V.F. 007 0.0 m² 0 1

Fasader

Enebolig

Nord
Taktype
Saltak
Høyde
3.0 m
Vinduer
5
Dører
1
Synlige etasjer
2
Ukjent
Taktype
Saltak
Vinduer
6
Dører
1
Synlige etasjer
2

Hendelser

14.04.2026 431/136/0/0 - Siris myr 3 - tilbygg - soverom - Mangelbrev
27.02.2026 431/136 - Søknad om dispensasjon
16.02.2026 431/136/0/0 - Siris myr 3 - tilbygg - mangelbrev
02.02.2026 431/136 - Svar på mangelbrev
30.01.2026 431/136/0/0 - Siris myr 3 - tilbygg - Mangelbrev
22.12.2025 431/136 - Søknad om tillatelse til tiltak - Tilbygg
22.10.2025 Svar på henvendelse - 431/136 - Purring - Ny forespørsel om tillatelse til tilbygg
21.10.2025 431/136 - Purring - Ny forespørsel om tillatelse til tilbygg
08.09.2025 431/136 - Forespørsel om tillatelse til tilbygg av soverom
20.05.2025 Tilbygg Siris Myr 3
14.05.2025 431/136 - Forespørsel om tillatelse til tilbygg av soverom