Extension Soeknad Enebolig

Tilbygg og veranda på enebolig i Hagavegen 2, Årdalstangen

📍 Skarpholvegen 7B , 2319 HAMAR

Nøkkelinfo

Sakstype
Tilbygg
Bygningstype
Enebolig
Bruksareal
25 m²
Boenheter
1
Kommune
Årdal
Fylke
Vestland
Gnr / Bnr
6 / 144
Saksnummer
2026/443
Fase
Søknad

Om byggesaken

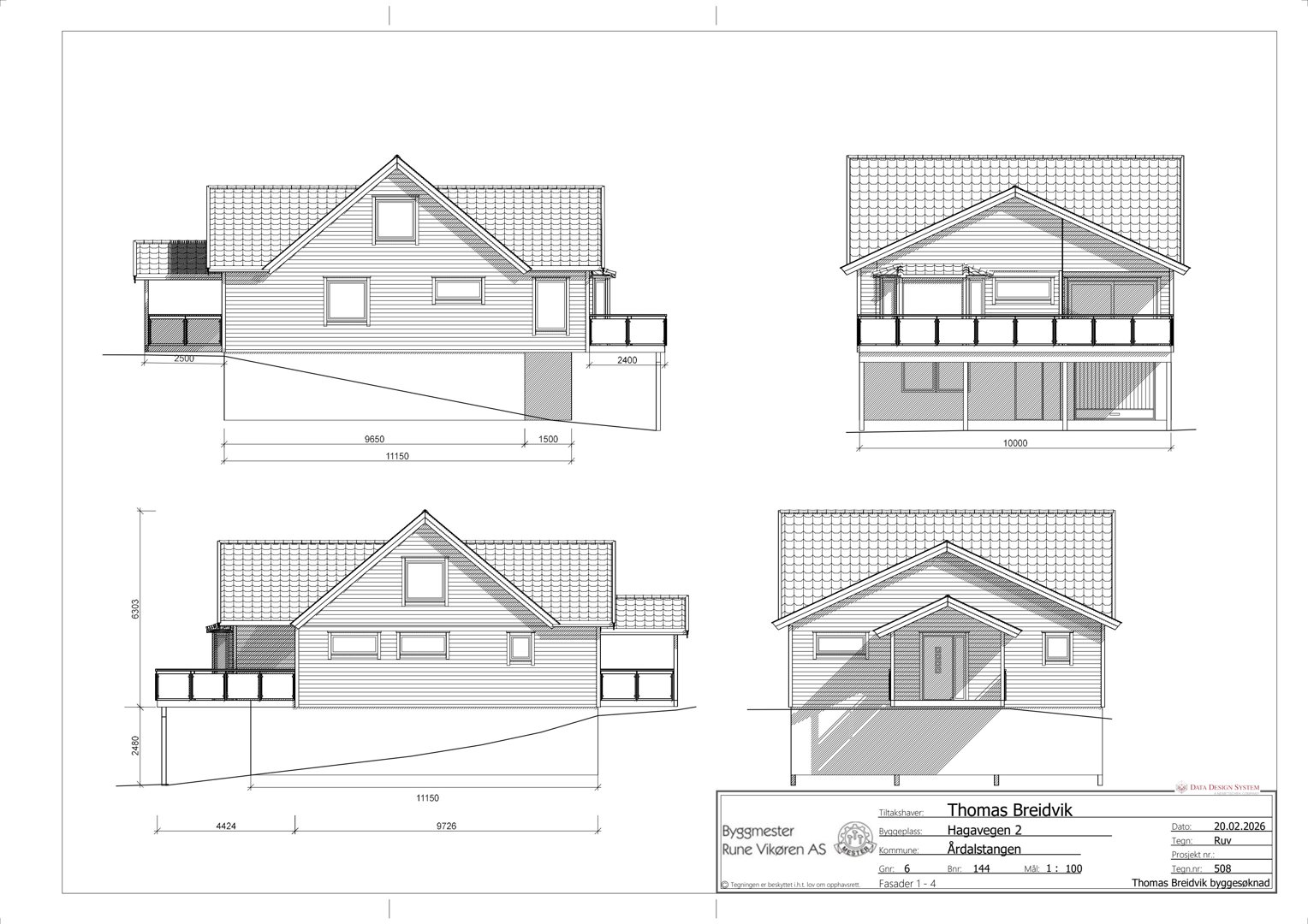
Ny utvidelse av balkong og tilbygg på 25 m² på enebolig i Hagavegen 2, Årdalstangen. Tiltaket inkluderer utviding av balkong langs sørvestfasaden mot fylkesvei 53, med etablering av søyler for balkongen. Alle eksisterende vinduer skiftes ut og enkelte flyttes, med nye vinduer av høy lydisolerende kvalitet for å redusere trafikkstøy. Fasaden endres fra stående til liggende kledning. Bygget beholder sin hovedform, og tiltaket vurderes som moderate fasadeendringer som tilpasses eksisterende bygg. Det er gitt dispensasjon fra byggegrense mot fylkesvei 53 med minimum 9 meters avstand til senterlinje. Tiltaket medfører ingen endring i vann- og avløpsløsninger, og det er ikke behov for grunnundersøkelser for kvikkleire.

Produkter og materialer

Grunnarbeid Fundamentering for balkongsøyler

Lite inngrep uten terrengpåvirkning eller masseuttak, punktlast for søyler vurdert som liten

Fundamentering for balkongsøyler uten behov for grunnundersøkelser for kvikkleire

Balkong Utvidet balkong med søyler

🧱 Tre og betong (søyler)

Utvidelse av balkong på 25 m² med etablering av søyler, balkong strekker seg langs hele sørvestfasaden

Ny og utvidet balkong som fungerer som støyskjerming mot fylkesvei 53

Maling Utendørs maling av kledning

Maling av ny liggende kledning og eventuelle reparerte fasadeflater

Tømrer Tilbygg og balkongarbeid

Bygging av tilbygg og balkong i treverk, inkludert endring av fasade og vinduer

Tømrerarbeid for oppføring av tilbygg og balkong, samt fasadeendringer

Vinduer Lydisolerende fasadevindu

Vinduer med høyeste lydisolerende kvalitet mot fylkesvei 53 for reduksjon av trafikkstøy

Utskifting av alle eksisterende vinduer og flytting av enkelte vinduer med lydisolerende egenskaper

Fasade Liggende kledning

🧱 Tre

Endring fra stående til liggende kledning på fasade

Fasadeendring med utskifting av kledning til liggende trepanel

Hendelser

14.04.2026 Delegert vedtak 26/109 - Løyve til fasadeendring og utviding av balkong på gnr 6 bnr 144, Hagavegen 2, 6885 Årdalstangen
13.04.2026 Søknad om endring av gitt løyve – fasadeendring
07.04.2026 Dispensasjon frå byggegrense - fv. 53 - oppføring veranda - gnr. 6 bnr. 144 - Årdal kommune
31.03.2026 Vedrørande dispensasjonssøknad - gnr 6 bnr 144 - Hagavegen 2, 6885 Årdalstangen dispensasjon
30.03.2026 Vedrørande dispensasjonssøknad på gnr 6 bnr 144 - Hagavegen 2, 6885 Årdalstangen dispensasjon
25.03.2026 Søknad om dispensasjon fra avstand til veg dispensasjon
25.03.2026 Tilbakemelding på søknad om dispensasjon frå byggegrense - fv. 53 - oppføring veranda - gnr. 6 bnr. 144 dispensasjon
25.03.2026 Søknad om tillatelse til tiltak - tilbygg byggetillatelse