Extension Rammetillatelse Enebolig

Tilbygg og bruksendring på enebolig i Snippen 34, Berger

📍 Snippen 34 , 3075 BERGER

Nøkkelinfo

Sakstype
Tilbygg
Bygningstype
Enebolig
Bruksareal
100 m²
Boenheter
1
Kommune
Drammen
Fylke
Buskerud
Gnr / Bnr
303 / 33
Saksnummer
26/01703
Fase
Rammetillatelse

Om byggesaken

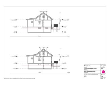
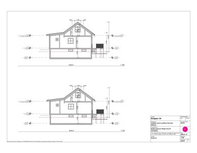
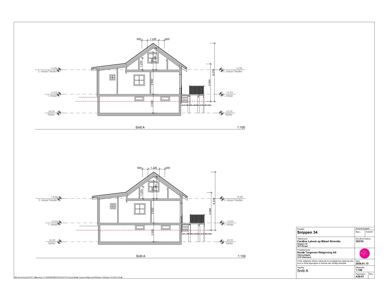
Ny innredning av loftsetasje som bruksendring fra tilleggsdel til hoveddel med to soverom og gang/trapperom. Innlemming av eksisterende veranda i stue ved etterisolering og tilpasning til eksisterende bygningskropp uten økning i fotavtrykk. Tetting av innvendig trapp til kjeller, som kun har utvendig tilgang og ikke er innredet. To mindre tilbygg under 15 m² hver, bestående av takoverbygg ved inngangsparti og trapperom for kjellertrapp. Fasadeendringer med nye og endrede vinduer på loftet. Bygningen er en trehus enebolig med saltak og tegl takmateriale, med totalt ca. 100 m² BYA etter utvidelse. Tiltakene ligger delvis innenfor byggegrense mot vassdrag med dispensasjon innvilget for dette.

Produkter og materialer

Isolasjon Etterisolering av veranda og loft

Etterisolering i veranda og loft for bruksendring til hoveddel

Isolasjon for bedre bokvalitet og energiytelse

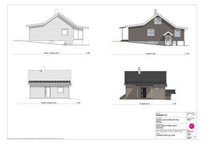
Tak Saltak med teglstein

🧱 Teglstein

Saltak med teglstein som takmateriale på eksisterende og tilbygg

Taktekking for eksisterende og tilbygg med saltak og teglstein

Fasade Trepanel kledning

🧱 Tre

Tilbygg og fasadeendringer med trepanel kledning tilpasset eksisterende bygningskropp

Kledning av tilbygg og fasadeendringer på eksisterende enebolig

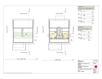
Vinduer Fasadevindu og loftsvindu

Antall: 8

Nye og endrede vinduer på loft og fasader øst, vest, sør og nord, vindusstørrelse ca. 1,2 x 1,1 m, tilfredsstiller TEK17 krav til dagslys og rømningsvei

Vinduer for soverom og fasadeendringer på loft og øvrige fasader

Gulv Etterisolering og gulvtilpasning

Etterisolering og tilpasning av gulv i innlemmet veranda til stue

Isolasjon og gulvarbeid i veranda som innlemmes i stue

Grunnarbeid Terrasse og fundamentering av tilbygg

Fundamentering og grunnarbeid for to mindre tilbygg og terrasse

Grunnarbeid for tilbygg og terrasse

Trapper Innvendig trapp tettes, utvendig trapp til kjeller

Antall: 1

Innvendig trapp til kjeller tettes, kjeller kun tilgjengelig via utvendig trapp

Trapperom for kjellertrapp og tetting av innvendig trapp

Ventilasjon Ventilasjon for innredet loft

Ventilasjon tilpasset innredet loft med soverom

Ventilasjon for nytt oppholdsrom i loftsetasje

Maling Utvendig og innvendig maling

Maling av fasade og innvendige overflater etter tilbygg og bruksendring

Overflatebehandling for fasade og innvendige rom

Dører Ytterdør og terrassedør

Antall: 3

Dører i fasade nord og til terrasse, inkludert dør til trapperom kjeller

Ytterdører og dører til terrasse og trapperom

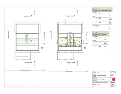
Plantegning

Enebolig 148.8 m²

Etasje 1 64.8 m²

Rom Areal Vinduer Dører
Stue 101 36.0 m² 1 1
Kjøkken 102 9.0 m² 0 1
Soverom 103 12.0 m² 1 1
Bad/WC 104 4.5 m² 0 1
Gang 105 3.3 m² 0 0
Bad 106 8.3 m² 0 1
Vaskerom 107 5.1 m² 0 1
Terrasse 108 10.9 m² 0 0

Etasje 2 18.6 m²

Rom Areal Vinduer Dører
Soverom 1 201 7.6 m² 1 1
Soverom 2 202 8.2 m² 1 1
Gang 203 2.8 m² 0 2
Soverom 1 Soverom 1 7.6 m² 2 1
Soverom 2 Soverom 2 8.2 m² 1 1
Gang Gang 2.8 m² 0 1

Etasje 0 65.4 m²

Rom Areal Vinduer Dører
Ikke innredet 65.4 m² 3 1
Ikke innredet 65.4 m² 2 1
Ikke innredet 65.4 m² 4 1

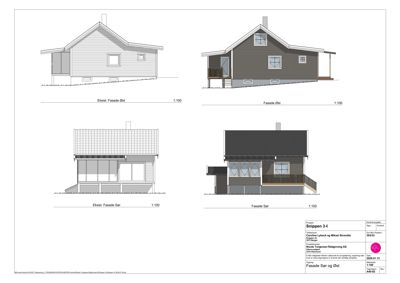
Fasader

Enebolig

Vest
Materiale
Tre
Taktype
Saltak
Vinduer
1
Dører
0
Synlige etasjer
1
Nord
Materiale
Tre
Taktype
Saltak
Takmat.
Tegl
Vinduer
1
Dører
1
Synlige etasjer
1
Øst
Materiale
Tre
Taktype
Saltak
Takmat.
Tegl
Vinduer
3
Dører
0
Synlige etasjer
1
Sør
Materiale
Tre
Taktype
Saltak
Takmat.
Tegl
Vinduer
5
Dører
0
Synlige etasjer
2

Hendelser

14.04.2026 Snippen 34, tillatelse til bruksendring fra tilleggsdel til hoveddel og fasadeendringer, med dispensasjon fra byggegrense mot vassdrag
17.03.2026 Snippen 34, Uttalelse til søknad om tilbygg og bruksendring
16.03.2026 Snippen 34, Uttalelse til dispensasjon fra byggegrense mot vassdrag for tilbygg og bruksendring
19.02.2026 Snippen 34, anmodning om uttalelse
20.01.2026 Snippen 34, melding om mottatt søknad
19.01.2026 Snippen 34 Søknad om tillatelse til tiltak uten ansvarsrett 303/33