Extension Avslatt Enebolig

Tilbygg, påbygg og fasadeendring på enebolig i Sogstikollen 5

📍 Sogstikollen 5 , 1446 DRØBAK

Nøkkelinfo

Sakstype
Tilbygg
Bygningstype
Enebolig
Bruksareal
239 m²
Boenheter
1
Kommune
Frogn
Fylke
Akershus
Gnr / Bnr
71 / 200
Saksnummer
26/10199
Fase
Avslått

Om byggesaken

Ny tilbygg og påbygg på eksisterende enebolig med totalt 239 m² BRA, inkludert et tilbygg i 1. etasje på 13 m² og et påbygg i 2. etasje på 17 m². Bygget får endret takkonstruksjon fra skråtak til flatt tak med takterrasse på 37 m². Fasadeendringer inkluderer ny kledning i malmfuru og hvite murfasader, samt nye vinduer og dører med sorte beslag. Det etableres ny balkong i vest og endringer i terreng og uteområder er minimale uten gravearbeider. Bygget har 2 etasjer pluss kjeller og åpent overbygd uthus, med flere rom som stue, kjøkken, bad, soverom og kontor. Prosjektet inkluderer også riving av deler av eksisterende bygg.

Produkter og materialer

Tak Flatt tak med takterrasse

Antall: 1

Takkonstruksjon endres fra skråtak til flatt tak med takterrasse på 37 m²

Nytt flatt tak med takterrasse over påbygg

Fasade Kledning

🧱 Malmfuru og hvite murfasader

Malmfuru som vil få naturlig gråning, hvite murfasader, sorte beslag på vinduer og dører

Ny kledning på fasader i malmfuru og hvite murflater for å tilpasse nabobebyggelse

Maling Fasademaling

Fargevalg hvit mur og naturlig gråning av malmfuru

Maling og overflatebehandling av fasader

Balkong Balkong i vest

Antall: 1

Ny balkong mellom underetasje og 1. etasje i vestfasade

Ny balkong i vestfasade

Vinduer Fasadevindu

Antall: 14

Vinduer med sorte beslag, ulike størrelser i fasader øst, vest, sør og nord

Nye vinduer i fasader med sort utførelse

Tømrer Bygningskonstruksjon

Utførelse av betong og tømrerarbeider inkludert innvendige mur-, våtroms- og innredningsarbeider

Tømrerarbeid for tilbygg, påbygg og rehabilitering

Bad Våtromsinnredning

Oppgradering av bad i forbindelse med rehabilitering

Bad og våtrom oppgraderes i prosjektet

Grunnarbeid Terrengarbeid

Ingen gravearbeider planlagt, terrenglinjer endres ikke

Terrengarbeid begrenset til tilpasning uten graving

Dører Ytterdører og balkongdører

Antall: 9

Nye dører i fasader, inkludert ny inngangsdør og balkongdør med sort beslag

Nye ytterdører og balkongdører i sort utførelse

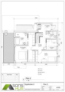
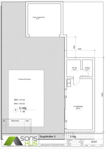
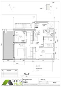
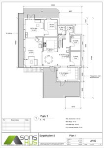
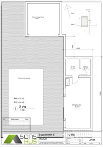
Plantegning

Enebolig 343.0 m²

Etasje 0 66.0 m²

Rom Areal Vinduer Dører
Kjellerstue 01 26.0 m² 0 1
Bod 02 3.0 m² 0 1
Tek 03 5.0 m² 0 0
Kjeller K01 60.4 m² 2 1
Stue 001 0.0 m² 0 0
Kjøkken 002 0.0 m² 0 0
Sov 1 003 0.0 m² 0 0
Sov 2 004 0.0 m² 0 0
Bad 005 0.0 m² 0 0
Entré 006 0.0 m² 0 0

Etasje -1 57.0 m²

Rom Areal Vinduer Dører
Åpent overbygd uthus U01 20.0 m² 0 0
Eksisterende basseng U02 37.0 m² 0 0

Etasje 1 150.0 m²

Rom Areal Vinduer Dører
Ny inngang 10 13.0 m² 0 1
Bod 11 7.0 m² 0 1
Vask 12 7.0 m² 0 1
WC 13 2.0 m² 0 1
Bod 2 14 3.0 m² 0 1
Mellomgang 15 17.0 m² 0 2
Kjøkken 16 19.0 m² 0 1
Stue 17 23.0 m² 2 1
TV stue 18 14.0 m² 0 1
Sov 19 10.0 m² 0 1
Stue 101 33.2 m² 3 2
Sove 102 12.0 m² 1 1
Sove 103 12.0 m² 1 1
Bad 104 2.0 m² 0 1
Gang 105 10.0 m² 0 2
Terrasse 0 0.0 m² 0 0

Etasje 2 70.0 m²

Rom Areal Vinduer Dører
Inngang 21 5.0 m² 0 1
Bad 22 4.0 m² 0 1
Kontor 23 6.0 m² 0 1
Sov 24 13.0 m² 0 1
Hovedsov 25 21.0 m² 0 1
Bad 26 8.0 m² 0 1
Gang 27 9.0 m² 0 0

Fasader

Enebolig

Øst
Materiale
Tre
Taktype
Flatt tak
Høyde
3.8 m
Mønehøyde
6.0 m
Vinduer
2
Dører
1
Synlige etasjer
2
Vest
Materiale
Tre
Taktype
Saltak
Høyde
4.0 m
Mønehøyde
6.0 m
Vinduer
2
Dører
0
Balkonger
1
Synlige etasjer
2
Sør
Materiale
Tre
Taktype
Saltak
Høyde
4.0 m
Mønehøyde
6.0 m
Vinduer
4
Dører
0
Balkonger
1
Synlige etasjer
2
Nord
Materiale
Tre
Taktype
Saltak
Høyde
4.0 m
Mønehøyde
6.0 m
Vinduer
2
Dører
1
Balkonger
1
Synlige etasjer
2
Sørg
Taktype
Valmtak
Vinduer
0
Dører
0
Synlige etasjer
1

Sommerhus

Vest
Taktype
Flatt tak
Vinduer
6
Dører
1
Balkonger
1
Synlige etasjer
3

Hendelser

16.04.2026 26/10199-4 Supplering av søknad - 71/200/0/0 - Sogstikollen 5 - Endring av bygg - Innvendig - Fasade -Bærekonstruksjoner - Tilbygg - Påbygg - Riving av deler av bygg - Enebolig
09.04.2026 26/10199-3 Varsel om avslag og mangelbrev - 71/200/0/0 - Sogstikollen 5 - Endring av bygg - Innvendig - Fasade -Bærekonstruksjoner - Tilbygg - Påbygg - Riving av deler av bygg - Enebolig
10.03.2026 26/10199-1 Søknad om rammetillatelse - 71/200/0/0 - Sogstikollen 5 - Endring av bygg - Innvendig - Fasade -Bærekonstruksjoner - Tilbygg - Påbygg - Riving av deler av bygg - Enebolig