Extension Igangsettingstillatelse Enebolig

Tilbygg, bruksendring og fasadeendring på Solkollen 14, Lillesand

📍 Solkollen 14

Nøkkelinfo

Sakstype
Tilbygg
Bygningstype
Enebolig
Bruksareal
215 m²
Boenheter
1
Kommune
Birkenes
Fylke
Agder
Gnr / Bnr
42 / 373
Saksnummer
2026/488
Fase
Igangsettingstillatelse

Om byggesaken

Ny hagestue som tilbygg på 23,8 m² BYA (21,8 m² BRA) med saltak og trepanel på en eksisterende enebolig på Solkollen 14 i Lillesand. Tilbygget fungerer som en forlengelse av kjøkkenet og har en høyde på 3,66 meter. Det gjennomføres også bruksendring av en bod til hoveddel og fasadeendringer som inkluderer innsetting av nye vinduer, flytting av inngangsdør og nytt takutstikk over inngangspartiet. Eksisterende bolig har et samlet bebygd areal på ca. 215 m² inkludert parkeringsareal. Fasaden er i tre med saltak tegl, og det er flere vinduer og dører i ulike fasader. Prosjektet inkluderer også tilpasning til terreng og naboforhold med godkjent plassering og visuell utforming.

Produkter og materialer

Gulv Innvendig gulvbelegg

Nye gulv i tilbygget og ombygde rom, type ikke spesifisert

Tømrer Bærende konstruksjoner og innvendige vegger

🧱 Tre

Tømrerarbeid for oppføring av tilbygget og ombygging innvendig

Bærende konstruksjoner, vegger og takstoler i tilbygget

Dører Ytterdør og inngangsdør

🧱 Tre/Glass

Antall: 2

Flytting av inngangsdør og ny ytterdør i tilbygget

Dører tilpasset fasadeendring og tilbyggets inngangsparti

Betong Støpt plate på mark

🧱 Betong

Støpt plate for hagestue/tilbygg

Betongplate som gulv i tilbygget

VVS Sanitærinstallasjoner

Nye eller tilpassede VVS-installasjoner i tilbygget og ombygde rom

Tak Saltak med teglstein

🧱 Teglstein

Saltak med teglstein som takmateriale

Nytt saltak på tilbygget og tilpasning til eksisterende tak

Bad Sanitærutstyr og fliser

Oppgradering/ombygging av bad og toalett i forbindelse med bruksendring

Vinduer Fasadevindu

🧱 Tre/Aluminium

Antall: 3

Nye vinduer i fasade øst, vest, sør og nord, totalt 16 vinduer i bolig inkludert tilbygget

Innsetting av nye vinduer i tilbygget og fasadeendring

Elektro Elektriske installasjoner

Elektriske installasjoner i tilbygget og ombygde deler av boligen

Fasade Trepanel

🧱 Tre

Trepanel på fasader, malt eller beiset

Fasadebekledning i tre som tilpasses eksisterende bolig

Trapper Innvendig trapp

Antall: 1

Eksisterende innvendig trapp i boligen, ingen endring spesifisert

Rekkverk Terrasserekkverk

Rekkverk til eventuell terrasse eller uteplass i tilknytning til tilbygget

Grunnarbeid Fundamentering og grunnmur

🧱 Betong

Fundamentering for nytt tilbygg/hagestue med tilpasning til eksisterende grunnmur

Grunnarbeid for tilbygget

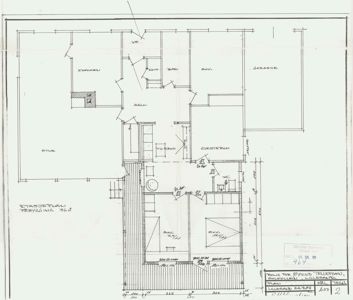
Plantegning

Enebolig 104.0 m²

Etasje 1 104.0 m²

Rom Areal Vinduer Dører
Stue 101 36.0 m² 1 1
Kjøkken 102 12.0 m² 0 1
Hall 103 8.0 m² 0 3
Gjesterom 104 16.0 m² 1 2
Bad 105 6.0 m² 0 1
Toalett 106 3.0 m² 0 1
Bod 107 4.0 m² 1 1
Garasje 108 25.0 m² 1 1
Bad 109 6.3 m² 0 1
WC 110 2.2 m² 0 1
WC 111 2.1 m² 0 1
Gang Ned 112 10.4 m² 0 1
Trapp 113 2.4 m² 0 0
Garasje 114 20.4 m² 1 1
BYA inngang 115 1.8 m² 0 1

Fasader

Enebolig

Øst
Materiale
Tre
Taktype
Saltak
Takmat.
Tegl
Vinduer
3
Dører
1
Synlige etasjer
1
Vest
Materiale
Tre
Taktype
Saltak
Takmat.
Tegl
Vinduer
2
Dører
1
Synlige etasjer
1
Sør
Materiale
Tre
Taktype
Saltak
Takmat.
Tegl
Høyde
4.7 m
Mønehøyde
4.8 m
Vinduer
6
Dører
1
Balkonger
1
Synlige etasjer
1
Nord
Materiale
Tre
Taktype
Saltak
Takmat.
Tegl
Høyde
4.0 m
Vinduer
5
Dører
2
Synlige etasjer
1

Hendelser

16.04.2026 Anmodning om matrikkelføring
16.02.2026 Anmodning om matrikkelføring
16.02.2026 Underretning om matrikkelføring