Extension Rammetillatelse Enebolig

Tilbygg og terrasse på enebolig i Solliveien 45, Stavern

📍 Solliveien 45 , 3292 STAVERN

Nøkkelinfo

Sakstype
Tilbygg
Bygningstype
Enebolig
Bruksareal
44 m²
Boenheter
1
Kommune
Larvik
Fylke
Vestfold
Gnr / Bnr
4044 / 573
Saksnummer
2026/4090
Fase
Rammetillatelse

Om byggesaken

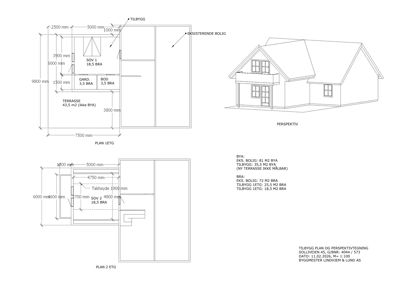
Ny to-etasjes tilbygg på eksisterende enebolig i Solliveien 45, Stavern, med et bebygd areal på 35,5 m². Tilbygget har et bruksareal på 25,5 m² i første etasje og 18,5 m² i andre etasje, og utføres med saltak, mønehøyde 6,262 m og gesimshøyde 3,513 m. Det etableres en terrasse på bakkeplan på 43,5 m² med høyde under 0,5 m, som ikke regnes som søknadspliktig. Terreng oppfylles på et areal på 138 m² med en høyde på 1,0 m, avsluttet med naturlig skråning uten støttemur. Tilbygget har 1 trapp og flere vinduer og dører, og er tilpasset eksisterende bolig både i form og materialvalg. Grunnforhold er vurdert som stabile i geoteknisk rapport.

Produkter og materialer

Tømrer Bygningskonstruksjon

Tilbygg i to etasjer med bærende konstruksjoner tilpasset eksisterende bolig

Tømrerarbeid for oppføring av tilbyggets konstruksjon

Trapper Innvendig trapp

Antall: 1

1 trapp mellom 1. og 2. etasje i tilbygg

Innvendig trapp i tilbygg for etasjeadkomst

Dører Ytterdør

Antall: 2

1 dør på syd-øst fasade, 1 dør i etasjene iht. plantegning

Ytterdører i tilbygg for adkomst og utgang

Betong Plate på mark

Antall: 1

Plate på mark som fundament for tilbygg

Fundamentering av tilbygg med plate på mark

Grunnarbeid Terrengoppfylling

Oppfylling av terreng på 138 m² med høyde 1,0 m, avsluttet med naturlig skråning uten støttemur

Terrengarbeid for oppfylling rundt tilbygg og terrasse

Maling Fasademaling

Material- og fargevalg skal tilpasses bygde og naturgitte omgivelser, unngå sterkt lysreflekterende farger

Maling og overflatebehandling av tilbyggets fasade

Vinduer Fasadevindu

Antall: 4

3 vinduer på syd-øst fasade, 1 vindu på nord-øst fasade

Fasadevinduer i tilbygg, antall og plassering iht. fasadetegninger

Terrasse Terrasse på bakkeplan

Antall: 1

Terrasse på 43,5 m², høyde under 0,5 m over terreng

Terrasse på bakkeplan tilknyttet tilbygg og bolig

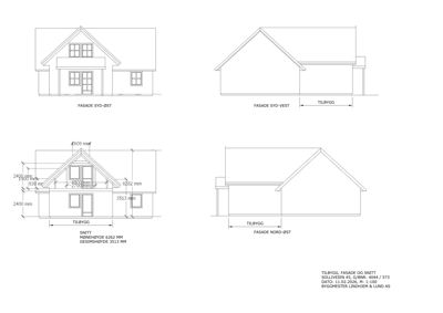
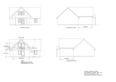
Fasade Saltak

Antall: 1

Saltak med mønehøyde 6,262 m og gesimshøyde 3,513 m

Tak på tilbygg med saltak som matcher eksisterende bolig

Plantegning

Enebolig 44.0 m²

Etasje 1 25.5 m²

Rom Areal Vinduer Dører
SOV 1 101 18.5 m² 1 1
GARD 102 3.5 m² 0 0
BOD 103 3.5 m² 0 0

Etasje 2 18.5 m²

Rom Areal Vinduer Dører
SOV 2 201 18.5 m² 1 1

Fasader

Tilbygg

Syd-Øst
Taktype
Saltak
Høyde
3.5 m
Mønehøyde
6.3 m
Vinduer
3
Dører
1
Balkonger
1
Synlige etasjer
2
Syd-Vest
Taktype
Saltak
Vinduer
0
Dører
0
Synlige etasjer
1
Nord-Øst
Taktype
Saltak
Vinduer
1
Dører
0
Synlige etasjer
1

Hendelser

14.04.2026 Vedtak - Tillatelse til tilbygg, terrasse, oppfylling - Solliveien 45 - gbnr 4044/573
10.04.2026 Teknisk notat - Tilbygg, terrasse, oppfylling - Solliveien 45 - gbnr 4044/573
18.03.2026 Foreløpig svar - Tilbygg, terrasse, oppfylling - Solliveien 45 - gbnr 4044/573
26.02.2026 Søknad om rammetillatelse - Tilbygg, terrasse, oppfylling - Solliveien 45 - gbnr 4044/573