Extension UnderBehandling Enebolig

Ny enebolig med tilbygg og avløpsanlegg på Søndre Bergeberget 268

📍 Søndre Bergeberget 268 , 2410 HERNES

Nøkkelinfo

Sakstype
Tilbygg
Bygningstype
Enebolig
Bruksareal
210 m²
Boenheter
1
Kommune
Elverum
Fylke
Innlandet
Gnr / Bnr
149 / 28
Saksnummer
2025/6207
Fase
Under behandling

Om byggesaken

Ny enebolig med totalt bruksareal på ca. 210 m² fordelt på to etasjer bygges på eksisterende tomt på Søndre Bergeberget 268. Boligen har saltak og flatt tak, med fasade i tre, og inneholder blant annet stue, spisestue, kjøkken, tre soverom, to bad, bod/vaskerom, wc, walk-in closet, entre og kontor. Det etableres ett trappetrinn i boligen. Eksisterende brannskadet bolig rives, og det anlegges nytt privat avløpsanlegg med infiltrasjonsløsning i henhold til gjeldende forskrifter. Bygget tilpasses terreng og eksisterende adkomst opprettholdes, med mindre justeringer i veg og plassering. Prosjektet inkluderer også oppføring av to elementpiper og ildsteder tilknyttet disse.

Produkter og materialer

Gulv Innvendige gulvflater

Gulvflater i bolig, muligens parkett eller fliser (ikke spesifisert eksplisitt)

Innvendige gulvflater i bolig

Takvindu Takvindu

Takvindu i henhold til tegninger (antall ikke spesifisert eksplisitt)

Takvinduer for naturlig lys og ventilasjon

Elektro Elektriske installasjoner

Antall: 1

Elektriske installasjoner i bolig iht. gjeldende forskrifter

Elektroinstallasjoner for ny bolig

Maling Innvendig og utvendig maling

Maling av innvendige og utvendige flater i treverk

Maling for fasade og innvendige overflater

Dører Ytterdør og balkongdør

🧱 Tre

Antall: 7

Ytterdører i tre, inkludert balkongdør og inngangsdør

Ytterdører i tre til entre, soverom og stue

VVS Sanitærinstallasjoner

Antall: 1

Sanitærinstallasjoner i bolig, inkludert tilknytning til nytt avløpsanlegg

VVS-installasjoner for ny bolig

Vinduer Fasadevindu

🧱 Tre

Antall: 7

Fasadevindu i tre, totalt 7 stk fordelt på stue, kjøkken og soverom

Fasadevindu i tre til stue, kjøkken og soverom

Grunnarbeid Tomtearbeid og avløpsanlegg

Antall: 1

Nytt privat avløpsanlegg med infiltrasjonsløsning, inkludert 4 m3 slamavskiller med pumpe og 50 m2 infiltrasjonsareal

Grunnarbeid for ny bolig med nytt avløpsanlegg i henhold til forurensningsforskriften

Tak Saltak og flatt tak

🧱 Tre og taktekking

Antall: 1

Saltak på hoveddel og flatt tak på tilbygg, taktekking i henhold til standard

Tak med saltak og flatt tak, inkludert taktekking

Rekkverk Innvendig rekkverk ved trapp

Antall: 1

Rekkverk ved innvendig trapp i bolig

Sikkerhetsrekkverk ved trapp

Mur Elementpiper og ildsteder

🧱 Mur

Antall: 2

Oppføring av to elementpiper og ildsteder tilknyttet disse

Murarbeid for piper og ildsteder

Tømrer Tømrerarbeider og prefabrikkert tømmerkasse

🧱 Tre

Antall: 1

Produksjon av tømmerkasse i egen fabrikk og montering på byggeplass

Tømrerarbeid for oppføring av ny bolig

Plantegning

Enebolig 209.9 m²

Etasje 1 173.2 m²

Rom Areal Vinduer Dører
Stue 101 32.5 m² 2 1
Spisestue 102 28.1 m² 0 0
Kjøkken 103 12.4 m² 1 1
Gang 104 10.8 m² 0 2
Soverom 105 14.7 m² 1 1
Soverom 106 9.4 m² 1 1
Bad 2 107 10.1 m² 0 1
Bod vask 108 11.2 m² 0 1
Wc 109 1.9 m² 0 1
Walk-in closet 110 4.3 m² 0 1
Soverom 111 14.1 m² 1 1
Bad 2 112 7.0 m² 0 1
Entre 113 8.2 m² 0 1
Stue Stue 28.4 m² 0 1
Kontor Kontor 16.1 m² 0 1

Etasje 2 36.7 m²

Rom Areal Vinduer Dører

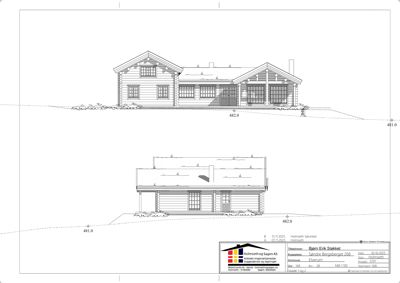
Fasader

Enebolig

Nord
Materiale
Tre
Taktype
Saltak
Høyde
4.8 m
Mønehøyde
8.5 m
Vinduer
5
Dører
1
Synlige etasjer
2
Sør
Materiale
Tre
Taktype
Flatt tak
Høyde
4.8 m
Mønehøyde
8.5 m
Vinduer
1
Dører
1
Synlige etasjer
1

Hendelser

23.04.2026 Søndre Bergeberget 268 Supplering av søknad 149/28
22.04.2026 Mangel i byggesak - Søndre Bergeberget 268
17.04.2026 Veiledning for tiltak (riving, tilbygg, veg) - Søndre Bergeberget 268
17.04.2026 Kart - Forslag vei
16.04.2026 Søndre Bergeberget 268 Supplering av søknad 149/28
09.04.2026 Mottatt nabovarsel for Søndre Bergeberget 268 - gbnr 149/28
12.12.2025 Mangler i byggesak - Søndre Bergeberget 268
10.12.2025 Nytt avløpsanlegg ved oppføring av ny bolig
30.11.2025 Søndre Bergeberget 268 Søknad om tillatelse i ett trinn 149/28