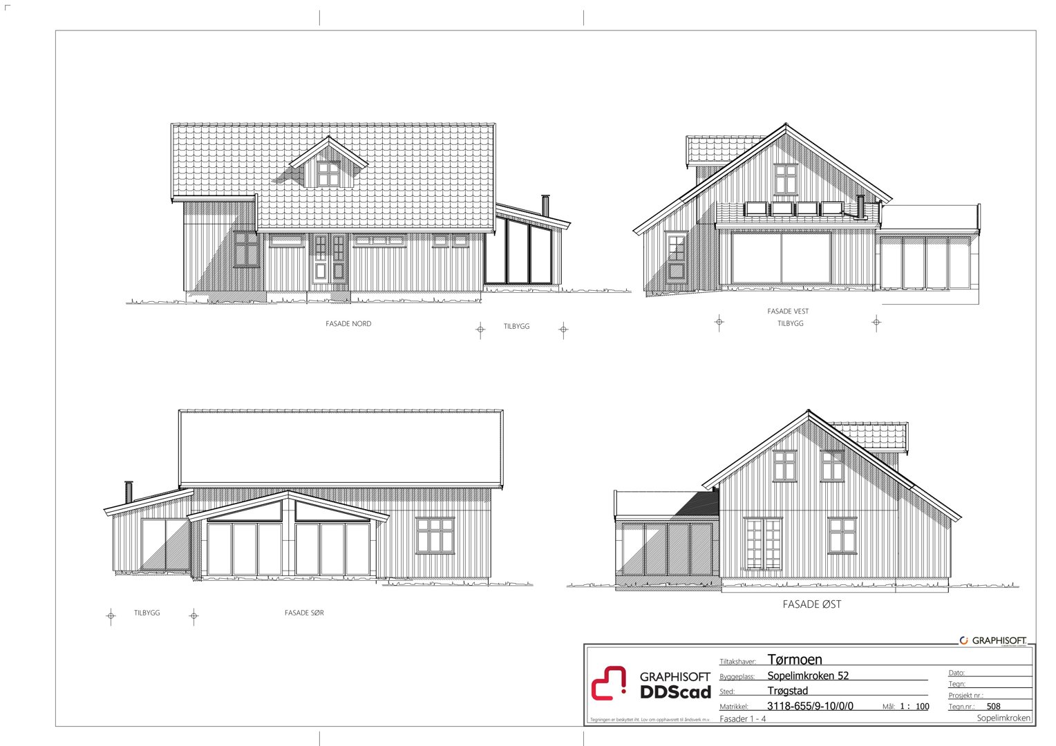
Facade
Fasadetegning som viser bygningens utseende fra alle fire sider (Nord, Sør, Øst, Vest).
1 / 3
Extension
Rammetillatelse
Enebolig
Tilbygg vinterhage med stålpipe på Sopelimkroken 52
📍 Sopelimkroken 52 , 1860 TRØGSTAD
Nøkkelinfo
- Sakstype
- Tilbygg
- Bygningstype
- Enebolig
- Bruksareal
- 19 m²
- Boenheter
- 1
- Kommune
- Indre Østfold
- Fylke
- Østfold
- Gnr / Bnr
- 655 / 9
- Saksnummer
- 2026/2150
- Fase
- Rammetillatelse
Om byggesaken
Ny vinterhage som tilbygg til eksisterende enebolig på 19,3 m² BRA og 15 m² BYA med grunnflate på 15 m². Tilbygget skal ha fire vinduer og en dør, og benyttes som oppholdsrom. Det monteres også en stålpipe i tilbygget. Bygget er i tre med saltak tegl på hoveddelen, og tilbyggets fasade og materialvalg tilpasses eksisterende bolig. Tilbygget er plassert i tråd med situasjonsplan og kommuneplanens arealdel, uten endring av vei, adkomst eller uteoppholdsareal.
Produkter og materialer
Grunnarbeid
Fundamentering for tilbygg
Grunnarbeid for tilbygg med 15 m² grunnflate
Fundamentering og grunnarbeid for tilbyggets grunnflate
Tømrer
Bygningsmessige arbeider
Bygningsmessige arbeider for tilbygg vinterhage
Tømrerarbeid for oppføring av tilbygg
Pipe
Stålpipe
🧱 Stål
Antall: 1
Montering av stålpipe i tilbygg
Stålpipe for ildsted i tilbygg vinterhage
Dører
Ytterdør
Antall: 1
En ytterdør til tilbygg vinterhage
Fasade
Trepanel
🧱 Tre
Tilbygg i tre som tilpasses eksisterende boligfasade
Utvendig kledning i tre for tilbyggets fasade
Tak
Saltak med teglstein
🧱 Teglstein
Saltak med teglstein som på eksisterende bolig
Taktekking for tilbygg i tråd med eksisterende bolig
Vinduer
Vanlige vinduer
Antall: 4
Fire vinduer i tilbygg vinterhage
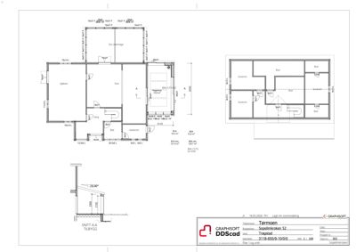
Plantegning
Enebolig 127.4 m²
Etasje 1 127.4 m²
| Rom | Areal | Vinduer | Dører |
|---|---|---|---|
| Stue 101 | 35.0 m² | 2 | 1 |
| Kjøkken 102 | 35.0 m² | 1 | 1 |
| Gang 103 | 10.0 m² | 0 | 3 |
| Bad 104 | 6.0 m² | 0 | 1 |
| Vaskerom 105 | 6.0 m² | 1 | 1 |
| Hagestue 106 | 15.0 m² | 4 | 1 |
| Bod 107 | 15.0 m² | 1 | 1 |
Fasader
Enebolig
Nord
- Materiale
- Tre
- Taktype
- Saltak
- Takmat.
- Tegl
- Vinduer
- 6
- Dører
- 1
- Synlige etasjer
- 2
Vest
- Materiale
- Tre
- Taktype
- Saltak
- Takmat.
- Tegl
- Vinduer
- 4
- Dører
- 1
- Balkonger
- 1
- Synlige etasjer
- 2
Sør
- Materiale
- Tre
- Taktype
- Flatt tak
- Vinduer
- 2
- Dører
- 0
- Synlige etasjer
- 1
Øst
- Materiale
- Tre
- Taktype
- Saltak
- Takmat.
- Tegl
- Vinduer
- 4
- Dører
- 1
- Synlige etasjer
- 2
Hendelser
14.04.2026
Gbnr 655/9 - Sopelimkroken 52 - Tilbygg - Tillatelse til tiltak
17.03.2026
Gbnr 655/9 - Sopelimkroken 52 - Søknad om oppføring av tilbygg