Extension Soeknad Enebolig

Tilbygg med balkong og loftsinnredning i Sørjordet 21B

📍 Sørjordet 21A , 3060 SVELVIK

Nøkkelinfo

Sakstype
Tilbygg
Bygningstype
Enebolig
Bruksareal
36 m²
Boenheter
1
Kommune
Drammen
Fylke
Buskerud
Gnr / Bnr
334 / 128
Saksnummer
26/03940
Fase
Søknad

Om byggesaken

Ny balkong på 4,7 m² på loftet mot nordfasaden, samt innredning av loft til loftstue med økt bruksareal på 21,1 m². I tillegg omfatter prosjektet bruksendring i underetasje med omgjøring av boder til oppholdsrom og ny kjellerdør i østfasade. Balkongen er et påbygg, men ligger innenfor eksisterende fotavtrykk og under eksisterende tak, slik at BYA ikke økes. Tiltaket inkluderer også nye vinduer i gavler og takvinduer på loftet. Bygningen er en trehus enebolig med saltak, og prosjektet innebærer fasadeendringer med nye vinduer og dører, samt trapper for tilkomst til loftet.

Arbeidsomfang

- Tilbygg med balkong på eksisterende konstruksjon (areal 4,7 m²) som ikke gir økt BYA da det ligger innenfor fotavtrykket og under boligen. - Innredning av loftsetasje (brukendring). - Innredning av underetasje (U. etg).

Produkter og materialer

Isolasjon Radonsperre i gulv

🧱 Radonsperre

Tiltak mot radon i underetasje med radonsperre i gulv

Radonsikring i underetasje

Balkong Balkong på loft

🧱 Tre og glass

Antall: 1

Balkong på 4,7 m² på loft mot nordfasade, innenfor eksisterende fotavtrykk og under eksisterende tak

Ny balkong som påbygg på loftet

Vinduer Fasadevindu i gavl

🧱 Tre eller PVC (ikke spesifisert)

Antall: 3

Nye vinduer i gavl mot nord, øst og sør, inkludert rømningsvindu i sørgavl

Nye fasadevinduer i gavler for loftsinnredning

Dører Ytterdør til balkong

🧱 Ikke spesifisert

Antall: 1

Ny dør i gavl ut til balkong på loft

Dør til ny balkong på loft

Vinduer Takvindu

🧱 Ikke spesifisert

Antall: 2

2 stk takvinduer på loft mot øst

Nye takvinduer for loftsinnredning

Fasade Trepanel

🧱 Tre

Fasade i tre med saltak, fasadeendringer med nye vinduer og dører

Fasadeendringer i tre som følge av tilbygg og loftsinnredning

Trapper Innvendig trapp for loftstilkomst

🧱 Tre

Antall: 1

Forlenget trapp opp fra stue i 1. etasje til loftstue

Trapp for tilkomst til innredet loft

Dører Kjellerdør

🧱 Ikke spesifisert

Antall: 1

Ny kjellerdør i fasade mot øst

Dør for ny adkomst til kjeller

Tømrer Tømrerarbeid og montering av trekonstruksjoner

🧱 Tre

Utførelse av tilbygg, balkong og loftsinnredning

Tømrerarbeid for tilbygg og innredning

Grunnarbeid Grensepåvisning og kartforretning

Grensepåvisning pga. usikre eiendomsgrenser og krav om avstand til nabogrense

Oppmåling og dokumentasjon av eiendomsgrenser

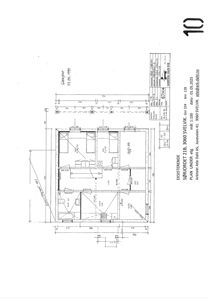
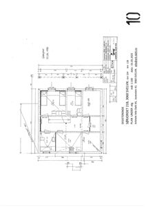
Plantegning

PLAN UNDER etg 108.5 m²

Etasje 0 108.5 m²

Rom Areal Vinduer Dører
BAD A6.2 8.5 m² 0 1
VASK A9.4 4.5 m² 0 1
GANG A15.2 15.2 m² 0 3
SOV 2 A7.0 12.0 m² 1 1
SOV 1 A11.7 11.7 m² 1 1
SOV 3 A8.5 8.5 m² 1 1
TV/KONTOR A6.8 6.8 m² 1 1

Kjeller 28.4 m²

Etasje 0 28.4 m²

Rom Areal Vinduer Dører
Kjeller 001 6.9 m² 0 1
Vask 002 9.8 m² 0 1
Bad 003 6.0 m² 0 1
Kjøkken 004 9.2 m² 0 1
Lands 005 13.0 m² 0 1
Sov 006 13.0 m² 0 1
Sov 007 13.0 m² 0 1
Dopp - Bod 008 9.2 m² 0 1

Enebolig 156.5 m²

Etasje 2 47.0 m²

Rom Areal Vinduer Dører
Loftstue 201 42.3 m² 1 2
Balkong 202 4.7 m² 0 1

Etasje 1 109.5 m²

Rom Areal Vinduer Dører
Sov A11.6/1.2 11.6 m² 0 1
Bad A2.9 2.9 m² 0 1
Stue A17.5/3.2 17.5 m² 3 1
Balkong A17.2 17.2 m² 0 1
Spis A22.5/5.8 22.5 m² 1 0
Kjøkken A10.5/1.9 10.5 m² 0 1
Entré/Gang A10.5 10.5 m² 0 2
VF A2.5/0.1 2.5 m² 0 1

Eksisterende 67.0 m²

Etasje 1 67.0 m²

Rom Areal Vinduer Dører
Stue 101 35.2 m² 2 2
Sove rom 102 11.6 m² 1 1
Bad 103 4.9 m² 0 1
Kjøkken 104 10.8 m² 1 1
Gang 105 4.5 m² 0 2

PLAN LOFT 48.6 m²

Etasje 2 48.6 m²

Rom Areal Vinduer Dører
NY LOFTSTUE 201 48.6 m² 2 2

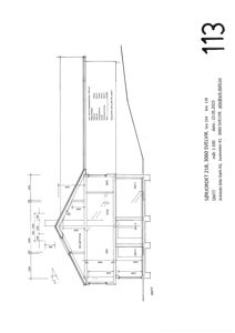
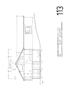
Fasader

SØRJORDET

Sør
Materiale
Tre
Taktype
Saltak
Vinduer
3
Dører
1
Synlige etasjer
1

Eksisterende

Sør
Materiale
Tre
Taktype
Saltak
Vinduer
3
Dører
1
Synlige etasjer
1
Øst
Materiale
Tre
Taktype
Saltak
Høyde
6.0 m
Mønehøyde
9.3 m
Vinduer
4
Dører
1
Balkonger
1
Synlige etasjer
2
Nord
Materiale
Tre
Taktype
Saltak
Høyde
6.5 m
Mønehøyde
8.2 m
Vinduer
6
Dører
1
Balkonger
1
Synlige etasjer
2
Vest
Taktype
Saltak
Vinduer
1
Dører
1
Synlige etasjer
2

SØRJORDET 21B

Øst
Materiale
Tre
Taktype
Saltak
Vinduer
5
Dører
1
Balkonger
1
Synlige etasjer
3

Hendelser

08.04.2026 Sørjordet 21B, vi trenger flere opplysninger for å behandle søknaden din søknad
11.03.2026 Sørjordet 21B, Supplering nr 2 til søknad om tillatelse til tiltak søknad
02.03.2026 Sørjordet 21A, vi trenger flere opplysninger for å behandle søknaden din søknad
23.02.2026 Sørjordet 21A, supplering nr. 1 til søknad om tillatelse søknad
19.02.2026 Sørjordet 21B, vi trenger flere opplysninger for å behandle søknaden din søknad
10.02.2026 Sørjordet 21A Søknad om tillatelse i ett trinn 334/128 søknad