Extension UnderBehandling Enebolig

Tilbygg og fasadeendring med vinterhage på Søvikneset 22, Bergen

📍 Søvikneset 22 , 5251 SØREIDGREND

Nøkkelinfo

Sakstype
Tilbygg
Bygningstype
Enebolig
Bruksareal
36 m²
Boenheter
1
Kommune
Bergen
Fylke
Vestland
Gnr / Bnr
38 / 46
Saksnummer
BYGG-2025/13561
Fase
Under behandling

Om byggesaken

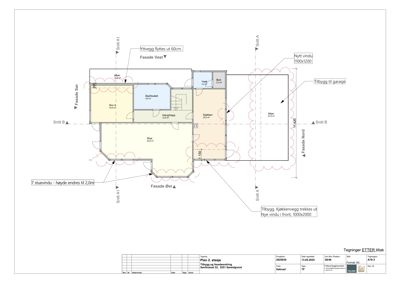
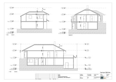
Prosjektet omfatter tilbygg og fasadeendring på en eksisterende enebolig på Søvikneset 22 i Bergen. Det bygges en vinterhage på 17 m² på toppen av en eksisterende terrasse med flatt tak og skyvefelt mot øst, kledd i samme materiale som resten av boligen. Garasjen utvides med 2,65 meter mot nord for å romme to biler, og kjøkkenvegg og soverom flyttes ut for bedre romløsning. Fasadeendringene inkluderer montering av ny dør (0,9x2,1 m) og vindu (0,6x1,6 m) i underetasjen mot vest, samt høydejustering av stuevinduer til 2,0 meter. Bygningen har saltak og trekledning, og tiltaket inkluderer også oppgradering av terreng rundt garasje og støping av ringmur og betonggulv. Det er to balkonger og flere vinduer og dører fordelt på to etasjer.

Produkter og materialer

Fasade Kledning

🧱 Tre

Kledning som matcher eksisterende bolig

Tre-kledning for fasadeendring og vinterhage

Dører Ytterdør

Antall: 2

Ny dør 0,9x2,1 m i underetasje vest, ny dør til vinterhage

Nye ytterdører for fasadeendring og vinterhage

Rekkverk Glass og metall rekkverk

🧱 Glass og metall

Nytt rekkverk av glass og metall som erstatning for eksisterende rekkverk og omramming

Rekkverk rundt terrasse og garasje

Tak Flatt tak vinterhage

Antall: 1

Flatt tak på vinterhage med gesims i samme høyde som bunn av takstein på eksisterende tak

Tak for vinterhage på terrasse

Vinduer Fasadevindu

Antall: 8

Nye vinduer i fasade vest underetasje (0,6x1,6 m), 7 stuevinduer høyde endret til 2,0 m

Nye og endrede vinduer for fasadeendring og vinterhage

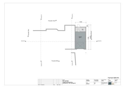
Garasjeport Dobbel garasjeport

Antall: 1

Ny dobbel garasjeport i utvidet garasje

Garasjeport for utvidet garasje

Terrasse Utvidet terrasse

Utvidelse av eksisterende terrasse i tilknytning til garasjeutvidelse

Terrasseutvidelse i tilknytning til tilbygg

Grunnarbeid Graving for tilbygg

Graving av grunn for tilbygg og garasjeutvidelse

Grunnarbeid for fundamentering

Tømrer Tilbygg og fasadeendring

Bygge tilbygg, vinterhage og fasadeendring med nye vinduer og dører

Tømrerarbeid for tilbygg, vinterhage og fasadeendring

Betong Ringmur og betonggulv

🧱 Armert betong

Ringmur og betonggulv med fall 1:100, 100 mm armert betong, 50 mm trykkfast isolasjon

Fundamentering for tilbygg og garasjeutvidelse

Plantegning

Enebolig 171.1 m²

Etasje 2 171.1 m²

Rom Areal Vinduer Dører
Stue 201 42.8 m² 7 1
Kjøkken 202 24.5 m² 2 1
Altan 203 57.9 m² 0 0
Sov 4 204 16.9 m² 1 1
Bad/toalett 205 9.9 m² 0 1
Gang/trapp 206 12.6 m² 0 2
Vask 207 3.3 m² 0 0
Bod 208 2.2 m² 0 0
Altan 209 15.8 m² 0 0

Fasader

Enebolig

Vest
Materiale
Tre
Taktype
Saltak
Vinduer
6
Dører
1
Balkonger
1
Synlige etasjer
2
Sør
Materiale
Tre
Taktype
Saltak
Vinduer
2
Dører
3
Balkonger
1
Synlige etasjer
1
Øst
Materiale
Tre
Taktype
Saltak
Vinduer
7
Dører
2
Synlige etasjer
2
Nord
Materiale
Tre
Taktype
Saltak
Vinduer
6
Dører
1
Synlige etasjer
2

Hendelser

09.04.2026 Søvikneset 22 Søknad om endring av gitt tillatelse eller godkjenning 38/46
16.03.2026 Svar på spørsmål- 38/46/0/0 Søvikneset 22, fasadeendring
13.03.2026 Søknad om endring av tillatelse
14.08.2025 Søvikneset 22 Supplering av søknad 38/46
19.06.2025 Fakturagrunnlag 2025
19.06.2025 ubw ordre 20672161
11.06.2025 Tillatelse til tiltak med ansvarsrett, 38/46, Søvikneset 22
06.06.2025 Vedlagte bilder
06.06.2025 Behov for tilleggsopplysninger
03.06.2025 Søvikneset 22 Søknad om tillatelse i ett trinn 38/46