Extension Ferdigattest Enebolig

Ny garasje, tilbygg, bod og mur på Staksheio 10, Ålgård

📍 Staksheio 10 , 4331 ÅLGÅRD

Nøkkelinfo

Sakstype
Tilbygg
Bygningstype
Enebolig
Bruksareal
380 m²
Boenheter
1
Kommune
Gjesdal
Fylke
Rogaland
Gnr / Bnr
7 / 316
Saksnummer
24/01837
Fase
Ferdigattest

Om byggesaken

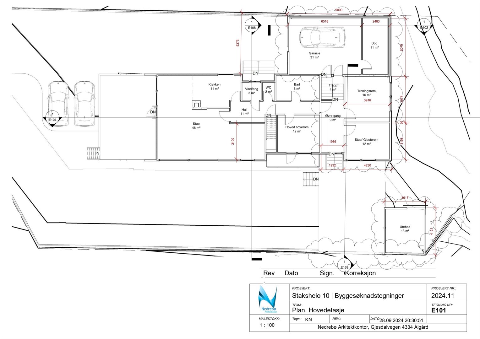
Prosjektet omfatter riving av en eksisterende frittliggende garasje på 36 m² og oppføring av en ny garasje på 31 m² som bygges som tilbygg til boligen. Det oppføres et tilbygg på boligens nord- og østside med et bebygd areal på 94 m², hvorav 47 m² er boligdel og 47 m² garasje og bod. I tillegg bygges en ny utebod på 15 m² i sørøstlig hjørne av tomten. Det etableres en uteplass mellom tilbygget og boden, avgrenset med en stedstøpt betongmur med høyde opptil 2,5 meter, hvor fundamentet delvis ligger over nabogrensen med skriftlig samtykke fra naboer. Bruksendring i kjelleretasjen omfatter omgjøring av hobbyrom, matbu og diverse rom til soverom, kjellerstue, vaskerom og gang. Garasjetaket har 6 graders takfall, og det er gjort justeringer i takhøyde med nabosamtykke. Tiltakshaver har fått godkjent personlig ansvarsrett som selvbygger for alle fagområder.

Produkter og materialer

Gulv Innvendige gulv

Gulv i bolig og tilbygg, inkl. kjeller

Standard gulvflater i bolig og tilbygg

Elektro Elektriske installasjoner

Elektrisk anlegg i bolig og garasje

El-installasjoner iht. TEK17

Isolasjon Isolasjon i vegger og tak

Isolasjon iht. TEK17 i yttervegger og tak

Isolasjon for energibesparende og komfortabel bolig

Brannvern Brannkrav og kontroll

Tiltakshaver har personlig ansvarsrett som selvbygger, og tiltaket følger TEK17

Brannvern og sikkerhet iht. gjeldende forskrifter

Tømrer Bygningskonstruksjon

🧱 Tre

Tømrerarbeid for tilbygg, garasje og bod

Bygging av konstruksjoner i tre for boligtilbygg og garasje

Maling Innvendig og utvendig maling

Maling av fasader, vegger og takflater

Overflatebehandling for beskyttelse og estetikk

VVS Sanitærinstallasjoner

Bad, WC og vaskerom med sanitærutstyr

VVS-installasjoner for våtrom

Rekkverk Utvendige rekkverk og trapper

Permanent rekkverk og trapper utendørs

Sikkerhetsrekkverk på uteplass og trapper

Vinduer Vinduer i bolig og kjeller

Antall: 12

Vinduer i stue, soverom, kjellerstue, vaskerom og bad

Standard boligvinduer i ulike rom

Trapper Innvendig trapp

Antall: 1

Innvendig trapp mellom etasjer

Trapp i bolig for etasjeadkomst

Dører Ytter- og innerdører

Antall: 18

Ytterdører og innerdører i bolig og garasje

Dører til rom og utvendig adkomst

Mur Stedstøpt betongmur

🧱 Betong

Mur rundt uteplass med høyde opptil 2,5 meter, fundament delvis over nabogrense

Betongmur som avgrensning og sikring av uteplass mellom tilbygg og bod

Betong Fundament og mur

🧱 Betong

Fundament for mur og bygninger, stedstøpt betongmur

Betongarbeid for fundamentering og mur

Fasade Tilbygg til bolig

Tilbygg på 94 m² med boligdel og garasje/bod

Fasadeendring og ny bygningsdel som forlengelse av eksisterende bolig

Bod Utebod

Antall: 1

Ny utebod på 15 m² i sørøstlig hjørne av tomten

Frittstående bod for lagring

Garasjeport Garasjeport til ny garasje

Antall: 1

Garasje på 31 m² som tilbygg til bolig

Garasjeport til ny garasje som er integrert i tilbygget

Plantegning

Enebolig 380.5 m²

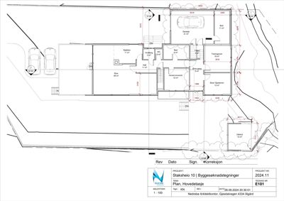
Etasje 1 252.0 m²

Rom Areal Vinduer Dører
Stue 101 46.0 m² 3 1
Kjøkken 102 11.0 m² 0 1
Hall 103 11.0 m² 0 2
Vindfang 104 3.0 m² 0 2
WC 105 2.0 m² 0 1
Bad 106 8.0 m² 0 1
Hoved soverom 107 12.0 m² 1 1
Stue/Gjesterom 108 12.0 m² 2 1
Øvre gang 109 9.0 m² 0 2
Treningsrom 110 16.0 m² 1 1
Bod 111 11.0 m² 0 1
Garasje 112 31.0 m² 0 1
Bod 113 11.0 m² 0 0

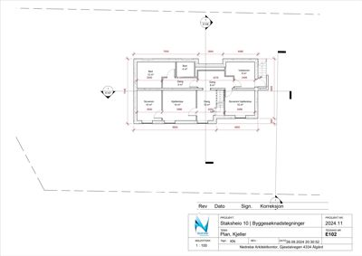
Etasje 0 128.5 m²

Rom Areal Vinduer Dører
Soverom 001 10.0 m² 1 1
Kjellerstue 002 14.0 m² 1 1
Gang 003 10.0 m² 0 2
Soverom/kjellerstue 004 10.0 m² 1 1
Gang 005 8.0 m² 0 2
Vaskerom 006 9.0 m² 1 1
Bad 007 12.0 m² 1 1
Bod 008 4.0 m² 0 1

Hendelser

10.04.2026 24/01837-15 GODKJENT - søknad fra Esben Andersen om ferdigattest for riving av garasje, ny garasje, tilbygg til bolig, bod og mur, gnr. 7, bnr. 316, Staksheio 10, Ålgård
27.03.2026 24/01837-14 Søknad fra Esben Andersen om ferdigattest for søknad om riving av garasje og oppføring av garasje, tilbygg til bolig, bod og mur, gnr. 7, bnr. 316, Staksheio 10, Ålgård
19.01.2026 24/01837-13 GODKJENT - søknad fra Esben Andersen om midlertidig brukstillatelse for riving av garasje, oppføring av garasje, tilbygg til bolig, bod og mur, gnr. 7, bnr. 316, Staksheio 10, Ålgård
22.12.2025 24/01837-12 Søknad fra Esben Andersen om midlertidig brukstillatelse for tiltaket - søknad om riving av garasje og oppføring av garasje, tilbygg til bolig, bod og mur, gnr. 7, bnr. 316, Staksheio 10, Ålgård
03.06.2025 24/01837-11 Epostdialog med tiltakshaver om justeringer av takhøyde på garasje, gnr. 7, bnr. 316, Staksheio 10, Ålgård
10.12.2024 24/01837-7 GODKJENT - søknad fra Esben Andersen om dispensasjon fra reguleringsplan og søknad om riving av garasje og oppføring av tilbygg til bolig, bod og mur, samt bruksendring gnr. 7, bnr. 316, Staksheio 10, Ålgård
31.10.2024 24/01837-6 Svar på melding om mangler - søknad om div. tiltak på gnr. 7, bnr. 316, Staksheio 10, Ålgård
28.10.2024 24/01837-5 Svar på spørsmål knyttet til nabovarsling av kommunen, gnr. 7, bnr. 316, Staksheio 12, Ålgård
28.10.2024 24/01837-4 Melding om mangler - søknad om div. tiltak på gnr. 7, bnr. 316, Staksheio 10, Ålgård
15.10.2024 24/01837-3 Søknad fra Esben Andersen om dispensasjon fra reguleringsplan for plassering av tilbygg, utnyttelse av tomt, størrelse på garasje og mur mot nabo, gnr. 7, bnr. 316, Staksheio 10, Ålgård