Extension Ferdigattest Enebolig

Tilbygg, fasadeendring og bruksendring på Starasvingen 9, Bergen

📍 Starasvingen 9 , 5174 MATHOPEN

Nøkkelinfo

Sakstype
Tilbygg
Bygningstype
Enebolig
Bruksareal
244 m²
Boenheter
1
Kommune
Bergen
Fylke
Vestland
Gnr / Bnr
128 / 105
Saksnummer
BYGG-2024/18786
Fase
Ferdigattest

Om byggesaken

Prosjektet omfatter tilbygg av en hagestue på 13,8 m² i forlengelse av eksisterende garasje, samt oppføring av en terrasse på 12 m² med glassrekkverk. Det er foretatt fasadeendringer som inkluderer endring av vindusstørrelser og dører, samt overgang fra stående til liggende kledning på boligen. Bruksendring av kjellerrom til kjellerstue, gang, bad/vaskerom, bod og soverom inngår også, sammen med mindre endringer i rominndeling i første etasje. Bygningen er en eldre bolig med trevirke og flatt tak, som oppgraderes med forbedret isolasjon og nye vinduer med U-verdi 0,78. Prosjektet inkluderer også oppgradering av våtrom og tekniske installasjoner, og er gjennomført med ansvarlige foretak innen arkitektur, tømrerarbeid, taktekking, sanitær, ventilasjon og maling. Avfallshåndtering er dokumentert med sluttrapport og kvitteringer for kildesortering og levering til godkjente mottak.

Produkter og materialer

Gulv Isolering og påstøp

🧱 50 mm isolasjon + 70 mm påstøp

Isolering i gulv i kjellerstue og påstøp

Isolering og påstøp i gulv i kjellerstue

Dører Fasadedører

🧱 Tre/isolert, tilpasset ny fasade

Endring av dørstørrelser og nye dører i fasaden

Nye fasadedører i tilknytning til fasadeendring

Vinduer Utskifting av vinduer

🧱 3-lags energiglass, U-verdi 0,78

Vinduer byttes ut med nye som tilfredsstiller U-verdi 0,78

Nye vinduer med bedre isolasjonsevne for hele boligen

Tak Taktekking

Taktekking på eksisterende og nytt tak

Taktekking utført som del av prosjektet

Fasade Kledning

🧱 Tre, overgang fra stående til liggende kledning

Endring av kledning på boligfasade fra stående til liggende

Ny liggende trekledning på eksisterende boligfasade

VVS Sanitærinstallasjoner

Bad, vaskerom og sanitærinstallasjoner i kjeller

Oppgradering og nyinstallasjon av sanitær i kjellerbad og vaskerom

Rekkverk Glassrekkverk

🧱 Glass

Antall: 1

Glassrekkverk på terrasse

Glassrekkverk montert på ny terrasse

Ventilasjon Ventilasjonsanlegg

Ventilasjonsanlegg for hele boligen

Nytt ventilasjonsanlegg installert i prosjektet

Tømrer Bygningsarbeid

🧱 Trevirke

Tømrerarbeid for tilbygg, hagestue og fasadeendringer

Tømrerarbeid knyttet til tilbygg, fasadeendring og hagestue

Isolasjon Yttertak og vegger

🧱 Glava Ekstrem 150 mm

Isolasjon i yttertak økes til 150 mm, vegger til 150 mm

Etterisolering av yttertak og vegger for bedre U-verdi

Maling Innvendig og utvendig maling

Malerarbeid i våtrom og øvrige rom

Maling av våtrom, bad, vaskerom og øvrige innvendige flater

Grunnarbeid Avfallshåndtering

Kildesortering og levering av bygningsavfall til godkjente mottak

Avfallshåndtering med dokumentert sluttrapport og kvitteringer

Tilbygg Hagestue

🧱 Tre, glassrekkverk

Antall: 1

Hagestue på 13,8 m² i forlengelse av garasje

Ny hagestue som tilbygg til eksisterende garasje

Terrasse Terrasse med glassrekkverk

🧱 Tre, glassrekkverk

Antall: 1

Terrasse på 12 m² med glassrekkverk

Ny terrasse med glassrekkverk på boligen

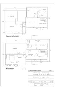
Plantegning

Enebolig 100.0 m²

Etasje 0 100.0 m²

Rom Areal Vinduer Dører
Hybelrom 001 55.0 m² 0 1
Ved/tørkerom 002 12.0 m² 0 1
Bod 003 10.0 m² 0 1
Matbod 004 8.0 m² 0 1
Klesbod 005 6.0 m² 0 1
Gang 006 5.0 m² 0 0
Vaskerom 007 15.0 m² 0 1
Hobby-/div.rom 008 15.0 m² 0 1
Blindkjeller 009 55.0 m² 0 0
Garderobe 010 3.0 m² 0 0
Soverom 4 011 23.4 m² 0 1
Bad/vaskerom 012 11.0 m² 0 1
Bod 013 10.9 m² 0 1
Kjellerstue 014 11.9 m² 0 1
Gang 015 11.0 m² 0 0

Fasader

Enebolig

Vest
Materiale
Tre
Taktype
Flatt tak
Vinduer
5
Dører
1
Synlige etasjer
2
Sør
Materiale
Tre
Taktype
Saltak
Vinduer
6
Dører
1
Synlige etasjer
2

Bruksending

Nord
Materiale
Betong
Vinduer
1
Dører
1
Synlige etasjer
1

Hendelser

13.04.2026 Starasvingen 9 Søknad om ferdigattest 128/105
10.11.2025 Mottatt erklæring om ansvarsrett
30.10.2025 Starasvingen 9 Supplering av søknad 128/105
23.05.2025 Fakturagrunnlag
23.05.2025 Ubw ordre 20670159 Endring i gitt tillatelse (dokument 9)
21.05.2025 Tillatelse til endring Starasvingen 9, vedtak fasadendring, tilbygg og bruksendring fra tilleggsdel til hoveddel
16.05.2025 Starasvingen 9 Søknad om endring av gitt tillatelse eller godkjenning 128/105
23.04.2025 Starasvingen 9 Supplering av søknad 128/105
24.01.2025 Fakturagrunnlag
24.01.2025 Ubw ordre 20660825 Bruksendring, tilbygg, fasadeendring
17.01.2025 Tillatelse
02.01.2025 Bekreftelse på mottatt søknad
23.12.2024 Starasvingen 9 Søknad om tillatelse i ett trinn 128/105