Facade
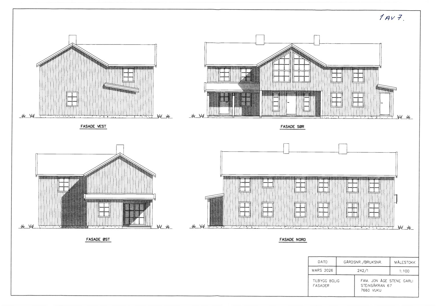
Fasadetegninger som viser oppriss av bygningens fire sider (vest, sør, øst og nord).
1 / 6
Extension
Soeknad
Enebolig
Tilbygg til enebolig på Steinsåkran 67, Vuku
📍 Steinsåkran 67 , 7660 VUKU
Nøkkelinfo
- Sakstype
- Tilbygg
- Bygningstype
- Enebolig
- Bruksareal
- 49 m²
- Boenheter
- 1
- Kommune
- Verdal
- Fylke
- Trøndelag - Trööndelage
- Gnr / Bnr
- 242 / 1
- Saksnummer
- 2026/9427
- Fase
- Søknad
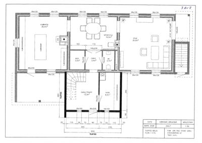
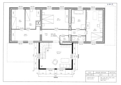
Om byggesaken
Ny tilbygg på enebolig på Steinsåkran 67 med et samlet areal på under 50 m². Tilbygget inkluderer blant annet vaskerom, gang/trapp og loftstue, fordelt på to etasjer. Bygget har trekledning og saltak, og er tilpasset eksisterende bolig med tilsvarende materialvalg. Tilbygget inneholder funksjoner som vaskeromsinnredning og trapp, og er planlagt med flere dører for adkomst mellom rommene. Fasaden består av tre med flere vinduer og en pipe tilknyttet bygget.
Produkter og materialer
Tømrer
Byggkonstruksjon
🧱 Tre
Tømrerarbeid for oppføring av tilbyggets bærende konstruksjoner
VVS
Vaskeromsinnredning
Antall: 1
Innredning og installasjoner for vaskerom
Elektro
El-installasjoner
Elektriske installasjoner i tilbygg
Tak
Saltak
🧱 Tre med taktekking
Saltak som på eksisterende bolig
Tak med saltak konstruksjon for tilbygg
Maling
Utvendig og innvendig maling
Maling av fasade og innvendige flater i tilbygg
Vinduer
Fasadevindu
Antall: 2
Vinduer i tilbyggets fasade
Grunnarbeid
Fundamentering
Bygget står på fjellgrunn og grus, fundamentering tilpasses dette
Grunnarbeid og fundamentering for tilbygg
Trapper
Innvendig trapp
Antall: 1
Trapp mellom etasjer i tilbygg
Fasade
Trekledning
🧱 Tre
Trekledning på tilbygg, tilpasset eksisterende fasade
Ytterkledning i tre for tilbyggets fasader
Dører
Innvendige dører
Antall: 4
Dører til rom i tilbygget (vaskerom, gang, loftstue)
Fasader
Enebolig
Vest
- Materiale
- Tre
- Taktype
- Saltak
- Vinduer
- 2
- Dører
- 0
- Synlige etasjer
- 1
Sør
- Materiale
- Tre
- Taktype
- Saltak
- Vinduer
- 8
- Dører
- 2
- Balkonger
- 1
- Synlige etasjer
- 2
Øst
- Materiale
- Tre
- Taktype
- Saltak
- Vinduer
- 3
- Dører
- 1
- Synlige etasjer
- 1
Nord
- Materiale
- Tre
- Taktype
- Saltak
- Vinduer
- 8
- Dører
- 0
- Synlige etasjer
- 2
Hendelser
14.04.2026
Ett-trinnssøknad - Oppføring av tilbygg til bolig - 242/1 Steinsåkran 67