Extension UnderBehandling Enebolig

Tilbygg med pergola på enebolig i Storgaten 8, Holmsbu

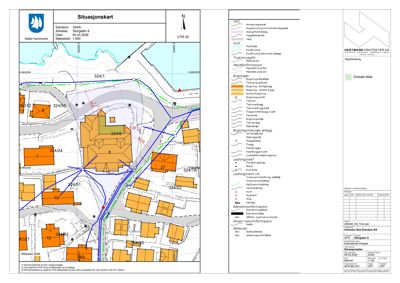
📍 Storgaten 8 , 3484 HOLMSBU

Nøkkelinfo

Sakstype
Tilbygg
Bygningstype
Enebolig
Bruksareal
75 m²
Boenheter
1
Kommune
Asker
Fylke
Akershus
Gnr / Bnr
324 / 6
Saksnummer
22/3844
Fase
Under behandling

Om byggesaken

Pergola på ca. 75 m² oppført som tilbygg på eksisterende terrasse på nordfasaden av Holmsbu Badehotell, en 3-etasjes hvit trebygning med valmet tak. Pergolaen er et prefabrikkert produkt med sortlakkert stålramme, glasslameller som vegger og metall-lameller som tak, begge regulerbare for åpning og lukking. Konstruksjonen er uisolert og montert på eksisterende terrassegulv, med integrert LED-belysning innfelt i konstruksjonen. Pergolaen fungerer som overdekning for uteareal til spisesal og stue, og er underordnet hovedbyggets arkitektur og volum. Tiltaket er reversibelt og tilpasset kulturmiljøet i Holmsbu sentrum, innenfor regulert byggegrense og 100-metersbeltet langs sjø.

Produkter og materialer

Grunnarbeid Terrassegulv under pergola

🧱 Eksisterende terrassegulv

Antall: 1

Pergola montert på eksisterende terrassegulv, ingen nye fundamenter opplyst

Underlag for pergola på eksisterende terrasse

Tømrer Montering av pergola

🧱 Stål- og glasskonstruksjon

Antall: 1

Montering av prefabrikkert pergola på eksisterende terrasse

Arbeid knyttet til oppføring og montering av pergola

Elektro Integrert LED-belysning i pergola

Antall: 1

Innfelte LED-lys i pergolaens profiler, indirekte og nedadrettet belysning for uteareal

Diskret belysning for uteoppholdsareal under pergolaen

Fasade Pergola med regulerbare glass- og metall-lameller

🧱 Sortlakkert stål/metall, glasslameller

Antall: 1

Prefabrikkert element fra leverandør 'Ditt uterom', ca. 75 m², regulerbare glasslameller som vegger og metall-lameller som tak, uisolert

Pergola som overdekker eksisterende terrasse, med skyvbare lameller for åpning/lukking

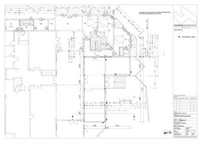
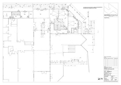
Plantegning

Enebolig 105.9 m²

Etasje 1 105.9 m²

Rom Areal Vinduer Dører
Gang 101 4.5 m² 0 1
Stue 102 35.0 m² 2 2
Kjøkken 105a 11.5 m² 1 1
Kjøkken 105b 11.5 m² 1 1
Gang 106 12.0 m² 0 2
Gang 107 12.0 m² 0 1
Gang 108 12.0 m² 0 1
Bad 109 6.0 m² 0 1
Toalett 110 2.0 m² 0 1
Gang 111 14.9 m² 0 1
Sove 112 12.0 m² 1 1
Bad 113 6.0 m² 0 1

Fasader

Hovedbygg

Nord
Materiale
Tre
Taktype
Saltak
Vinduer
24
Dører
2
Balkonger
3
Synlige etasjer
3
Øst
Materiale
Tre
Taktype
Saltak
Vinduer
16
Dører
3
Balkonger
1
Synlige etasjer
3

Enebolig

Øst
Materiale
Tre
Taktype
Saltak
Vinduer
14
Dører
3
Balkonger
1
Synlige etasjer
3

Hendelser

14.04.2026 324/6 Storgaten 8 - Informasjon om søknadsplikt for pergola.
17.03.2026 324/6 Storgaten 8 - Redegjørelse
03.03.2026 324/6 Storgaten 8 - Videre oppfølging av sak settes i bero i påvente av søknad
02.03.2026 324/6 Storgaten 8 - Mulig ulovligheter - Informasjon om etterspurt redegjørelse for tiltak på eiendommen
19.02.2026 324/6 Storgaten 8 - Søknadsplikt for tilbygg
30.01.2026 324/6 - Redegjørelse – tiltak på veranda
26.01.2026 324/6 Storgaten 8 - Ber om redegjørelse - Tiltak på fasade
11.07.2023 324/6 Bekymring for utvikling - Mulig ulovligheter - tilbygg
31.10.2022 324/6, 324/115, 324/130 Mulig ulovligheter