Facade
Fasadetegning som viser bygningens utseende fra fire ulike vinkler (for, bak, venstre og høyre side).
1 / 6
Extension
Ferdigattest
Enebolig
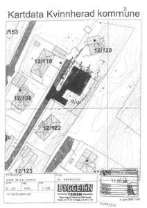
Utvendig tilbygg/bod på enebolig i Storhaugvegen 26
📍 Storhaugvegen 26 , 5637 ØLVE
Nøkkelinfo
- Sakstype
- Tilbygg
- Bygningstype
- Enebolig
- Bruksareal
- 17 m²
- Boenheter
- 1
- Kommune
- Kvinnherad
- Fylke
- Vestland
- Gnr / Bnr
- 12 / 121
- Saksnummer
- 2025/4859
- Fase
- Ferdigattest
Om byggesaken
Ny utvendig tilbygg/bod på ca. 17-18 m² BRA/ BYA er oppført på en eksisterende enebolig i Storhaugvegen 26. Tilbygget er plassert på endevegg og har saltak som er forlenget fra eksisterende hustak for å sikre tilstrekkelig takvinkel og bæreevne for taktekking. Bygget er utført i tre med tilpasset estetikk i forhold til eksisterende bolig. Det er dokumentert nabovarsel og samtykke for plassering nærmere nabogrense enn 4 meter. Tiltaket er ferdigstilt og det foreligger ferdigattest.
Produkter og materialer
Grunnarbeid
Fundamentering
Grunnarbeid og fundamentering for tilbygg
Fasade
Trevegger
🧱 Tre
Tilbygg i tre med tilpasset estetikk til eksisterende bolig
Yttervegger i tre som tilbygg/bod
Tak
Saltak forlengelse
🧱 Tre, taktekking ikke spesifisert
Saltak forlenget fra eksisterende hustak for bedre takvinkel og bæreevne
Tak over tilbygg med saltak som forlengelse av eksisterende tak
Vinduer
Fasadevindu
Antall: 1
Ett vindu i tilbygg/bod
Dører
Ytterdør til bod
Antall: 1
Ytterdør til utvendig bod
Maling
Utvendig maling
Maling av utvendige treflater på tilbygg
Tømrer
Bygging av tilbygg
🧱 Tre
Tømrerarbeid for oppføring av tilbygg/bod
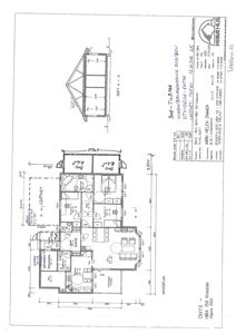
Plantegning
Enebolig 115.0 m²
Etasje 1 115.0 m²
| Rom | Areal | Vinduer | Dører |
|---|---|---|---|
| Stue 101 | 32.7 m² | 3 | 2 |
| Kjøkken 102 | 11.6 m² | 1 | 1 |
| Gang 103 | 7.0 m² | 0 | 4 |
| Soverom 1 104 | 12.0 m² | 1 | 1 |
| Soverom 2 105 | 9.8 m² | 1 | 1 |
| Soverom 3 106 | 9.9 m² | 1 | 1 |
| Bod/Vask 107 | 8.3 m² | 1 | 1 |
| Soverom 4 108 | 4.8 m² | 1 | 1 |
| Bod 109 | 6.3 m² | 1 | 1 |
| Bod 110 | 8.6 m² | 1 | 1 |
| Bod 111 | 8.6 m² | 1 | 1 |
| Carport 112 | 36.0 m² | 0 | 1 |
Fasader
Carport
Vest
- Materiale
- Tre
- Taktype
- Saltak
- Vinduer
- 0
- Dører
- 0
- Synlige etasjer
- 1
Nord
- Materiale
- Tre
- Taktype
- Saltak
- Vinduer
- 0
- Dører
- 0
- Synlige etasjer
- 1
Sør
- Materiale
- Tre
- Taktype
- Saltak
- Vinduer
- 0
- Dører
- 0
- Synlige etasjer
- 1
Øst
- Materiale
- Tre
- Taktype
- Saltak
- Vinduer
- 0
- Dører
- 0
- Synlige etasjer
- 1
Hendelser
13.04.2026
Ferdigattest - 12/121
09.04.2026
Stadfesting på mottatt søknad - Ferdigattest - 12/121
07.04.2026
Søknad om ferdigattest - 12/121
10.03.2025
Igangsetjingsløyve - Endring av bygg - utvendig tilbygg/bod - 12/121
27.02.2025
Søknad om tiltak utan ansvarsrett - 12/121