Extension UnderBehandling Enebolig

Tilbygg og bruksendring på enebolig i Strandengveien 16, Vollen

📍 Strandengveien 16 , 1407 VINTERBRO

Nøkkelinfo

Sakstype
Tilbygg
Bygningstype
Enebolig
Bruksareal
207 m²
Boenheter
1
Kommune
Asker
Fylke
Akershus
Gnr / Bnr
76 / 212
Saksnummer
24/664
Fase
Under behandling

Om byggesaken

Prosjektet omfatter et tilbygg i ett plan på eksisterende enebolig i Strandengveien 16, som inkluderer nytt kjøkken og spisestue, samt innbygging av eksisterende inngangsparti til vindfang. I tillegg utvides og bruksendres en del av eksisterende garasje/anneks til soveanneks med bad, mens garasjedelen opprettholdes. Tilbygget underordner seg hovedhuset og kobles sammen med et lite mellombygg. Bygningene har saltak og flatt tak, og fasadene er i tre med videreføring av eksisterende materialbruk og farger. Totalt tilbyggsareal er ca. 65 m², med eksisterende bebyggelse på ca. 142 m². Prosjektet er tilpasset kulturmiljøet og terrenget, og det er gjennomført uavhengig kontroll av våtrom. Det er én trapp i hovedhuset, og garasjen har port. Det foreligger rammetillatelse og pågående bygging med planlagt ferdigstillelse høst 2026.

Produkter og materialer

Vinduer Fasadevindu i tre

🧱 Tre med glass

Antall: 21

Vinduer i hovedhus og anneks, inkludert nye og eksisterende, med justeringer for blending

Vinduer til fasader, inkludert nye vinduer i tilbygg og anneks

Fasade Trepanel fasade

🧱 Tre

Fasader viderefører eksisterende materialbruk og farge, tilpasset kulturmiljø

Trepanel til fasader på tilbygg og anneks

Bad Nytt bad i anneks og tilbygg

Antall: 2

Nytt bad i tilbygg hovedhus og i anneks (bruksendring)

Bad med våtromsstandard, krever sanitærmelding og uavhengig kontroll

Gulv Innvendig gulv i tilbygg og anneks

Innvendige gulv i tilbygg og anneks

Garasjeport Dobbelgarasjeport

Antall: 1

Garasjeport til dobbelgarasje på 45 m²

Garasjeport for dobbelgarasje

Tak Saltak og flatt tak

🧱 Takstein og membran

Hovedhus med saltak, tilbygg og anneks med flatt/pulttak

Taktekking for hovedhus og tilbygg/anneks

Isolasjon Isolasjon i vegger og tak

Isolasjon for nye vegger og tak i tilbygg og anneks

Elektro Elektrisk installasjon

Elektriske installasjoner i tilbygg og anneks

Trapper Innvendig trapp i hovedhus

Antall: 1

Eksisterende trapp i hovedhus opprettholdes

Tømrer Bindingsverk og konstruksjon

🧱 Tre

Bindingsverk for tilbygg og anneks, inkludert mellombygg

Tømrerarbeid for konstruksjon og innbygging av inngangsparti

Mur Fundament og plate på mark

🧱 Betong

Støpt plate for tilbygg og fundament for mellombygg

Betongfundament og plate på mark for tilbygg

Dører Ytterdører i tre

🧱 Tre med glassfelt

Antall: 8

Ytterdører til hovedhus, anneks og tilbygg, inkludert vindfangsdør

Ytterdører til bolig og anneks

VVS Sanitærinstallasjoner

Sanitærmelding kreves for nytt bad og våtrom

VVS-installasjoner for nytt bad og vaskerom

Maling Utvendig og innvendig maling

Maling av trepanel og innvendige overflater i tilbygg og anneks

Overflatebehandling av fasader og innvendige vegger

Ventilasjon Mekanisk ventilasjon

Ventilasjon i nytt bad og kjøkken i tilbygg

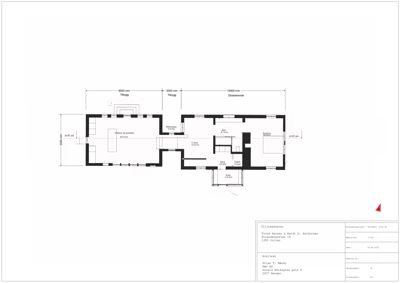
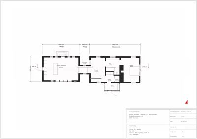
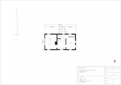
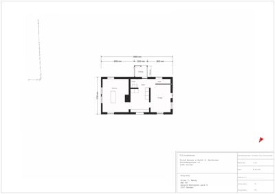
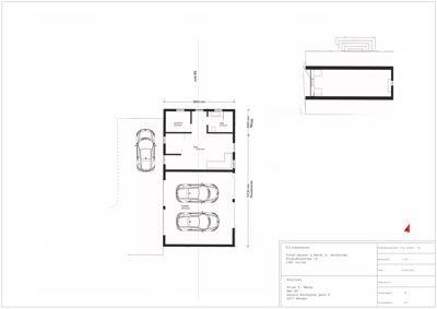
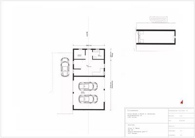
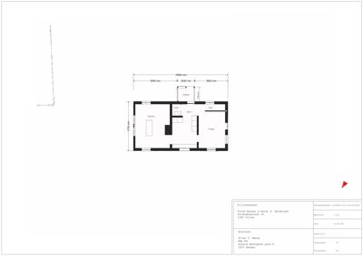
Plantegning

Enebolig 81.4 m²

Etasje 0 0.0 m²

Rom Areal Vinduer Dører
Garasje 001 0.0 m² 0 0
Garasje 002 0.0 m² 0 0
Tilbygg 003 0.0 m² 2 1

Etasje 1 81.4 m²

Rom Areal Vinduer Dører
Stue 101 22.6 m² 1 2
Soverom 102 9.9 m² 1 1
Bad 103 5.9 m² 0 1
Garasje 104 43.0 m² 0 1
Wc 105 1.2 m² 0 1
Entre 106 4.4 m² 0 1
Bad 107 8.0 m² 0 1
Soverom 108 17.4 m² 2 1
Dobbelgarasje 01 45.0 m² 0 1
Soveannex 02 20.2 m² 0 1

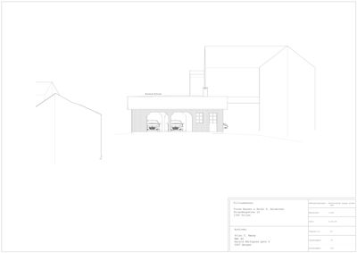
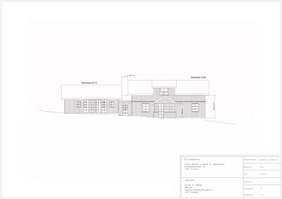
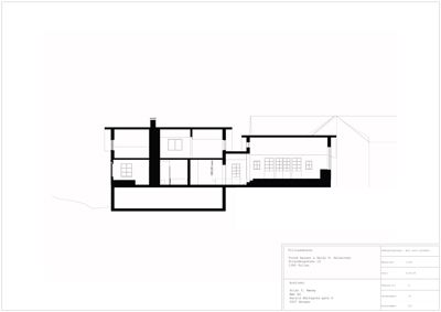
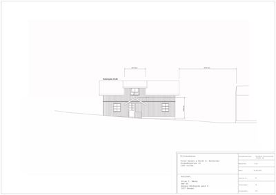
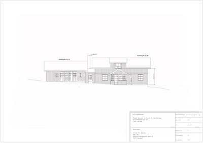
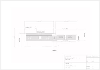
Fasader

Hovedhus

Vest
Materiale
Tre
Taktype
Saltak
Høyde
2.1 m
Mønehøyde
5.7 m
Vinduer
4
Dører
1
Synlige etasjer
2
Nord
Materiale
Tre
Taktype
Flatt tak
Høyde
4.8 m
Mønehøyde
7.1 m
Vinduer
5
Dører
1
Synlige etasjer
2
Øst
Materiale
Tre
Taktype
Saltak
Høyde
3.5 m
Mønehøyde
26.2 m
Vinduer
4
Dører
1
Synlige etasjer
2
Sør
Materiale
Tre
Taktype
Saltak
Høyde
2.2 m
Mønehøyde
3.4 m
Vinduer
3
Dører
1
Synlige etasjer
1

Annekset

Øst
Materiale
Tre
Taktype
Flatt tak
Vinduer
2
Dører
1
Synlige etasjer
1

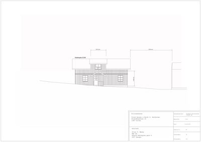
Hovedbygg

Nord
Taktype
Valmtak
Vinduer
0
Dører
0
Synlige etasjer
1

Tilbygg

Ukjent
Materiale
Betong
Taktype
Flatt tak
Høyde
2.6 m
Vinduer
2
Dører
1
Synlige etasjer
1

Eksisterende

Ukjent
Materiale
Betong
Taktype
Flatt tak
Vinduer
2
Dører
1
Synlige etasjer
1

Hendelser

08.04.2026 76/212 Strandengveien 16 - Supplering av søknad søknad
14.12.2025 76/212 Strandengveien 16 - Ufullstendig søknad om midlertidig brukstillatelse midlertidig_brukstillatelse
01.12.2025 76/212 Strandengveien 16 - Søknad om midlertidig brukstillatelse midlertidig_brukstillatelse
20.06.2025 76/212 Strandengveien 16 - E-postkorrespondanse vedr mulig forsøpling - Saken er ryddet opp i av tiltakshaver, sak avsluttet
23.07.2024 76/212 Strandengveien 16 - Gebyr tilknyttet vedtak datert 05.07.24 vedtak
19.07.2024 76/212 Strandengveien 16 - Tillatelse til tiltak i ett trinn, tilbygg til enebolig og tilbygg til og delvis bruksendring av sidebygning byggetillatelse
17.06.2024 76/212 Strandengveien 16 - Supplering av søknad søknad
07.06.2024 76/212 Strandengveien 16 - Spørsmål om blending av et vindu
06.06.2024 76/212 Strandengveien 16 - Oversender uttalelsen fra fylkeskommunen
06.06.2024 76/212 Strandengveien 16 - Svar fra kommunen vedr. at erklæring om ansv rett er
06.06.2024 76/212 Strandengveien 16 - Svar vedr. blending av vindu
05.06.2024 76/212 Strandengveien 16 - Oppsummering av avklarende møte vedr. tegninger
05.06.2024 76/212 Strandengveien 16 - Foreløpig svar fra ansvarlig søker samt oversendelse av erklæring om ansvarsrett
16.05.2024 76/212 Strandengveien 16 - Uttalelse
06.05.2024 76/212 Strandengveien 16 - Supplering av søknad søknad
23.04.2024 76/212 Strandengveien 16 - Tilbakemelding
23.04.2024 76/212 Strandengveien 16 - Anmodning om uttalelse - Tilbygg til bolig/uthus og bruksendring del av garasje/anneks
19.04.2024 76/212 Strandengveien 16 - Ber om status i saken
23.02.2024 76/212 Strandengveien 16 - Søknad om tilbygg til bolig/uthus og bruksendring del av garasje/anneks søknad