Extension Soeknad Enebolig

Tilbygg på enebolig i Strandvegen 9, Nesna

📍 Strandvegen 9 , 8700 NESNA

Nøkkelinfo

Sakstype
Tilbygg
Bygningstype
Enebolig
Bruksareal
60 m²
Boenheter
1
Kommune
Nesna
Fylke
Nordland - Nordlánnda
Gnr / Bnr
57 / 339
Saksnummer
2026/1864
Fase
Søknad

Om byggesaken

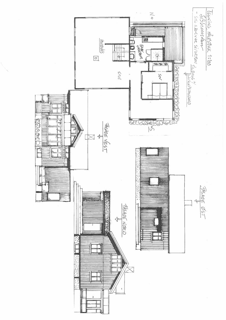
Ny utvidelse av eksisterende enebolig i Strandvegen 9 med et tilbygg på ca. 60 m². Tilbygget tilpasses eksisterende bygg og skal oppfylle livsløpsstandard, noe som innebærer tilgjengelighet og funksjonalitet for alle livsfaser. Bygget er i én etasje med trekledning og flatt tak, og inkluderer ett trappetrinn i hovedhuset. Prosjektet omfatter både innvendig og utvendig tømrerarbeid, samt nødvendige konstruksjonsberegninger. Tilknytning til offentlig avløpsanlegg er bekreftet, og tiltaket påvirker ikke eksisterende vann- eller strømnett. Nabovarsel er gjennomført uten merknader.

Produkter og materialer

VVS Vann og avløp

Tilknytning til offentlig avløpsanlegg

Nødvendige VVS-installasjoner for tilbygg, inkludert tilknytning til offentlig avløp

Trapper Innvendig trapp

Antall: 1

Én trapp i hovedhus

Eksisterende trapp i hovedhus berøres av tilbygget

Betong Fundament og plate på mark

Betongfundament og plate for tilbygget

Isolasjon Vegger og tak

Isolasjon for vegger og tak i tilbygget for energikrav og komfort

Grunnarbeid Fundamentering og grunnarbeid

Grunnarbeid for nytt tilbygg på eksisterende fundament

Dører Ytterdør

Ytterdør i tilbygget tilpasset eksisterende bygg

Vinduer Fasadevindu

Vinduer tilpasset fasade og livsløpsstandard, antall og type ikke spesifisert

Tømrer Inn- og utvendig tømrerarbeid

Innvendig og utvendig tømrerarbeid for tilbygg

Utførelse av konstruksjoner, vegger, tak og innvendige arbeider

Fasade Trekledning

🧱 Tre

Fasade i tre med flatt tak

Yttervegger kledd med trepanel som matcher eksisterende bygg

Tak Flatt tak

Flatt tak på tilbygget

Tak med flatt tak som tilpasses eksisterende bygg

Plantegning

Hovedhus 0.0 m²

Etasje 1 0.0 m²

Rom Areal Vinduer Dører
Stue 101 0.0 m² 0 0
Sov 102 0.0 m² 0 0
Bad/Vaskerom 103 0.0 m² 0 0

Fasader

Hovedbygg

Vest
Materiale
Tre
Taktype
Flatt tak
Vinduer
0
Dører
1
Synlige etasjer
1
Nord
Materiale
Tre
Taktype
Flatt tak
Vinduer
0
Dører
1
Synlige etasjer
1

Hendelser

13.04.2026 Strandvegen 9 - Søknad om tillatelse i ett trinn 57/339