Extension Rammetillatelse Enebolig

Tilbygg og fasadeendring på enebolig i Sveåsen 39

📍 Sveåsen 39

Nøkkelinfo

Sakstype
Tilbygg
Bygningstype
Enebolig
Bruksareal
230 m²
Boenheter
1
Kommune
Alver
Fylke
Vestland
Gnr / Bnr
322 / 287
Saksnummer
2024/12842
Fase
Rammetillatelse

Om byggesaken

Ny utvidelse av eksisterende enebolig på Sveåsen 39 med en tilbygg på ca. 14 m², som øker boligens totale bruksareal til ca. 230 m². Tilbygget inkluderer etablering av nytt kjøkken og bad i 1. etasje, samt en mindre fasadeendring som opprettholder husets arkitektoniske uttrykk og materialbruk i tre med saltak. Boligen har to etasjer, carport, sportsbod og en innvendig trapp. Det settes inn nytt vindu mot naboeiendom, og tiltaket er plassert i tråd med reguleringsplan og byggegrenser. Det etableres ikke ny boenhet, men boligen tilpasses for samboende familie med behov for omsorg.

Produkter og materialer

Ventilasjon Mekanisk ventilasjon

Ventilasjonssystem prosjektert av VENTY AS

Mekanisk ventilasjon i bolig

Grunnarbeid Fundamentering og planering

Grunnarbeid og fundamentering iht. godkjent plan

Grunnarbeid for tilbygg og eksisterende bolig

Vinduer Fasadevindu

🧱 tre med 3-lags energiglass

Antall: 7

Nytt vindu mot gbnr 322/286, totalt 7 fasadevinduer i tre

Fasadevinduer i tre med energiglass, inkludert nytt vindu i tilbygg

VVS Sanitærinstallasjoner

Innvendige sanitærinstallasjoner for bad, vask og kjøkken

VVS-installasjoner for sanitær og kjøkken

Gulv Parkett

🧱 eik eller tilsvarende

Parkettgulv i oppholdsrom

Parkettgulv i stue og kjøkken

Dører Ytterdører og carportdør

🧱 tre eller tilsvarende

Antall: 6

Ytterdører i fasade, dør til carport og sportsbod

Ytterdører i tre til bolig, carport og sportsbod

Fasade Trepanel

🧱 tre

Trepanel som fasademateriale, fasadeendring i tilbygg

Trepanel som fasade, fasadeendring i forbindelse med tilbygg

Tømrer Bygging av tilbygg og bærende konstruksjoner

🧱 tre

Tømrerarbeid for tilbygg og fasadeendring

Tømrerarbeid i tre for tilbygg og fasade

Trapper Innvendig trapp

🧱 tre eller tilsvarende

Antall: 1

Innvendig trapp mellom 1. og 2. etasje

Innvendig trapp i bolig

Bad Sanitærutstyr og fliser

Bad og vaskerom med sanitærinstallasjoner og flislagte gulv/vegger

Sanitærutstyr og fliser i bad og vaskerom

Betong Fundament og plate

Betongarbeid for fundament og plate

Betongarbeid for bolig og tilbygg

Garasjeport Carport port

Antall: 1

Carport med port

Carport med port til bolig

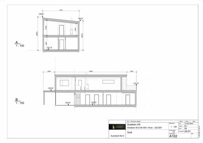
Tak Saltak

🧱 tre, takstein eller tilsvarende

Antall: 1

Saltak med gesimshøyde 6,5 m og mønehøyde 8,2 m

Saltak i tre med tradisjonell taktekking

Elektro Elektrisk anlegg

Elektrisk anlegg i bolig iht. forskrift

Elektrisk installasjon for bolig

Maling Utvendig og innvendig maling

Maling av trepanel og innvendige flater

Maling av fasade og innvendige overflater

Pipe Peisinnsats og pipe

Antall: 1

Eksisterende pipe med peisinnsats

Pipe og peisinnsats i bolig

Plantegning

Enebolig 241.0 m²

Etasje 1 120.5 m²

Rom Areal Vinduer Dører
Kjøkken/Stue 101 28.2 m² 1 1
Sov 102 7.5 m² 1 1
Vask 103 5.9 m² 0 1
Sov 104 8.6 m² 1 1
Gang 105 3.7 m² 0 2
Bad/Vask 106 4.8 m² 0 1
Bad 107 6.0 m² 0 1
Bod 108 5.7 m² 0 1
Gang/Trapp 109 10.5 m² 0 1
Carport 110 21.6 m² 0 1
Sportsbod 111 5.3 m² 0 1
Sov 322 9.2 m² 1 1

Etasje 2 120.5 m²

Rom Areal Vinduer Dører
Kjøkken/Stue 201 66.2 m² 1 1
Sov 202 15.4 m² 1 1
Bad 203 8.9 m² 0 1

Fasader

Enebolig

Sørøst
Materiale
Tre
Taktype
Saltak
Vinduer
3
Dører
1
Balkonger
1
Synlige etasjer
2
Sørvest
Materiale
Tre
Taktype
Saltak
Høyde
6.5 m
Mønehøyde
8.2 m
Vinduer
5
Dører
1
Synlige etasjer
2
Nordvest
Materiale
Tre
Taktype
Saltak
Høyde
6.5 m
Mønehøyde
8.2 m
Vinduer
1
Dører
1
Synlige etasjer
2
Nordøst
Materiale
Tre
Taktype
Saltak
Høyde
6.5 m
Mønehøyde
8.2 m
Vinduer
3
Dører
1
Synlige etasjer
2

Hendelser

14.04.2026 Brev - uteglemt vedlegg til endringsvedtak - gbnr. 322/287 Sveåsen 39
23.03.2026 Svar i sak - gbnr. 322/287
19.03.2026 Tilbakemelding på endringsløyve til oppføring av einebustad - gbnr. 322/287 - Sveåsen 39
17.03.2026 Mulig avvik fra godkjent tegning - Sveåsen 39 - gbnr. 322/287
28.10.2025 Vi ber om tilleggsinformasjon til søknaden - gbnr. 322/287 Sveåsen 39 - Endring tillatelse
20.10.2025 Endringsløyve til oppføring av einebustad - gbnr. 322/287 - Sveåsen 39
14.10.2025 Supplering av søknad - gbnr. 322/287 - Sveåsen 39
29.09.2025 Søknad om endring av gitt tillatelse eller godkjenning - gbnr. 322/287 Sveåsen 39 - b1a-06