Extension Soeknad Enebolig

Utvidelse av altan og pergola i Svennengveien 2B, Bodø

📍 Svennengveien 2A , 8010 BODØ

Nøkkelinfo

Sakstype
Tilbygg
Bygningstype
Enebolig
Bruksareal
10 m²
Boenheter
1
Kommune
Bodø
Fylke
Nordland - Nordlánnda
Gnr / Bnr
31 / 419
Saksnummer
2026/16783
Fase
Søknad

Om byggesaken

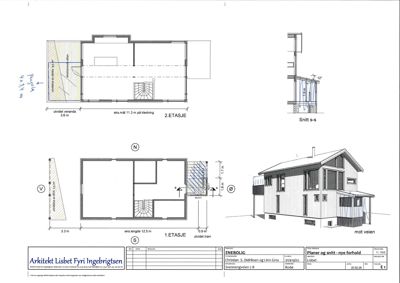
Utvidelse av eksisterende altan i andre etasje med 9,5 m² og oppføring av en pergola med tak, glassvegger og skyvedør på deler av altanen, under 15 m². Pergolaen monteres fast i eksisterende husvegg og plasseres inntil 2 meter fra nabogrense mot vest. Tiltaket har brannteknisk utførelse i henhold til TEK17 og er tilpasset for å ivareta lys, luft og innsynsforhold. Altanen og pergolaen gir økt bokvalitet og funksjonelt uterom med solskjerming som reduserer behov for kjøling. Bygningen er en to-etasjes trehus med saltak, og tiltaket integreres arkitektonisk med eksisterende fasade.

Produkter og materialer

Tak Pergolatak

Tak på pergola for værbeskyttelse

Fasade Altan utvidelse

🧱 Tre

Utvidelse av eksisterende altan med 9,5 m² i andre etasje

Bygningsmessig utvidelse av altan i tre, tilpasset eksisterende fasade

Brannvern Brannteknisk utførelse

Utført i henhold til TEK17 for brannsikring mot nabogrense

Branntekniske tiltak for å ivareta sikkerhet ved redusert avstand til nabogrense

Tømrer Bygningskonstruksjon

🧱 Tre

Tømrerarbeid for utvidelse av altan og oppføring av pergola

Fasade Pergola med tak og glassvegger

🧱 Tre, glass

Antall: 1

Pergola med tak, glassvegger og skyvedør, under 15 m², montert i husvegg

Pergola som gir solskjerming og værbeskyttelse på altan

Grunnarbeid Fundamentering for pergola og altan

Grunnarbeid for å sikre stabilitet for utvidet altan og pergola

Vinduer Glassvegger i pergola

🧱 Glass

Glassvegger med skyvedør i pergola

Vinduer/glassvegger for pergola som delvis lukker uterommet

Fasader

Enebolig

Nord
Materiale
Tre
Taktype
Saltak
Vinduer
4
Dører
2
Balkonger
1
Synlige etasjer
2
Vest
Materiale
Tre
Taktype
Saltak
Vinduer
4
Dører
1
Balkonger
1
Synlige etasjer
2
Sør
Materiale
Tre
Taktype
Saltak
Vinduer
5
Dører
1
Balkonger
1
Synlige etasjer
2
Øst
Materiale
Tre
Taktype
Saltak
Vinduer
4
Dører
1
Synlige etasjer
2

Hendelser

21.04.2026 Søknad om dispensasjon - Svennengveien 2B
20.04.2026 Bekreftelse på mottatt søknad - Svennengveien 2B