Extension UnderBehandling Enebolig

Tilbygg med tak over veranda på Tangevegen 31

📍 Tangevegen 31 , 6885 ÅRDALSTANGEN

Nøkkelinfo

Sakstype
Tilbygg
Bygningstype
Enebolig
Bruksareal
27 m²
Boenheter
1
Kommune
Årdal
Fylke
Vestland
Gnr / Bnr
12 / 5
Saksnummer
2026/447
Fase
Under behandling

Om byggesaken

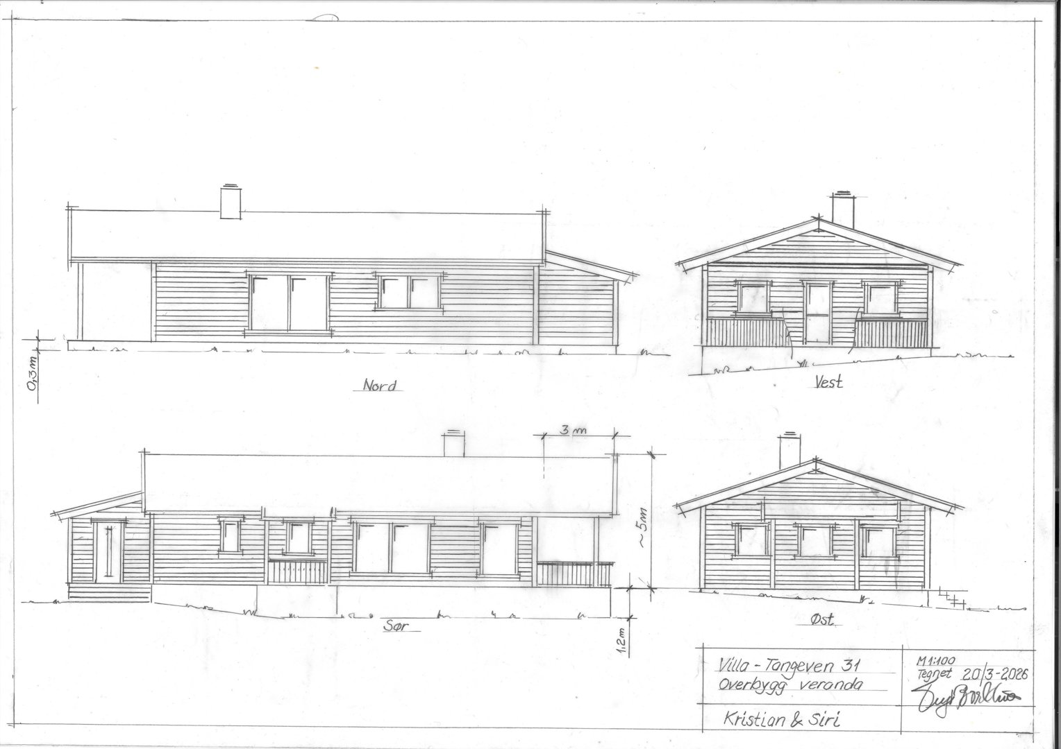
Ny tilbygg på 27,3 m² med tak over eksisterende terrasse på enebolig i Tangevegen 31. Taket er en forlengelse av eksisterende saltak med samme høyde som hovedtaket. Tilbygget plasseres på fasade mot vest og har trevegger. Bygget ligger 15 meter fra senterlinjen på fylkesveg 53 og 7 meter fra gang- og sykkelveg. Det medfører ingen endring i vann- og avløpsløsninger, og det er ikke behov for ytterligere grunnarbeid eller skredutredning. Fasaden er i tre med saltak, og tiltaket er vurdert til å ha god visuell kvalitet og tilfredsstiller krav til støy og luftkvalitet.

Produkter og materialer

Tømrer Bygging av tilbygg og takoverbygg veranda

🧱 Treverk

Antall: 1

Oppføring av tilbygg på 27,3 m² med tak over veranda

Tømrerarbeid for oppføring av tilbygg og tak over veranda

Vinduer Fasadevindu i tilbygg

Ikke spesifisert, men tilbygg vil normalt inkludere vinduer tilpasset fasaden

Vinduer til tilbygg for naturlig lys og ventilasjon

Tak Saltak for tilbygg og tak over veranda

🧱 Tre, samme materiale og høyde som eksisterende tak

Antall: 1

Forlengelse av eksisterende saltak med samme høyde som hovedtaket

Tak over eksisterende terrasse som en forlengelse av hovedtaket

Dører Ytterdør til tilbygg/veranda

Ikke spesifisert, men tilbygg kan inkludere dør til veranda

Dør til tilbygg/veranda for adkomst

Maling Utvendig maling av tilbygg

Tilbyggets trevegger må males for værbestandighet og estetikk

Maling av utvendige treflater på tilbygg

Fasade Trevegger for tilbygg

🧱 Tre

Tilbyggets vegger i tre, tilpasset eksisterende fasade

Vegger i tre som matcher eksisterende fasade på eneboligen

Grunnarbeid Fundamentering for tilbygg

Antall: 1

Ingen omfattende graving, punktbelastning vurdert som svært begrenset

Fundamentering for tilbygg uten behov for omfattende grunnarbeid

Fasader

Villa

Nord
Materiale
Tre
Taktype
Flatt tak
Høyde
3.3 m
Vinduer
2
Dører
0
Synlige etasjer
1
Vest
Materiale
Tre
Taktype
Saltak
Vinduer
2
Dører
1
Synlige etasjer
1
Sør
Materiale
Tre
Taktype
Saltak
Høyde
5.0 m
Vinduer
4
Dører
1
Balkonger
1
Synlige etasjer
1
Øst
Materiale
Tre
Taktype
Saltak
Vinduer
3
Dører
0
Synlige etasjer
1

Hendelser

16.04.2026 Delegert vedtak 26/110 - Løyve til mindre fasadeendring på gnr 5 bnr 12, Tangevegen 31, 6885 Årdalstangen
08.04.2026 Revidert dispensasjon frå byggegrense - fv. 53 - tilbygg - gnr. 5 bnr. 12 - Årdal kommune
27.03.2026 Søknad om tillatelse til tiltak - skifte tak på huset og lage tak over verandaen
26.03.2026 Dispensasjon frå byggegrense - fv. 53 - tilbygg - gnr. 12 bnr. 5 - Årdal kommune