FloorPlan
Etasjeplan (1. etasje) med romfordeling, mål og utvendige områder.
1 / 1
Extension
Soeknad
Enebolig
Utvidelse av kjøkken ved flytting av vegg i Thorsholmen 12
📍 Thorsholmen 12 , 3209 SANDEFJORD
Nøkkelinfo
- Sakstype
- Tilbygg
- Bygningstype
- Enebolig
- Bruksareal
- 6 m²
- Boenheter
- 1
- Kommune
- Sandefjord
- Fylke
- Vestfold
- Gnr / Bnr
- 129 / 212
- Saksnummer
- 2026/10550
- Fase
- Søknad
Om byggesaken
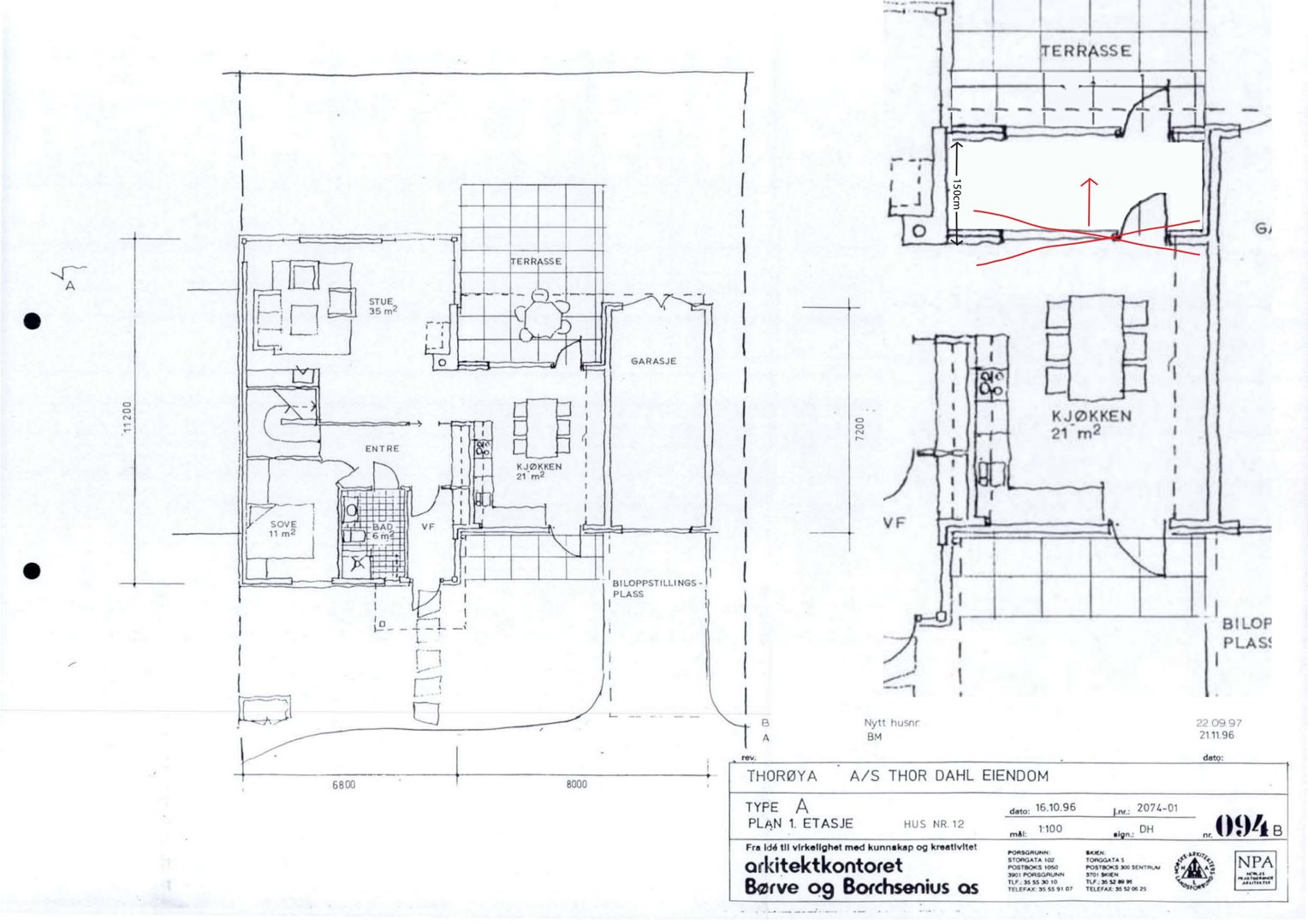
Kjøkkenet i eneboligen på Thorsholmen 12 utvides ved å flytte ytterveggen ca. 1,5 meter ut slik at den flukter med garasjeveggen. Dette medfører en økning av boarealet med ca. 6,3-6,4 m². Endringen innebærer ikke tak- eller bærende konstruksjonsendringer, da eksisterende tak og bæring allerede dekker den nye veggplasseringen. Den nye planløsningen fjerner et lite innhogg som tidligere var til en liten lekrork, og gir et mer sammenhengende kjøkkenareal. Boligen har totalt 103 m² og består av stue, kjøkken, soverom, bad, entre og garasje.
Produkter og materialer
VVS
Kjøkkenvann og avløp
Tilpasning av vann- og avløpsinstallasjoner i utvidet kjøkken
Tømrer
Innvendig vegg og gulvarbeid
Arbeid med flytting av vegg, tilpasning av gulv og innvendige overflater i kjøkkenet
Gulv
Kjøkkengulv
Nytt gulv i utvidet kjøkkenareal
Vinduer
Fasadevindu
Antall: 0
Ingen nye vinduer i kjøkkenet
Ingen endring i vinduer i forbindelse med utvidelsen
Elektro
Kjøkkeninstallasjoner
Tilpasning av elektriske installasjoner i utvidet kjøkken
Fasade
Yttervegg
Antall: 1
Flytting av yttervegg ca. 1,5 meter ut, flukt med garasjevegg
Ny yttervegg for utvidelse av kjøkken, tilpasset eksisterende konstruksjon uten endring i tak eller bæring
Plantegning
Enebolig 103.0 m²
Etasje 1 103.0 m²
| Rom | Areal | Vinduer | Dører |
|---|---|---|---|
| Stue 101 | 35.0 m² | 1 | 1 |
| Kjøkken 102 | 21.0 m² | 0 | 1 |
| Sove 103 | 11.0 m² | 1 | 1 |
| Bad 104 | 6.0 m² | 0 | 1 |
| Entre 105 | 0.0 m² | 0 | 0 |
| Garasje 106 | 0.0 m² | 0 | 1 |
Hendelser
16.04.2026
Gbnr 129/212 - Thorsholmen 12 - Spørsmål vedr flytting av vegg