Facade
Penselt tegning som viser fasaden (fra vest) til en planlagt bygning.
1 / 7
Extension
Rammetillatelse
Enebolig
Tilbygg til enebolig i Tjønnåsvegen 4, Bø
📍 Tjønnåsvegen 4 , 3803 BØ I TELEMARK
Nøkkelinfo
- Sakstype
- Tilbygg
- Bygningstype
- Enebolig
- Bruksareal
- 36 m²
- Boenheter
- 1
- Kommune
- Midt-Telemark
- Fylke
- Telemark
- Gnr / Bnr
- 62 / 83
- Saksnummer
- 26/7197
- Fase
- Rammetillatelse
Om byggesaken
Ny tilbygg i to etasjer på eksisterende enebolig i Tjønnåsvegen 4, Bø. Tilbygget har et bruksareal på 36,4 m² og et bebygd areal på 23,1 m², med saltak som takform. Eksisterende bolig har et bruksareal på 228 m². Tilbygget inkluderer nye fasader med totalt 3 vinduer på østfasaden og er integrert med eksisterende bygg. Bygget er regulert som frittliggende småhusbebyggelse og oppfyller gjeldende reguleringsplan og tekniske krav. Det er én trapp i boligen, og fasadene har flere vinduer og dører, inkludert garasjeport på nordfasaden.
Produkter og materialer
Dører
Ytterdør
Antall: 1
Dør i tilbygg og eksisterende bygg
Ytterdør til tilbygg og eksisterende bolig
Grunnarbeid
Fundamentering og grunnarbeid
Prosjektering og utførelse av grunnarbeid
Grunnarbeid for tilbygg, inkludert fundamentering
Tømrer
Bygningsmessige arbeider
Utførelse av bygningsmessige arbeider for tilbygg
Tømrerarbeid for oppføring av tilbygg
Fasade
Fasadevindu
Antall: 3
Vinduer på østfasade til tilbygg
Nye fasadevinduer i tilbygg på østfasade
Trapper
Innvendig trapp
Antall: 1
En trapp i boligen
Innvendig trapp mellom etasjer i bolig
Tak
Saltak
Antall: 1
Saltak på tilbygg og eksisterende bygg
Saltak som takform på tilbygg og eksisterende bolig
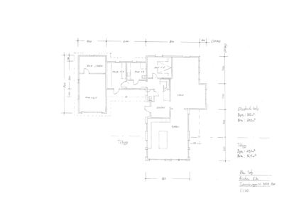
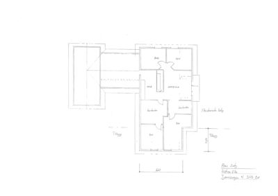
Plantegning
Enebolig 228.0 m²
Etasje 1 228.0 m²
| Rom | Areal | Vinduer | Dører |
|---|---|---|---|
| Stue 101 | 0.0 m² | 0 | 1 |
| Kjøkken 102 | 0.0 m² | 0 | 1 |
| Entré 103 | 0.0 m² | 0 | 0 |
| Bad 104 | 7.8 m² | 0 | 1 |
| Vaskerom 105 | 10.5 m² | 0 | 1 |
| Bod / Teknisk 106 | 0.0 m² | 0 | 1 |
| Garasje 107 | 0.0 m² | 0 | 1 |
Etasje 2 0.0 m²
| Rom | Areal | Vinduer | Dører |
|---|---|---|---|
| Sov 201 | 0.0 m² | 0 | 1 |
| Garderobe 202 | 0.0 m² | 0 | 1 |
| Sov 203 | 0.0 m² | 0 | 1 |
| Garderobe 204 | 0.0 m² | 0 | 1 |
| Opphold 205 | 0.0 m² | 0 | 1 |
| ARB 206 | 0.0 m² | 0 | 1 |
| Sov 207 | 0.0 m² | 0 | 1 |
| BAD 208 | 0.0 m² | 0 | 1 |
Fasader
Enebolig
Vest
- Taktype
- Saltak
- Vinduer
- 7
- Dører
- 1
- Balkonger
- 1
- Synlige etasjer
- 2
Nord
- Taktype
- Saltak
- Vinduer
- 5
- Dører
- 2
- Synlige etasjer
- 2
Eksisterende
Øst
- Taktype
- Saltak
- Vinduer
- 2
- Dører
- 0
- Synlige etasjer
- 1
Tilbygg
Øst
- Taktype
- Saltak
- Vinduer
- 3
- Dører
- 0
- Synlige etasjer
- 1
Hendelser
15.04.2026
Tillatelse til tiltak - 62/83 - Tjønnåsvegen 4 - Tilbygg til enebolig
09.04.2026
Søknad om tillatelse i ett trinn 62/83