Extension Ferdigattest Enebolig

Tilbygg og påbygg til enebolig i Trondheimsveien 130

📍 Trondheimsveien 130 , 2020 SKEDSMOKORSET

Nøkkelinfo

Sakstype
Tilbygg
Bygningstype
Enebolig
Bruksareal
321 m²
Boenheter
1
Kommune
Lillestrøm
Fylke
Akershus
Gnr / Bnr
37 / 789
Saksnummer
24/21294
Fase
Ferdigattest

Om byggesaken

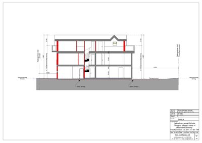
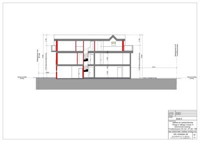
Ny tilbygg og påbygg i to etasjer til eksisterende enebolig i Trondheimsveien 130 med totalt bruttoareal på 321 m². Prosjektet inkluderer riving av eksisterende garasje og oppføring av nytt tilbygg på 211 m² BRA, med samlet BYA på 137,6 m². Bygget har saltak med teglstein, trekledning på fasader og omfattende planendringer i 1., 2. og 3. etasje. Det er etablert to balkonger i 3. etasje og en garasje på 30 m². Overvannshåndtering er planlagt med infiltrasjon og fordrøyningsmagasiner på tomten, og terreng er justert for å sikre flomveier og unngå skade på naboeiendommer. Bygget har 1 boenhet og inkluderer tekniske rom, flere bad, kjøkken, stuer og soverom fordelt på fire etasjer inklusive underetasje.

Produkter og materialer

VVS Vannbåren varme

Vannbåren varme installert i bolig

Oppvarmingssystem med vannbåren varme

Kjøkken Kjøkkeninnredning

Antall: 2

Kjøkken i 1. etasje og underetasje med standard innredning

Kjøkkeninnredning i bolig

VVS Overvannshåndtering

🧱 Pukk, sandfangkummer, infiltrasjonskum

Overvannshåndtering med infiltrasjon, fordrøyningsmagasiner på ca 3,5-13,4 m3 volum, åpne vannveier og pukk i adkomstveg

System for håndtering av overvann på tomt med infiltrasjon og fordrøyning

Vinduer Fasadevindu

🧱 Tre/Aluminium

Antall: 38

Vinduer i fasader, totalt 38 fordelt på alle etasjer, inkludert balkongvinduer

Nye vinduer i tilbygg og påbygg, tilpasset fasadens design

Garasjeport Port til garasje

Antall: 1

Garasjeport til ny garasje på 30,24 m²

Port for biladkomst til garasje

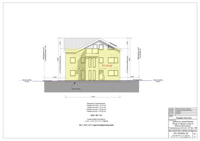
Fasade Trekledning

🧱 Tre

Fasader med liggende panel i tre, malt gul

Trekledning på alle fasader for estetisk og værbestandig overflate

Gulv Innvendige gulv

Innvendige gulv i tilbygg og påbygg, antatt standard boligmaterialer

Rekkverk Balkongrekkverk og trapperekkverk

Rekkverk på balkonger og innvendig trapp iht forskrift

Sikring av balkonger og trapper

Maling Utvendig maling

Maling av trekledning og detaljer utvendig

Overflatebehandling av fasader

Dører Ytterdører og balkongdører

🧱 Tre/Glass

Antall: 15

Ytterdører og balkongdører i tre og glass, inkludert garasjeport

Dører for inngang, balkonger og garasje

Trapper Innvendig trapp

Antall: 1

Innvendig trapp mellom etasjer

Trapp for intern adkomst i bolig

Tak Saltak med teglstein

🧱 Teglstein

Saltak med teglstein som takmateriale

Nytt saltak med teglstein på tilbygg og påbygg

Bad Baderomsinnredning

Antall: 6

6 bad fordelt på etasjer med standard baderomsinnredning

Bad med sanitærutstyr i tilbygg og påbygg

Elektro Røykvarslere og komfyrvakt

Installasjon av røykvarslere og komfyrvakt i henhold til forskrift

Brannsikkerhetsutstyr i bolig

Grunnarbeid Terrengjustering og grunnarbeid

🧱 Pukk, masser

Oppfylling og justering av terreng med pukk og masser for overvannshåndtering og adkomst

Grunnarbeid for bygg og utomhus

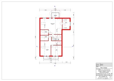
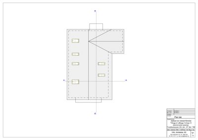
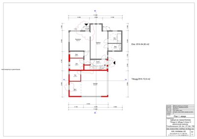
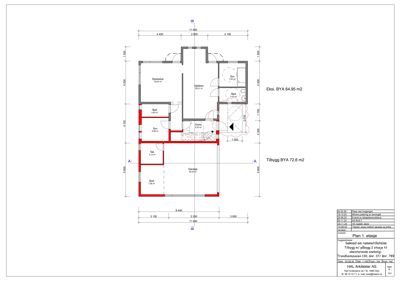
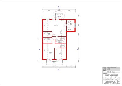
Plantegning

Enebolig 466.1 m²

Etasje 3 102.4 m²

Rom Areal Vinduer Dører
TV Stue 301 12.7 m² 0 1
Ekstra stue 302 30.6 m² 1 1
Sov 303 8.9 m² 1 1
Sov 304 10.5 m² 1 1
Bad 305 2.8 m² 0 1
Bad 306 2.8 m² 0 1
Gang 307 14.0 m² 0 0

Etasje 1 137.5 m²

Rom Areal Vinduer Dører
Spisestue 101 18.0 m² 1 1
Kjøkken 102 25.0 m² 0 1
Sov 103 7.0 m² 0 1
Bad 104 4.2 m² 0 1
Bad 105 3.9 m² 0 1
Sov 106 7.0 m² 0 1
Entre 107 4.5 m² 0 2
Tek. 108 5.2 m² 0 1
Garasje 109 30.2 m² 1 1
Bod 110 7.6 m² 0 1

Etasje 2 105.9 m²

Rom Areal Vinduer Dører
Ekstra stue U01 30.6 m² 2 1
Sov U02 10.5 m² 1 1
Bad U03 2.8 m² 0 1
Bad U04 2.8 m² 0 1
TV Stue U05 12.7 m² 1 1
Sov U06 8.9 m² 1 1
Stue/kjøkken Stue/kjøkken 47.3 m² 2 1
Sov Sov 9.7 m² 1 0
WC WC 1.2 m² 0 1
Bad Bad 9.8 m² 0 1

Etasje 0 120.3 m²

Rom Areal Vinduer Dører
Spisestue 001 18.0 m² 1 1
Kjøkken 002 25.0 m² 1 1
Sov 003 7.0 m² 1 1
Bad 004 4.2 m² 0 1
Bad 005 3.9 m² 0 1
Sov 006 7.0 m² 0 1
Entre 007 4.5 m² 0 1
Tek. 008 5.2 m² 0 1
Garasje 009 30.2 m² 1 1
Bod 010 7.6 m² 1 1

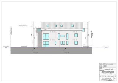
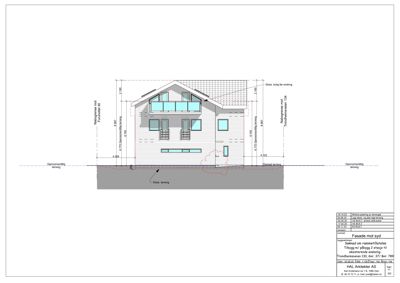
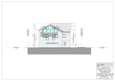
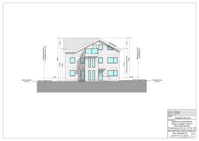
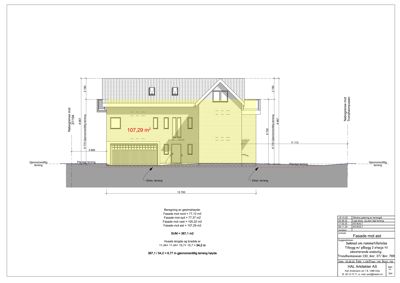
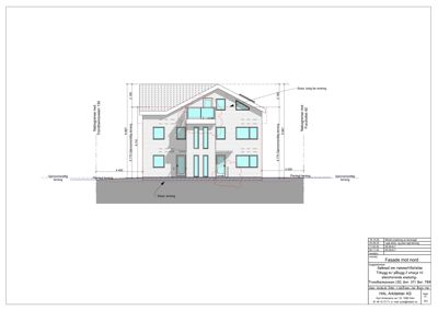
Fasader

Enebolig

Øst
Materiale
Tre
Taktype
Saltak
Takmat.
Tegl
Høyde
6.8 m
Mønehøyde
8.9 m
Vinduer
8
Dører
1
Synlige etasjer
2
Nord
Materiale
Tre
Taktype
Saltak
Takmat.
Tegl
Høyde
6.8 m
Mønehøyde
9.0 m
Vinduer
10
Dører
2
Balkonger
1
Synlige etasjer
2
Vest
Materiale
Tre
Taktype
Saltak
Takmat.
Tegl
Høyde
6.8 m
Mønehøyde
8.9 m
Vinduer
12
Dører
1
Balkonger
1
Synlige etasjer
2
Sør
Materiale
Tre
Taktype
Saltak
Takmat.
Tegl
Høyde
6.8 m
Mønehøyde
8.9 m
Vinduer
8
Dører
1
Balkonger
1
Synlige etasjer
2

Hendelser

10.04.2026 24/21294-18 37/789 Svar til varsel om stedlig tilsyn
07.04.2026 24/21294-17 37/789/0/0 Trondheimsveien 130, varsel om stedlig befaring
30.03.2026 24/21294-16 37/789 Svar vedrørende tilsynsrapport 06.02.26
06.02.2026 24/21294-15 37/789/0/0 Trondheimsveien 130, statusoppdatering av tilsynsrapport
30.01.2026 24/21294-14 37/789 Svar til tilsynsrapport med bildedokumentasjon- tilsyn ved søknad om ferdigattest
07.01.2026 24/21294-13 37/789/0/0 Trondheimsveien 130, statusoppdatering av tilsynsrapport
05.01.2026 24/21294-12 37/789 Svar vedrørende tilsynsrapport fra tilsyn
14.08.2025 24/21294-11 37/789/0/0 Trondheimsveien 130, statusoppdatering av tilsynsrapport
25.04.2025 24/21294-9 37/789/0/0 Trondheimsveien 130, statusoppdatering av tilsynsrapport
15.04.2025 24/21294-8 37/789 Tilsvar med redegjørelse for lukkede avvik