Extension Avslatt Enebolig

Tilbygg og påbygg på enebolig i Tuftaveien 19, Tønsberg

📍 Tuftaveien 19 , 3153 TOLVSRØD

Nøkkelinfo

Sakstype
Tilbygg
Bygningstype
Enebolig
Bruksareal
302 m²
Boenheter
1
Kommune
Tønsberg
Fylke
Vestfold
Gnr / Bnr
130 / 95
Saksnummer
2025/15486
Fase
Avslått

Om byggesaken

Prosjektet omfatter totalrenovering av 1. etasje, samt tilbygg på 28,8 m² og påbygg på 92 m² på en eksisterende enebolig i Tuftaveien 19, Tønsberg. Bygget har to etasjer med et samlet bruksareal på ca. 302,5 m² etter utbygging. Tilbygget og påbygget plasseres på sørvestlig side og følger eksisterende bygningslinjer med takvinkel på 16 grader, takshingel på rull og treverk som hovedmateriale. Konstruksjonen inkluderer stendere 48x148 mm, bjelkelag med 60x350 I-bjelker, limtre dragere i taket og HEB-bjelker for åpninger. Det etableres balansert ventilasjon, nye vinduer og dører med U-verdi maks 0,8, og eksisterende pipeløp rives. Fasader er i tre med saltak, og bygget har ett trappetrinn. Prosjektet inkluderer også grunnarbeid, betongfundamentering, sanitærinstallasjoner og ventilasjon.

Produkter og materialer

Grunnarbeid Utgraving og fundamentering

Graving og fundamentering utført av Gartner Gunnar AS

Grunnarbeid for tilbygg og påbygg

Tak Saltak med takshingel

🧱 Takshingel på rull, limtre dragere, W-takstoler

Tak med 16° fall, limtre dragere, W-takstoler, takshingel på rull

Nytt saltak på påbygg og tilbygg med takshingel

Vinduer Energiglass vinduer

Antall: 16

Vinduer med maksimal U-verdi 0,8

Nye vinduer til tilbygg og påbygg med energiglass

Fasade Yttervegger i treverk

🧱 Isolert stenderverk 48x148 mm med 48 mm påforing

Nye yttervegger med stendere 48x148 mm, påforing 48 mm, isolasjon og gips innvendig

Isolerte yttervegger i treverk for tilbygg og påbygg

Tømrer Treverk konstruksjon

🧱 Treverk 48x148 mm stendere, 60x350 I-bjelker

Treverk for yttervegger og bjelkelag

Tømrerarbeid for tilbygg og påbygg

Ventilasjon Balansert ventilasjon

Balansert ventilasjon installert av Bacas AS

Ventilasjonssystem for ny og eksisterende del av bolig

Stål HEB-bjelker og limtre dragere

🧱 Stål HEB-bjelker, limtre dragere

HEB-bjelker for åpninger, limtre dragere i tak

Bærende konstruksjoner i stål og limtre

Dører Ytterdører

Antall: 5

Dører med maksimal U-verdi 0,8

Nye ytterdører til tilbygg og påbygg

Trapper Innvendig trapp

Antall: 1

Eksisterende innvendig trapp i eneboligen

Isolasjon Blåseisolasjon i tak

Tak blir blåseisolert

Isolasjon i tak for påbygg og tilbygg

Betong Fundamentering og ringmur

Støpt plate og ringmur for grunnmur

Grunnarbeid med betongfundamentering og ringmur

VVS Sanitærinstallasjoner

Innvendige sanitærinstallasjoner utført av Rørleggergutta AS

Sanitærinstallasjoner for bad og vaskerom

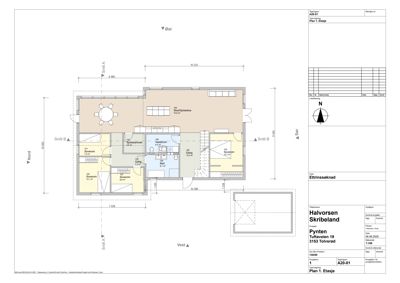
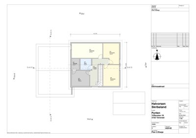
Plantegning

Enebolig 302.5 m²

Etasje 1 216.4 m²

Rom Areal Vinduer Dører
Soverom 101 7.5 m² 1 1
Soverom 102 12.1 m² 1 1
Soverom 103 8.9 m² 1 1
Soverom 104 15.7 m² 1 1
Stue/Spisestue 105 70.9 m² 3 1
Gang 106 14.2 m² 0 1
Gang 107 7.3 m² 0 1
Vaskerom 108 6.5 m² 0 1
Bad 109 8.1 m² 0 1
Spiskammer 110 4.5 m² 0 1

Etasje 2 86.1 m²

Rom Areal Vinduer Dører
Gang 201 11.6 m² 0 4
Bod 202 13.0 m² 0 1
Bad 203 5.6 m² 0 1
Opphold 204 21.2 m² 1 1
Soverom 205 13.8 m² 1 1
Soverom 206 15.9 m² 1 1
Teknisk 207 4.0 m² 0 1

Fasader

Enebolig

Sør
Materiale
Tre
Taktype
Saltak
Vinduer
1
Dører
1
Synlige etasjer
1
Øst
Materiale
Tre
Taktype
Saltak
Vinduer
6
Dører
0
Synlige etasjer
1
Nord
Materiale
Tre
Taktype
Saltak
Vinduer
3
Dører
1
Synlige etasjer
2
Vest
Materiale
Tre
Taktype
Saltak
Vinduer
3
Dører
1
Synlige etasjer
2

Hendelser

17.04.2026 Tuftaveien 19 - 130/95 - tilbygg og påbygg - bekrefter trukket søknad
09.02.2026 Tuftaveien 19 - 130/95 - tilbygg og påbygg - anmodning om full refusjon for saksbehandlingsgebyr
06.02.2026 Tuftaveien 19 - 130/95 - tilbygg og påbygg- ett-trinnsvedtak
03.12.2025 Tuftaveien 19 - 130/95 - tilbygg og påbygg - opphør av ansvarsrett før ansvarsområdet er ferdigstilt
05.11.2025 Tuftaveien 19 - 130/95 - tilbygg og påbygg - erklæring om ansvarsrett
08.08.2025 Tuftaveien 19 - 130/95 - tilbygg og påbygg - søknad om tillatelse til tiltak