Extension Ferdigattest Enebolig

Tilbygg, fasadeendring og ombygging av enebolig i Ulrik Olsens vei 35

📍 Ulrik Olsens vei 35 , 6511 KRISTIANSUND N

Nøkkelinfo

Sakstype
Tilbygg
Bygningstype
Enebolig
Bruksareal
209 m²
Boenheter
1
Kommune
Kristiansund
Fylke
Møre og Romsdal
Gnr / Bnr
8 / 265
Saksnummer
22/01808
Fase
Ferdigattest

Om byggesaken

Prosjektet omfatter en omfattende ombygging, fasadeendring og tilbygg av en eksisterende enebolig på Ulrik Olsens vei 35 i Kristiansund. Bygget får et økt totalt fotavtrykk på 173,4 m² BYA med et tilbygg på verandaen på 14,9 m², samt en utvidelse av vegg mellom inngangsparti og garasje på 3,7 m². Det oppføres også en pergola på verandaen. Innvendig ombygging inkluderer omgjøring av kjellerbad til bryggerom, etablering av nytt bad ved vaskerom, samt renovering og utvidelse av bad i hovedetasjen. Boligen, som tidligere hadde to bruksenheter, sammenføyes til én bruksenhet. Fasadeendringene innebærer etterisolering, ny trekledning, og utskifting av vinduer og dører. Tiltaket er gjennomført i henhold til gjeldende forskrifter og har fått ferdigattest. Bygget har to etasjer med totalt 209 m² BRA, og er plassert på en tomt på ca. 785 m². Det foreligger dispensasjon fra byggegrense mot vei, og tiltaket er vurdert til å ha gode visuelle kvaliteter og ikke å medføre ulemper for omkringliggende eiendommer.

Produkter og materialer

Isolasjon Etterisolering

Etterisolering av eksisterende yttervegger

Isolasjonstiltak som del av fasadeendring

Gulv Parkett og fliser

🧱 Parkett, fliser, vinyl

Parkett i stuer og soverom, fliser på bad og vaskerom

Nye og eksisterende gulvflater i bolig

Fasade Trekledning

🧱 Malt/beiset tre

Bytte av trekledning på yttervegger

Ny trekledning på yttervegger som del av fasadeendring

Grunnarbeid Tomtearbeid

Tomt på ca 785 m², skrånende med plen og beplantning, asfaltert innkjøring

Tomtearbeid og opparbeidelse

Terrasse Veranda

Utvidelse av eksisterende veranda med 14,9 m²

Tilbygg på veranda på vestsiden av bygget

Elektro Sikringsskap

Antall: 1

Sikringsskap med automatsikringer plassert i stue i underetasje

Elektrisk anlegg med automatsikringer

Trapper Innvendig trapp

🧱 Malte vanger, lakkert parkett i trinn, håndrekke i eik

Antall: 1

Åpen trapp mellom etasjer, mangler rekkverk og åpninger mellom trinn tilfredsstiller ikke dagens krav

Innvendig trapp i bolig

VVS Varmtvannsbereder

Antall: 1

Varmtvannsbereder ca 200 liter fra 1985 i skap i gang

Eksisterende varmtvannsbereder beholdes

Innvendig ombygging Bad og vaskerom

Omgjøring av kjellerbad til bryggerom, nytt bad ved vaskerom, renovering og utvidelse av bad i hovedetasje

Innvendig ombygging og oppgradering av våtrom

Vinduer Fasadevindu

🧱 Tre med 2-lags isolerglass

Antall: 9

Utskifting og innsetting av nye vinduer, inkludert store vindusflater mot sør

Nye vinduer i fasadeendring, inkludert utskifting av eldre koblede vinduer

Tømrer Innvendige dører

🧱 Malte og lakkerte tredører

Antall: 10

Innvendige dører i begge etasjer, alder og normal slitasje

Innvendige dører i bolig

Tak Taktekking

🧱 Decra takpanner i sandstrødd stål

Eksisterende tak med Decra takpanner, pergola på veranda

Takoverbygg med glass på veranda (pergola), eksisterende tak beholdes

Fasade Pergola

🧱 Glass takoverbygg

Pergola med glass på veranda

Takoverbygg på veranda

Mur Grunnmur

🧱 Pusset og malt sementblokk

Pusset og malt grunnmur på synlige flater

Grunnmur for bolig

VVS Varme

🧱 Vedovn, varmepumpe, peis, oljeovn, elektriske panelovner

Vedovn og varmepumpe i underetasje, peis og oljeovn samt varmepumpe i 1. etasje, elektrisk oppvarming forøvrig

Oppvarmingsløsninger i bolig

Dører Ytterdører og balkongdører

🧱 Tre og teak

Antall: 4

Skifte av ytterdører og balkongdører, vegg mellom inngangsparti og garasje utvides

Nye ytterdører og balkongdører som del av fasadeendring

Garasjeport Vippeport med motorstyring

Antall: 1

Garasjeport med motorstyring, alder og normal slitasje

Garasjeport i tilknytning til bolig

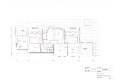
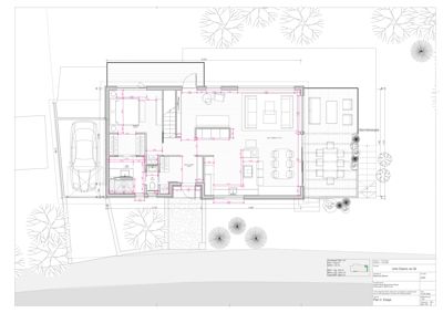
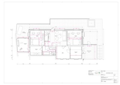
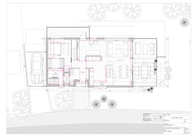
Plantegning

Enebolig 383.0 m²

Etasje 1 105.0 m²

Rom Areal Vinduer Dører
Treningssrom 101 10.0 m² 0 1
Soverom 102 12.9 m² 1 1
Vaskerom 103 6.1 m² 0 1
Bad 104 7.1 m² 0 1
Kjellerstue 105 17.7 m² 1 1
Kjokkenette 106 0.0 m² 0 0
Soverom 107 12.9 m² 1 1
Bod 108 10.0 m² 0 1
Bruugerom 109 8.3 m² 0 1
Utebod/Verksted 110 12.0 m² 1 1

Etasje 2 104.2 m²

Rom Areal Vinduer Dører
Soverom 201 15.9 m² 1 1
Bad 202 5.8 m² 0 1
WC 203 1.4 m² 0 1
Stue / kjøkken 204 53.7 m² 2 1
Hall / korridor 205 12.0 m² 0 2

Etasje 0 173.8 m²

Rom Areal Vinduer Dører
Trenerom 001 10.0 m² 0 1
Soverom 002 12.9 m² 1 1
Kjellerstue 003 17.7 m² 1 1
Soverom 004 12.9 m² 1 1
Vaskerom 005 6.1 m² 0 1
Bad 006 7.1 m² 0 1
Bod 007 10.0 m² 0 1
Bruugerom 008 8.3 m² 0 1
Utebod/Verksted 009 12.0 m² 1 1
Kjeller 000 22.0 m² 0 1

Fasader

Enebolig

Sør
Materiale
Tre
Taktype
Flatt tak
Vinduer
5
Dører
2
Balkonger
2
Synlige etasjer
2
Øst
Materiale
Tre
Taktype
Valmtak
Vinduer
1
Dører
0
Balkonger
1
Synlige etasjer
2
Vest
Materiale
Tre
Taktype
Valmtak
Vinduer
1
Dører
0
Balkonger
1
Synlige etasjer
2
Nord
Materiale
Tre
Taktype
Flatt tak
Vinduer
2
Dører
2
Synlige etasjer
1

Hendelser

15.04.2026 22/01808-11 Ulrik Olsens vei 35, Ferdigattest for ombygging, fasadeendring og tilbygg
13.04.2026 22/01808-10 Ulrik Olsens veg 35 - søknad om ferdigattest
17.02.2023 22/01808-9 Ulrik Olsens vei 35 - Tilbakemelding på henvendelse om finansiering av behandlingsgebyr sammenføyning
15.02.2023 22/01808-8 Ulrik Olsens vei 35 - Dekning av behandlingsgebyr for sammenføyning av boenhet
23.05.2022 22/01808-7 Ulrik Olsens vei 35, Tillatelse til fasadeendring, tilbygg, bruksendring og sammenføyning, Dispensasjon fra byggegrense mot vei
13.05.2022 22/01808-6 Ulrik Olsens vei 35- Svar på foreløpig tilbakemelding på søknad
05.05.2022 22/01808-5 Ulrik Olsens vei 35, foreløpig tilbakemelding på søknad om tillatelse til ombygging, fasadeendring og tilbygg - dispensasjonssøknad, behov for supplerende dokumentasjon
04.05.2022 22/01808-3 Ulrik Olsens vei 35 - Uttalelse til søknad om tillatelse til ombygging, fasadeendring og tilbygg
27.04.2022 22/01808-4 Ulrik Olsens vei 35 - Uttalelse til søknad om tillatelse til ombygging, fasadeendring og tilbygg
22.04.2022 22/01808-2 Ulrik Olsens vei 35, anmodning om uttalelse
22.03.2022 22/01808-1 Ulrik Olsens vei 35 - Søknad om tillatelse til ombygging, fasadeendring og tilbygg - Dispensasjonssøknad