Extension Rammetillatelse Enebolig

Tilbygg med sekundær boenhet og ny garasje i Vassbunnveien 1, Asker

📍 Vassbunnveien 1 , 1388 BORGEN

Nøkkelinfo

Sakstype
Tilbygg
Bygningstype
Enebolig
Bruksareal
406 m²
Boenheter
2
Kommune
Asker
Fylke
Akershus
Gnr / Bnr
6 / 427
Saksnummer
24/1149
Fase
Rammetillatelse

Om byggesaken

Ny tilbygg på eksisterende enebolig i Vassbunnveien 1, Asker, med et tilbygg på 44 m² som inkluderer en sekundær boenhet på ca. 60 m². Tilbygget medfører ny romfordeling i underetasjen, inkludert nytt trapperom til 1. etasje. Det oppføres også en ny dobbeltgarasje på ca. 40 m² som erstatter eksisterende garasje, plassert på samme sted med flatt skrående tak. Garasjen og tilbygget er plassert innenfor hensynssone mot vassdrag, med dispensasjon innvilget for byggegrense. Terrenginngrepene er minimale, og uteareal etableres delvis over garasjetaket. Bygningen har saltak og flatt tak, med tre som fasademateriale. Prosjektet inkluderer oppgradering av fasader med nye vinduer og dører, samt utearealer og parkering.

Arbeidsomfang

- Rivning av eksisterende garasje - Oppføring av ny garasje (ca 36,7 m²) - Etablering av sekundær boenhet på 4 m² BYA i forbindelse med tilbygg

Produkter og materialer

Gulv Innvendige gulvflater

Gulv i tilbygg og sekundær boenhet, inkludert bad og kjøkken

Innvendige gulvflater i tilbygg og sekundær boenhet

Kjøkken Kjøkkeninnredning

Antall: 2

Kjøkken i hovedbolig og sekundær boenhet

Kjøkkeninnredning i bolig og sekundær boenhet

Elektro Rådgivning og prosjektering

Rådgivende ingeniør elektro involvert i prosjektering

Elektroprosjektering for bolig og garasje

Utendørs Uteareal og terrasse

Uteareal delvis over garasjetak, ny terrasse i 1. etasje mot nord

Uteareal og terrasse knyttet til sekundær boenhet og bolig

VVS Rådgivning og prosjektering

Rådgivende ingeniør VVS involvert i prosjektering

VVS-prosjektering for bolig og sekundær boenhet

Vinduer Fasadevindu

Antall: 20

Vinduer i tre, antall ca. 20 fordelt på bolig og garasje

Nye vinduer i tre til bolig og garasje

Fasade Trefasade

🧱 Tre

Tre som fasademateriale på bolig og garasje

Tre som fasademateriale på bolig og garasje

Garasjeport Dobbeltgarasjeport

Antall: 1

Dobbeltgarasje med port, ca. 40 m²

Ny dobbeltgarasje med port som erstatter eksisterende garasje

Grunnarbeid Terrengarbeid

Minimale terrenginngrep, gjenbruk av eksisterende masser, ingen nye VA-grøfter eller kjeller

Grunnarbeid med minimale terrenginngrep og gjenbruk av masser

Bad Bad og sanitærinstallasjoner

Antall: 3

Bad i sekundær boenhet og eksisterende bolig, inkludert våtromsarbeid

Bad og sanitærinstallasjoner i bolig og sekundær boenhet

Maling Innvendig og utvendig maling

Maling av fasader og innvendige overflater

Maling av trefasader og innvendige flater

Dører Ytterdører og garasjeport

Antall: 7

Ytterdører og garasjeporter i bolig og garasje

Nye ytterdører til bolig og garasje, inkludert garasjeport

Isolasjon Bygningsisolasjon

Isolasjon i vegger, tak og gulv i tilbygg og garasje

Isolasjon for nytt tilbygg og garasje

Tak Saltak og flatt tak

Saltak på bolig, flatt skrående tak på garasje

Saltak på bolig og flatt skrående tak på garasje

Tømrer Bygging av tilbygg og garasje

Oppføring av tilbygg på 44 m² og ny garasje på 40 m²

Tømrerarbeid for tilbygg og garasje

Trapper Innvendig trapp

Antall: 1

Nytt trapperom i underetasje til 1. etasje

Innvendig trapp i bolig mellom underetasje og 1. etasje

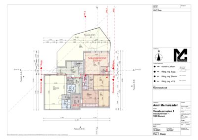
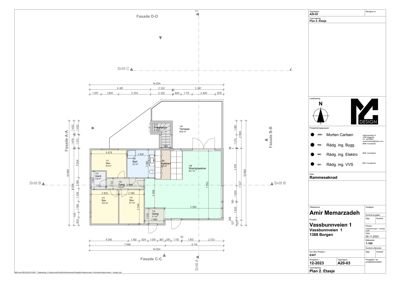
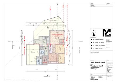
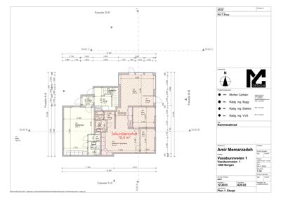
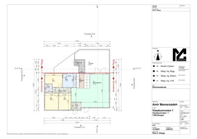
Plantegning

Enebolig 321.3 m²

Etasje 0 46.5 m²

Rom Areal Vinduer Dører
Hobby 001 20.9 m² 0 1
Bod 002 6.8 m² 0 1
Bod 003 4.4 m² 0 1
Vask 004 1.8 m² 0 1
Hall/Trapp 005 12.1 m² 0 1

Etasje 1 108.4 m²

Rom Areal Vinduer Dører
Stue 101 40.0 m² 4 1
Kjøkken 102 11.7 m² 1 1
Bad/WC 103 4.9 m² 0 1
Sov 1 104 9.9 m² 1 1
Sov 2 105 9.4 m² 1 1
San 6 106 4.3 m² 0 1
Bod 107 1.7 m² 0 1
Kjellerstue 122 28.8 m² 0 1
Bad 125 3.5 m² 0 1
Bod 126 1.6 m² 0 1
Sov 127 7.2 m² 1 1
Sov 128 9.5 m² 1 1
Teknisk 130 1.4 m² 0 1
Gang 131 2.6 m² 0 1
Stue 132 19.7 m² 3 1
Trapperom 133 3.8 m² 0 1
MUA 143 50.0 m² 0 0
Bad 145 2.8 m² 0 1
Bod 146 5.0 m² 0 1
Gang 147 3.9 m² 0 1
Kjøkken 148 11.3 m² 1 1
Gang 149 3.5 m² 0 1
Bad 129 2.8 m² 0 1
Bad 150 3.0 m² 0 1
Trapperom 118 3.8 m² 0 1
BOD 108 1.7 m² 0 1
Gang 151 2.6 m² 0 1
Stue 109 20.0 m² 3 1
Gang 110 2.2 m² 0 1
Sov 111 9.5 m² 1 1
Garderobe 112 7.8 m² 0 1
Sov 113 7.2 m² 1 1
Kjøkken/spisestue 114 20.2 m² 1 1

Etasje 2 166.4 m²

Rom Areal Vinduer Dører
Stue/spisestue 108 42.7 m² 2 1
Kjøkken 109 8.8 m² 0 1
Gang 110 3.9 m² 0 1
Sov 111 9.4 m² 1 1
Sov 112 10.0 m² 1 1
Sov 113 9.1 m² 1 1
Gang 114 3.1 m² 0 1
Gard. 115 2.8 m² 0 0
Gang 116 4.3 m² 0 0
Treperom 117 3.3 m² 0 0
Bad 107 8.2 m² 0 1
Terrasse 140 29.6 m² 0 1

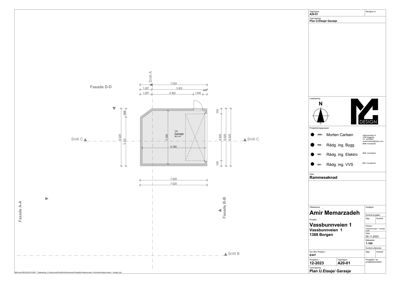
Garasje 38.7 m²

Etasje 0 38.7 m²

Rom Areal Vinduer Dører
Garasje 144 38.7 m² 0 2
Garasje 104 36.3 m² 1 1

Fasader

Enebolig

Nord
Materiale
Tre
Taktype
Saltak
Høyde
4.4 m
Mønehøyde
8.2 m
Vinduer
3
Dører
1
Synlige etasjer
2
Sør
Materiale
Tre
Taktype
Flatt tak
Høyde
5.8 m
Mønehøyde
122.4 m
Vinduer
4
Dører
3
Balkonger
1
Synlige etasjer
2
Vest
Materiale
Tre
Taktype
Saltak
Høyde
3.0 m
Mønehøyde
5.6 m
Vinduer
5
Dører
1
Balkonger
1
Synlige etasjer
2
Øst
Materiale
Tre
Taktype
Saltak
Høyde
4.2 m
Mønehøyde
3.4 m
Vinduer
3
Dører
1
Synlige etasjer
1

Hendelser

21.04.2026 6/427 Vassbunnveien 1 - Gebyr for mangelbrev 07.02.2025 frafaller
21.04.2026 6/427 Vassbunnveien 1 - Innvilget dispensasjon og rammetillatelse for tilbygg, sekundærenhet og dobbeltgarasje
07.04.2026 6/427 Vassbunnveien 1 - Tilbygg bolig - Riving og oppføring av ny garasje - Uttalelse til søknad om dispensasjon dispensasjon
18.03.2026 6/427 Vassbunnveien 1 - Statsforvalterens uttalelse til søknad om dispensasjon fra kommuneplan for tilbygg, riving og oppføring av garasje dispensasjon
05.03.2026 6/427 Vassbunnveien 1- Anmodning om uttalelse til dispensasjon fra byggegrense vassdrag dispensasjon
04.03.2026 6/427 Vassbunnveien 1 - Supplering av søknad søknad
03.03.2026 6/427 Vassbunnveien 1 - Kommunen ber om tilbakemelding
16.01.2026 6/427 Vassbunnveien 1 - Tilsvar til tilbakemelding om at det ikke søkes dispensasjon dispensasjon
13.01.2026 6/427 Vassbunnveien 1 - E-postkorrespondanse vedrørende videre behandling av sak og dispensasjon dispensasjon
11.12.2025 6/427 Vassbunnveien 1 - Utgående e-post, oppsummering av telefonsamtale vedrørende manglende dispensasjonssøknad byggegrense og feil krav i tidligere mangelbrev dispensasjon
07.08.2025 6/427 Vassbunnveien 1 - Supplering av søknad søknad
18.06.2025 6/427 Vassbunnveien 1 - Krav om dispensasjon fra antall boenheter dispensasjon
30.05.2025 6/427 Vassbunnveien 1 - Ber om svar så raskt som mulig og at gebyret til tiltakshaver krediteres i sin helhet
17.02.2025 6/427 Vassbunnveien 1 - Supplering av søknad søknad
10.02.2025 6/427 Vassbunnveien 1 - Ufullstendig søknad 2 søknad
17.01.2025 6/427 Vassbunnveien 1 - Supplering av søknad søknad
15.01.2025 6/427 Vassbunnveien 1 - Supplering av søknad søknad
14.11.2024 6/427 Vassbunnveien 1 - Utvidet frist for innsending av manglende dokumentasjon
29.10.2024 6/427 Vassbunnveien 1 - Ber om utvidet frist for innsendelse av manglende dokumentasjon
27.08.2024 6/427 Vassbunnveien 1 - Ufullstendig søknad søknad
27.03.2024 6/427 Vassbunnveien 1 - Søknad om etablering av sekundærenhet og oppføring av dobbeltgarasje søknad