Extension UnderBehandling Enebolig

Tilbygg og fasadeendring på våningshus, Vestråttveien 79

📍 Vestråttveien 79 , 7140 OPPHAUG

Nøkkelinfo

Sakstype
Tilbygg
Bygningstype
Enebolig
Bruksareal
240 m²
Boenheter
1
Kommune
Ørland
Fylke
Trøndelag - Trööndelage
Gnr / Bnr
182 / 394
Saksnummer
2026/785
Fase
Under behandling

Om byggesaken

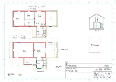
Prosjektet omfatter oppføring av to tilbygg på et SEFRAK-registrert våningshus fra midten av 1700-tallet på Vestråttveien 79. Det ene tilbygget er en forlengelse i husets fulle bredde og høyde mot vest i to etasjer, som skal romme en utvidet stue med åpen himling. Det andre tilbygget, som er avslått, skulle plasseres på tvers av hovedbygningen mot nord, i to etasjer, med inngangsparti, vaskerom, klesrom og kontor. Eksisterende vinduer fra 1985 skal byttes ut med krysspostvinduer, men med krav om å beholde dagens vindusstørrelse og inndeling. Bygget har saltak på alle fasader og pipe, og tilbyggene skal følge eksisterende takform. Totalt tilbyggsareal er ca. 47,2 m², og hovedbygningen har et samlet areal på ca. 240 m² over to etasjer.

Produkter og materialer

Grunnarbeid Fundamentering og drenering

Grunnarbeid for nye tilbygg, inkludert fundamentering og drenering

Trapper Innvendig trapp

Antall: 1

Ny trapp til andre etasje i tilbygget på tvers av hovedbygningen

Trapp for å erstatte gammel bratt trapp, plassert i nytt tilbygg

VVS Bad og vaskerom installasjon

VVS-installasjoner for nytt bad, vaskerom og klesrom i tilbygget

Gulv Innvendige gulv

Gulv i tilbygg og eksisterende bygg, tilpasset boligstandard

Tømrer Tilbygg konstruksjon

🧱 Treverk, reisverk og laftet tømmer

Oppføring av to tilbygg i to etasjer, med tradisjonell byggeskikk og hensyn til kulturminnevern

Bygging av tilbygg i tre, med respekt for eksisterende konstruksjon og kulturhistoriske verdier

Elektro Elektrisk anlegg

Elektrisk installasjon i tilbygg og eksisterende bygg

Maling Utvendig og innvendig maling

Maling av kledning og innvendige flater for å bevare og beskytte bygget

Vinduer Krysspostvinduer

🧱 Tre

Nye krysspostvinduer med samme vindusstørrelse og inndeling som eksisterende, med smalere rammer og sprosser enn dagens 1985-vinduer

Utskifting av eksisterende vinduer med krysspostvinduer for mer dagslys, tilpasset byggets historiske uttrykk

Tak Saltak

Antall: 2

Saltak på eksisterende bygg og tilbygg, med pulttak på eksisterende tilbygg som skal endres

Taktekking og konstruksjon for hovedhus og tilbygg, inkludert endring av pulttak til saltak på eksisterende tilbygg

Fasade Kledning

🧱 Stående tømmermannskledning

Tradisjonelle materialer som stående tømmermannskledning for tilbygg

Kledning til nye tilbygg i tradisjonell stil for å bevare byggets karakter

Plantegning

Enebolig 240.1 m²

Etasje 1 120.1 m²

Rom Areal Vinduer Dører
Stue 101 39.1 m² 1 1
Kjøkken 102 21.7 m² 0 1
Bad 103 7.4 m² 0 1
Vaskerom 104 17.3 m² 0 1
Gang/Vask/Klesrom 105 17.3 m² 0 1
Klesrom 106 0.0 m² 0 1
Tilbygg 107 21.2 m² 0 0

Etasje 2 120.1 m²

Rom Areal Vinduer Dører
Soverom 201 22.6 m² 1 1
Soverom 202 9.5 m² 0 1
Soverom 203 13.6 m² 0 1
Gang 204 8.0 m² 0 1
Gang 205 5.2 m² 0 1
Gang 206 17.3 m² 0 1
Tilbygg 207 25.6 m² 0 0

Fasader

Hus

Nord
Taktype
Saltak
Vinduer
6
Dører
1
Synlige etasjer
2
Sør
Taktype
Saltak
Vinduer
4
Dører
1
Synlige etasjer
2
Øst
Taktype
Saltak
Vinduer
2
Dører
0
Synlige etasjer
2
Vest
Taktype
Saltak
Vinduer
2
Dører
1
Synlige etasjer
2

Hendelser

20.04.2026 Til orientering om klagesak - gnr 182 bnr 394 - Vestråttveien 79 - Tilbygg til våningshus
20.04.2026 Tilbaketrekking av klage - gnr 182 bnr 394 - Vestråttveien 79 - Tilbygg til våningshus
13.04.2026 Behandling av klage – gnr 182 bnr 394 – Vestråttveien 79 – Tilbygg til våningshus
10.03.2026 Klage på avslag byggesøknad - 182/394